Продажа торгового помещения, Минск, Игуменский тракт, 26, 150.2 кв.м.

Просмотры: 105 всего, 106 за месяц, 24 за неделю
  • Площадь:
    150.2 2
  • Год постройки:
    2008

Договорная
Описание

Продажа помещения административно-торгового назначения в Минске
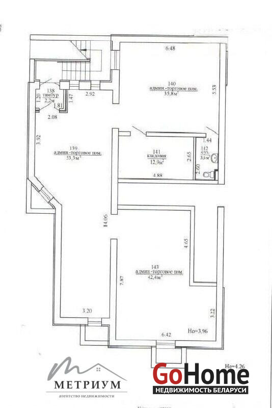
Игуменский тракт, 26 — первая линия, район Лошица. Общая площадь 150,2 м2. Цокольный этаж с фасадными окнами и отдельным входом. Доступ 24/7.
Ищете объект, где бизнес запустится мгновенно, без вложений в ремонт и коммуникации? Это готовое решение для успешного старта или масштабирования: современное административно-торговое помещение в динамичном жилом районе с высоким пешеходным и автомобильным трафиком. Рядом — сеть кафе (Don Coffee On), магазины, аптеки и сервисы, что гарантирует лояльную аудиторию и синергию с соседями. Удобный подъезд по Игуменскому тракту, просторная парковка для клиентов и сотрудников, развитая инфраструктура (остановки).
Ключевые преимущества:
Готовность к работе: Качественный ремонт, керамогранит на полу, дизайнерские потолки с LED-освещением, высота 4 м. Коммуникации и удобства: Центральное отопление с радиаторами, кондиционеры, горячая/холодная вода, собственный санузел, низкие коммунальные платежи. Функциональность: Отдельный вход с улицы, место под вывеску. Идеально под офис, салон красоты/барбершоп, студию фитнеса/йоги, медицинский центр (стоматология, косметология), шоу-рум (одежда, косметика), кофейню или сервис услуг (визуальный мерчандайзинг, ремонт гаджетов). Собственник — плательщик НДС, полное юридическое сопровождение сделки. Объект свободен и готов к осмотру в удобное время. Инвестируйте в локацию с проверенным спросом — обеспечьте стабильный доход и рост стоимости актива.
Идеально для инвесторов, ищущих стабильный доход с минимальными рисками!
Свяжитесь с нами для получения подробной информации и организации просмотра!
Договор № 872/1 от 18.11.2025
ООО Агентство недвижимости «Метриум»
УНП 193581536
Лицензия № 02240/425, выдана Министерством Юстиции РБ 27.08.2021

Вы нашли объявление на GoHome.by (ГоуХоум.бай)
  • Номер объявления:
    782659
  • Дата обновления:
    25.11.2025
  • Область:
    Минская область
  • Район Беларуси:
    Минский район
  • Населенный пункт:
  • Район:
    Ленинский район
  • Улица, дом:
    Игуменский тракт, 26
  • Станция метро:
    Рядом нет метро
  • Тип объекта:
  • Площадь:
    150.2 м2
  • Год постройки:
    2008
  • Санузел:
    Нет
  • Телефон:
    Нет
  • Договор:
    № 872/1 от 2025-11-18
Распечатать
Пожаловаться на объявление
Вам может быть интересно
Помещений: 6, 223 м2, Этаж 1 из 2
г. Минск, Немига, 3/А
Центральный район
Немига
Продается объект в самом центре Минска, в исторической части города (не является историко-культурной ценностью), возможно проведение реконструкции с увеличением площади в 2 раза. Объект представляет собой 5 изолированных…
119
Дата обновления: 05.12.2025
344 180,4 руб
118 859$
1 543,4 руб/м²
533$/м²
Помещений: 0, 86 м2, 2022 г.
г. Минск, Семашко ул., 4/д
Московский район
Петровщина
Отличный вариант для инвестиций!Стабильный арендатор, выгодная ставка аренды!Предлагаем в покупку торговый помещение сдвумя отдельными входами, площадью 86,0 кв.м,располагается в новом активно заселяющемся ЖК«Петровские …
241
Дата обновления: 05.12.2025
610 124,4 руб
210 700$
7 094,5 руб/м²
2 450$/м²
Помещений: 0, 45.8 м2
г. Минск, Брилевская ул., 27
Октябрьский район
Продажа многофункционального помещения в Минск-Мир! - Общая площадь помещения составляет 45.8м2 - Помещение находится в жилом 25-ти этажном жилом доме с отличной проходимостью и развитой инфраструктурой. - Помещение расп…
65
Дата обновления: 04.12.2025
286 506,0 руб
84 730€
6 255,6 руб/м²
1 850€/м²
Помещений: 0, 196.8 м2, 2016 г.
г. Минск, Либкнехта ул., 66
Московский район
Площадь Богушевича
Офис находиться в отличном БЦ «Домашевский» - это современное здание в центре Минска, с хорошим ремонтом, точками общественного питания, и парковкой. Помещение с хорошим ремонтом: • пол - ламинат;• площадь 196.8 м ;• с…
67
Дата обновления: 04.12.2025
Помещений: 0, 45.1 м2
г. Минск, Брилевская ул., 27
Октябрьский район
Продажа многофункционального помещения в Минск-Мир! ️Многофункциональное помещение в Минск-Мир с отличной транспортной доступностью. - Общая площадь помещения составляет 45.1м2 - Помещение находится в жилом 25-ти этажном…
41
Дата обновления: 03.12.2025
282 127,1 руб
83 435€
6 255,6 руб/м²
1 850€/м²
Помещений: 0, от 15 до 15.5 м2
г. Минск, Лещинского ул., 14/а
Фрунзенский район
Кунцевщина
Ищете идеальное место для вашего начинающегобизнеса? У нас есть отличное предложение для вас!Выставлен НА ПРОДАЖУ павильон:Павильон находится в хорошем районе с хорошейтранспортной доступностью, вблизи 2-х крупныхтранспо…
757
Дата обновления: 03.12.2025
Помещений: 0, от 1100 до 1440 м2, 1996 г.
г. Минск, Лынькова ул., 19/2
Фрунзенский район
Продаётся с арендаторами или без (по договорённости). Хороший пешеходный и автомобильный трафик. Один из арендаторов магазин FixPricе, долгосрочные договорённости. Складские помещения имеют отдельный подъезд с рампой, мо…
765
Дата обновления: 02.12.2025
от 1 353 737,0 руб
от 467 500$
1 230,7 руб/м²
425$/м²
Помещений: 1, 19.4 м2, Этаж 1 из 1, 1986 г.
г. Минск, просп. Партизанский, д. 81
Заводской район
Партизанская
Продается торговое помещение в подземном переходе метро Партизанская. Отличное расположение. Находиться на пересечении проспект Партизанский и ул. Жилуновича. Два входа. Рядом две остановки. Высокая покупательская и пеше…
1103
Дата обновления: 30.11.2025
101 117,8 руб
34 920$
5 212,3 руб/м²
1 800$/м²
Помещений: 1, 18.2 м2, Этаж 1 из 1
г. Минск, Рудобельская, 3
Заводской район
Автозаводская
Торговое помещение с арендатором и высокой рентабельностью в ТЦ Greentime. Арендатор «Белгосстрах» снимает данное помещение с первых дней работы ТЦ. Характеристики: - торговое помещение площадью – 18.2 м2, - высокие пот…
281
Дата обновления: 30.11.2025
193 995,1 руб
66 994$
10 659,1 руб/м²
3 681$/м²
Помещений: 0, 127 м2, 2010 г.
г. Минск, Игуменский тракт, 16
Ленинский район
Продается торговое помещение площадью 126,7 м2 с 2мя отдельными входами. Расположено в цокольном этаже жилого дома. Офис имеет несколько помещений- первое самое большое площадью 74 м2, 3 поменьше и санузел. Рядом огро…
4504
Дата обновления: 27.11.2025