Продажа помещений под магазин

Помещений: 2, 172.7 м2, Этаж 1 из 1, 1989 г.
аг. Гапоновичи, Молодёжная, 2
Продаётся здание площадью 172,7 м² в 7 км от города Крупки и 125 км от Минска. - Обшито сайдингом. - Установлены двухкамерные окна ПВХ. - Оборудовано твердотопливным котлом. - Крыша в отличном состоянии, здание с…
28
Дата обновления: 18.11.2025
14 382,5 руб
4 836$
83,3 руб/м²
28$/м²
Помещений: 1, 89.1 м2, Этаж 1 из 1, 1965 г.
д. Обчуга, Мозгового, 33Б
Продается здание площадью 89 кв.м. Стены из кирпича, все окна ПВХ, есть пандус со ступеньками при входе. В шаговой доступности находится магазин, аптека, белпочта и библиотека.
29
Дата обновления: 18.11.2025
10 335,6 руб
3 475$
116,0 руб/м²
39$/м²
Помещений: 19, 1039 м2, Этаж 3 из 3, 2020 г.
д. Лепель
Готовый бизнес (кафе «Маяк») на трассе Минск-Витебск, М-3, 150-ый километр. Год постройки – 2020. Материал стен – кирпич. Крыша – шифер. Этаж/этажность – 3/3. Общая площадь – 1039,2 м2, жилая – 869,8 м2. Два смежных …
27
Дата обновления: 18.11.2025
296 665,7 руб
99 744$
285,5 руб/м²
96$/м²
Помещений: 1, 158.9 м2, Этаж 1 из 9, 2014 г.
г. Минск, Леонида Беды, 33
Советский район
Академия наук
Продается помещение транспортного назначения 158.9 кв м, все коммуникации центральные , 2014 года постройки здание, в подвальном помещении жилого дома по ул. Леонида Беды, 33. Есть помещение для дитейлинга, высота ворот…
27
Дата обновления: 18.11.2025
758 076,9 руб
254 876$
4 770,8 руб/м²
1 604$/м²
Помещений: 1, 789 м2, Этаж 1 из 3, 1957 г.
г. Минск, ул. Я. Коласа, д. 39А
Советский район
Якуба Коласа пл.
Продается отдельно стоящее трехэтажное административное здание из кирпича, имеющее вспомогательные капитальные строения в виде здания проходной и здания гаража, расположенные на отдельной изолированной территории. Здание…
42115
Дата обновления: 18.11.2025
4 693 445,4 руб
1 578 000$
5 948,6 руб/м²
2 000$/м²
Помещений: 0, 22.6 м2
г. Молодечно, Тургенева ул.
Просторный гараж в ГК №12 ️ Просторный кирпичный гараж 22,6 кв.м с ямой в ГК №12 - Общая площадь 22,6 кв.м и высота 2,40 м позволяют комфортно разместить легковой автомобиль и дополнительно организовать хранение вещей, …
27
Дата обновления: 18.11.2025
Помещений: 2, 160 м2, Этаж 1 из 1
Сеньково, Полевая
В продаже здание коммерческой недвижимости в д. Сеньково. Подробная информация по телефону. Договор № 161/16 от 05.11.2025 ОДО «Юриэлт», УНП 101214439,Лицензия Министерства юстиции РБ 02240/8 от 17.02.2005 года (бессро…
28
Дата обновления: 18.11.2025
44 257,6 руб
14 880$
276,6 руб/м²
93$/м²
Найдено объектов: 325
Помещений: 1, 614 м2, Этаж 1 из 5, 1996 г.
г. Марьина Горка, Буденого 1 (65 км от МКАД)
Продается уникальное здание в г. Марьина Горка — «Замок»! Ищете идеальное место для бизнеса? Мы представляем вашему вниманию самое узнаваемое здание в городе — многофункциональный пятиэтажный кирпичный объект с баром по …
719
Дата обновления: 18.11.2025
1 502 021,5 руб
505 000$
2 446,3 руб/м²
822$/м²
Помещений: 0, 9200 м2, Этаж 3 из 3, 1990 г.
г. Шклов, 70 год Великой Перамоги, 91/1
Продается комплекс производственных зданий в городе Шклов, по улице 70 год Великой Перамоги общей площадью 9 200 м кв на земельном участке общей площадью 1,2364га (участок на праве постоянного пользования), назначение - …
27
Дата обновления: 18.11.2025
1 039 784,0 руб
349 600$
113,0 руб/м²
38$/м²
Помещений: 0, 105.2 м2
г. Минск, Независимости просп., 85/б
Первомайский район
Академия наук
Подходит под школу танцев, детские кружки, офис, магазин + склад, косметический салон. Три изолированных помещения: 42 кв.м., 16 кв.м., 11 кв.м.
4303
Дата обновления: 18.11.2025
284 735,4 руб
95 732$
2 706,6 руб/м²
910$/м²
Помещений: 6, 271.1 м2, Этаж 2 из 2
п. Залозье, Партизанская, 2
Продаётся Агроусадьба «Родны Кут». Находится по адресу Рогачёвский р-н, п. Залозье, ул. Партизанская д.2. Расстояние от Рогачёва 27 км. В этом месте вы можете побывать в необычайном атмосфере, отдохнув от городской сует…
416
Дата обновления: 18.11.2025
817 621,3 руб
274 895$
3 015,9 руб/м²
1 014$/м²
Помещений: 0, 17.7 м2, 1996 г.
г. Минск, Скорины ул., 50/а
Первомайский район
Продается гараж в ГСК “Фортуна плюс” г.Минск, ул. Ф. Скорины, 50А/1 Общая площадь 17.7 кв.м., площадь подвала-ямы также 17.7 кв.м.(высота 2 м) Высота заезда – 2.3м, ширина заезда – 2.5м. Отличное расположение: удобны…
165
Дата обновления: 18.11.2025
Помещений: 1, 193 м2, Этаж 1 из 1, 1973 г.
г. Могилев, Проспект Шмидта, 3А
Помещение (изолированное) свободного назначения (одноэтажная пристройка к многоквартирному 9- этажному зданию). Общая площадь - 193,1 кв.м. Высота потолков 3м. Материал наружных стен-кирпич. Утеплённый фасад. Окна ПВХ. …
676
Дата обновления: 17.11.2025
315 147,8 руб
105 957$
1 632,9 руб/м²
549$/м²
Помещений: 10, 319.3 м2, Этаж 1 из 1
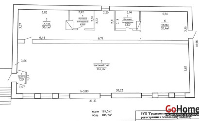
г. Гродно, Красноармейская, 87Б
Стоимость указана без НДС! Продается капитальное строение с земельным участком в г.Гродно ул. Красноармейская 87Б. Строение является Исторической ценностью! Площадь по СНБ-319.3 м2, нормируемая площадь здания 218.5 м2…
35
Дата обновления: 17.11.2025
698 024,9 руб
234 686$
2 186,1 руб/м²
735$/м²
Помещений: 1, 241.7 м2, Этаж 1 из 1, 2005 г.
аг. Сидоровичи, ул.Заречная
В продаже уютное кафе , недалеко от города Могилева, в живописном месте на берегу речки. Основной зал на 35 посадочных мест, кухня оснащена всем необходимым для работы , в том числе посудой . Для любителей бильярда - ман…
1518
Дата обновления: 17.11.2025
178 458,0 руб
60 000$
738,3 руб/м²
248$/м²
Помещений: 15, 371 м2, Этаж 1 из 10, 2002 г.
г. Могилев, Сурганова, 10
В продаже коммерческое помещение, расположенное по адресу: улица Сурганова д. 10. Первый и цокольный этажи 10-ти этажного кирпичного дома 2002 года постройки. Есть гараж и своя территория, удобная парковка. Общая площад…
19
Дата обновления: 17.11.2025
877 255,5 руб
294 945$
2 364,6 руб/м²
795$/м²
Помещений: 8, 1500 м2, Этаж 1 из 1, 2021 г.
д. Полонка, Жемчужненский с/с, д.Детковичи
Туристический комплекс "ХАТКИ" Прекрасный вариант для СЕМЕЙНОГО бизнеса, с возможностью постоянного круглогодичного проживания и ведения ***АГРОЭКОТУРИЗМА *** Готовый бизнес, прекрасное предложение для организации отдыха…
1802
Дата обновления: 17.11.2025
1 487 150,0 руб
500 000$
991,4 руб/м²
333$/м²
Помещений: 0, от 97.8 до 126.3 м2
г. Минск, Каховская ул., 17
Центральный район
Продажа (возможна аренда) зала для активного отдыха/спорта (йога, фитнес, танцы и др.).Общая площадь 126 кв. м, ул.Каховская 17. Зал оборудован двумя раздевалками, 4 душевые кабинки ,два сан узла , зеркалами, музыкой, св…
117
Дата обновления: 17.11.2025
Помещений: 0, 51.1 м2
г. Минск, Репина ул., 4
Центральный район
Молодежная
Продается уютная кофейня недалеко от метро "Молодежная" в тихом центре по ул.Репина Расположено в удобном проходимом месте с хорошим трафиком. У заведения отличная история и репутация. Есть инстаграм. Площадь помещения –…
766
Дата обновления: 16.11.2025
Помещений: 19, 1039.5 м2, Этаж 3 из 3, 2020 г.
д. Лепель
Готовый бизнес (кафе «Маяк») на трассе Минск-Витебск, М-3, 150-ый километр. Год постройки – 2020. Материал стен – кирпич. Крыша – шифер. Этаж/этажность – 3/3. Общая площадь – 1039,2 м2, жилая – 869,8 м2. Два смежных …
27
Дата обновления: 15.11.2025
296 808,4 руб
99 792$
285,5 руб/м²
96$/м²
Помещений: 0, 13.1 м2
г. Минск, Дзержинского просп., 19/А
Московский район
Грушевка
Машиноместо на первом уровне ️Парковочное место – это не только удобство сегодня, но и выгодная инвестиция на будущее. Не упустите возможность обеспечить себе комфорт и безопасность! -Подземный двухуровневый охраняемый …
23
Дата обновления: 14.11.2025
Помещений: 0, 27.8 м2
г. Минск, Кропоткина ул., 99
Центральный район
Продаётся кирпичный гараж со смотровой ямой и подвалом в ГК “Каховский”! Гараж площадью 27,8 кв.м. В гараже есть смотровая яма, подвал для хранения. Подвал сухой. Фундамент – бетонный, стены – кирпичные, перекрытия – дер…
23
Дата обновления: 14.11.2025
35 389,4 руб
11 898$
1 273,0 руб/м²
428$/м²
Помещений: 0, 63.8 м2, Этаж 1 из 1
г. Гродно, Суворова, 256А
На продажу выставлен один из старейших шиномонтажей в Гродно. Находится по адресу Суворова 256а. Находится в отличной визуальной доступности на перекрестке двух оживленных магистралей занеманской части города Гродно. Ло…
20
Дата обновления: 14.11.2025
654 293,9 руб
219 982$
10 255,4 руб/м²
3 448$/м²
Помещений: 0, 66.4 м2, 2017 г.
г. Минск, Дзержинского просп., 127
Московский район
Малиновка
Административное помещение с готовым ремонтом. МЕТРО Малиновка - 3 мин. пешком. Пр.Дзержинского, 127. Инфраструктура -100%. *Выделены 3 помещения, которые позволят вам комфортно разместиться. *Есть встроенная мебель, по…
41
Дата обновления: 14.11.2025
Помещений: 1, 73 м2, Этаж 1 из 25, 2023 г.
г. Минск, Игоря Лученка, 29
Октябрьский район
Аэродромная
Продаётся торговое помещение на ул. И. Лученка 29 (дом «Гавана»), общей площадью 72,7 кв.м. Дом расположен в быстроразвивающимся и плотно населенном районе «Minsk World». Торговое помещение расположено на первом этаже …
21
Дата обновления: 14.11.2025
532 387,5 руб
178 996$
7 293,0 руб/м²
2 452$/м²
Помещений: 5, 120.1 м2, Этаж 1 из 9
г. Витебск, Чкалова, 48
В продаже помещение свободного назначения по ул. Чкалова, дом 48 в г. Витебске. Помещение площадью 120 М2, расположена на цокольном этаже, имеет два отдельных входа, 4 отдельных помещения, 2 подсобных помещения без отд…
22
Дата обновления: 14.11.2025
178 250,0 руб
59 930$
1 484,2 руб/м²
499$/м²
Помещений: 0, 1118.4 м2, 2021 г.
д. Динаровка
Продается уникальный загородный усадебный комплекс!Предлагаем вашему вниманию великолепный загородный усадебный комплекс, расположенный в живописном уголке природы, всего в 20 минутах и 18 километрах от г. Минска в напра…
558
Дата обновления: 14.11.2025
Помещений: 0, 72.7 м2
д. Динаровка
Продается станция технического обслуживания автомобилей! Преимущества нашего предложения: • Удобное расположение: находится в непосредственной близости от главных транспортных артерий, что обеспечивает легкий доступ для …
511
Дата обновления: 14.11.2025
Помещений: 0, 217 м2, 2002 г.
г. Минск, Гикало ул., 1
Советский район
Якуба Коласа пл.
В центре Минска продается помещение по адресу Гикало 1, площадью 217 кв.м Это идеальное решение для вашего бизнеса, желающих расширить свое присутствие в густонаселенном районе с высоким автомобильным и пешеходным трафик…
27
Дата обновления: 13.11.2025
1 129 491,5 руб
379 750$
5 205,0 руб/м²
1 750$/м²
Помещений: 0, 217 м2, 2002 г.
г. Минск, Гикало ул., 1
Советский район
Якуба Коласа пл.
В центре Минска продается помещение по адресу Гикало 1, площадью 217 кв.м Это идеальное решение для вашего бизнеса, желающих расширить свое присутствие в густонаселенном районе с высоким автомобильным и пешеходным трафик…
28
Дата обновления: 13.11.2025
1 129 491,5 руб
379 750$
5 205,0 руб/м²
1 750$/м²

Как определиться с местоположением торгового помещения

Выбор торгового помещения включает в себя, прежде всего, определение с местоположением магазина. Его необходимо искать исходя из специфики продукции:

  • Продовольственный магазин лучше располагать в небольших павильонах в тех местах, где не будет конкуренции с крупными супермаркетами. Например, во дворах домов или рядом с остановками. Разнообразные цены на продажу помещений под магазин от собственника позволят выбрать оптимальный вариант.
  • Магазин одежды лучше располагать в местах с высокой проходимостью. Например, это могут быть помещения, расположенные в зданиях на перекрестках крупных улиц, пешеходных улицах, рядом со станциями метрополитена. Также следует обратить внимание на отделы в торговых центрах, потому что стоимость покупки торгового помещения в магазине окупится благодаря высокой проходимости.
  • Узкоспециализированные крупные магазины бытовой техники, мебели или строительных материалов лучше располагать на окраине города, т.к. посетители будут целенаправленно приезжать туда, и проходимость не будет иметь ключевого значения. Стоимость помещений для крупных магазинов сопоставима их размерам, поэтому иногда более разумно будет построить помещение для магазина, чем приобрести его сразу.

Наш сайт дает возможность купить помещение под магазин в Минске без посредников по наиболее конкурентоспособным ценам. Стоимость квадратного метра устанавливается собственником в зависимости от месторасположения в Минском районе и благоустройства помещения.

Критерии выбора торгового помещения

Перед тем как найти помещение под магазин, также необходимо учитывать следующие факторы:

  • Внутренняя и внешняя отделка
  • Наличие и размер парковки
  • Состояние сантехники и внутренних коммуникаций
  • Наличие складского помещения или помещения под собственное производство

Если в ваших планах есть открытие магазина в 2015 году, подумать о покупке помещения необходимо в первую очередь. Также, наш портал предоставляет возможность недорого заказать объявление о продаже торгового помещения.

Аренда квартир на сутки:

Покупка квартир в новостройках: