Аренда торгового помещения, Минск, Левина ул., 2, 64 кв.м.

Просмотры: 186 всего, 82 за месяц, 23 за неделю
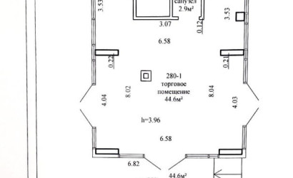
  • Площадь:
    64 2
  • Год постройки:
    2022

39,18 руб/м2
или ≈14$/м2
2 507,52 руб
или 896$
Изменения цены
14$
25.03.2026 г.
15$
09.03.2026 г.
Описание

Просторное помещение на ул. Леонида Левина на первом этаже: ваш идеальный старт!
Что вы получаете:
- Свободный доступ 24 / 7 — работайте в любое время, без ограничений.
- Отдельный вход — удобство для клиентов и персонала.
- Мощная электросеть —20 кВт с возможностью увеличения до 33 кВт — подойдёт даже для энергоёмких процессов.
- Две системы вентиляции —принудительная и с естественным побуждением — комфортный микроклимат в любое время года.
- Собственный санузел — дополнительная удобство для посетителей и сотрудников.
- Потолки высотой 2,73 м — ощущение простора и возможности для зонирования.
- Парковка — удобство для клиентов и сотрудников.
- Без ремонта — возможность оформить пространство под свои нужды и фирменный стиль.
Предусмотрены арендные каникулы, срок обговаривается.
Локация — ваш козырь:
- В шаговой доступности — станция метро «Аэродромная».
- Рядом остановка общественного транспорта — лёгкий доступ для клиентов и партнёров.
- Развитая инфраструктура — заселённые новостройки и всё необходимое под рукой.
Для чего подойдет: розничный магазин, офис, студия или шоурум, кафе, кофейня или точка быстрого питания.
Заинтересовало? Звоните или пишите — договоримся о просмотре в удобное для вас время! Арендатор не оплачивает услуги агентства.
Больше объявлений тут: www.instagram.com/garant.arenda
Напишите нам в удобный для Вас мессенджер:
Viber | Telegram | WhatsApp
Ответим на Ваши вопросы, предоставим всю необходимую дополнительную информацию.
ООО «Орион Недвижимость»
УНП 193609339
Лицензия Министерства Юстиции №02240/436 от 03.02.2022 г.
Договор №38/2а от 19.01.2026.

Вы нашли объявление на GoHome.by (ГоуХоум.бай)

УНП 193820882
Лицензия 02240/501 выдана 06.03.2025 МЮ РБ

  • Номер объявления:
    798305
  • Дата обновления:
    09.03.2026
  • Область:
    Минская область
  • Район Беларуси:
    Минский район
  • Населенный пункт:
  • Район:
    Октябрьский район
  • Улица, дом:
    Левина ул., 2
  • Станция метро:
    Рядом нет метро
  • Тип объекта:
  • Площадь:
    64 м2
  • Год постройки:
    2022
  • Санузел:
    Нет
  • Телефон:
    Нет
  • Договор:
    № 38/2а от 2026-01-19
Распечатать
Пожаловаться на объявление
Вам может быть интересно
Помещений: 0, от 42.6 до 286 м2
г. Минск, Червякова ул., 4
Центральный район
Расположение и окружение: · Удобные подъездные путии парковка перед входом · Рядом остановки автобусов и трамваев · В шаговой доступности: школы, детский сад, общежитие, новый ЖК «Фарфоровый» Характеристики помещения:…
630
Дата обновления: 13.05.2026
от 1 398,1 руб
≈от 426€
32,8 руб/м²
10€/м²
Помещений: 0, 259.5 м2
г. Минск, Червякова ул., 4
Центральный район
Сдаётся помещение в Минске по адресу ул. Червякова, 4 общей площадью 259,5 кв.м. Объект расположен на первом этаже отдельно стоящего здания. Расположение и окружение: · Жилой район, перекрёсток ул. Даумана и пр-та Машер…
624
Дата обновления: 13.05.2026
8 516,8 руб
≈2 595€
32,8 руб/м²
10€/м²
Помещений: 0, 10 м2, 1991 г.
г. Минск, Ложинская ул., 23
Первомайский район
Уручье
Предлагаем в аренду современный и комфортный торговый павильон на ул. Ложинской, 23 площадью 10,00 кв.м. Первый этаж одноэтажного отдельно стоящего здания. Характеристики: - отопление - электроэнергия - современный ремон…
11
Дата обновления: 12.05.2026
900,0 руб
≈900€
90,0 руб/м²
90€/м²
Помещений: 0, 149 м2, 2025 г.
г. Минск, Восточная ул., 166
Советский район
Сдается помещение по адресу г. Минск ул Восточная 166 площадью 149 кв.м. Помещение находится в густонаселенном районе на первом этаже многоэтажного дома в жилом районе.Удобные транспортные маршруты обеспечивают легкий до…
533
Дата обновления: 12.05.2026
5 837,8 руб
≈2 086$
39,2 руб/м²
14$/м²
Помещений: 1, 29.5 м2, Этаж 1 из 25, 2025 г.
г. Минск, Леонида Щемелёва, 30
Октябрьский район
Аэродромная
Сдаётся административно-торговое помещение на 1 этаже, с отдельным входом по ул. Щемелёва, 30. Помещение от собственника в сданном 25-ти этажном доме без отделки. По согласованию сметы с собственником возможна черновая …
180
Дата обновления: 11.05.2026
1 485,9 руб
≈531$
50,4 руб/м²
18$/м²
Помещений: 0, 187.2 м2, 2004 г.
г. Минск, Сурганова ул., 29
Советский район
Академия наук
Предлагаем в аренду торговое помещение на первом этаже по адресу: ул. Сурганова, 29. Удобное расположение в шаговой доступности от метро «Академия Наук». Это идеальное место для вашего бизнеса, обеспеченное высоким пешех…
483
Дата обновления: 11.05.2026
Помещений: 0, 120.6 м2, 2017 г.
г. Минск, Мстиславца ул., 3
Первомайский район
Восток
Предлагаем в аренду 120 м2 коммерческого помещения по ул. Мстиславца, 3, в Первомайском районе. Локация: Рядом со станцией метро «Восток» — высокий трафик и отличная видимость. Состояние: Помещение с отличным ремонтом, г…
270
Дата обновления: 10.05.2026
5 062,8 руб
≈1 809$
42,0 руб/м²
15$/м²
Помещений: 0, 53.7 м2, 2023 г.
г. Минск, Братская ул., 13
Октябрьский район
Ищете удобное помещение для бизнеса или личных целей? Предлагаем вам отличную возможность! Коммерческое помещение находится на первом этаже жилого дома, в развивающемся комплексе "Минск-Мир". Отличное расположение , вбли…
1430
Дата обновления: 08.05.2026
2 554,5 руб
≈913$
47,6 руб/м²
17$/м²
Помещений: 0, 177.1 м2
г. Минск, Прушинских ул., 68
Ленинский район
Универсальное помещение 177 м2 в Лошице под торговлю/общепит Готовое универсальное помещение 177,1 м2 в отдельно стоящем нежилом здании. Минск, ул. Прушинских 68 (Ленинский район, Лошица). ✓ Два отдельных входа (для клие…
1930
Дата обновления: 08.05.2026
4 650,6 руб
≈1 417€
26,3 руб/м²
8€/м²
Помещений: 0, 76 м2, 1999 г.
г. Минск, Немига ул.
Центральный район
Немига
Магазин в торговом центре на Немиге! Выходит витрина магазина прямо на улицу Немигу. Отличная территория с высоким трафиком, в окружении бутиков и шоурумов. Есть подсобные, складские помещения, отдельные санузлы, скорост…
3587
Дата обновления: 07.05.2026
2 992,9 руб
≈912€
39,4 руб/м²
12€/м²