Купить 1-комнатную квартиру, Гродно, Асфальтная, 61

Просмотры: 47 всего, 48 за месяц, 48 за неделю
  • Комнат:
    1-комнатная
  • Площадь общая:
    43.3 м2
  • Площадь жилая:
    16.7 м2
  • Площадь кухни:
    8.3 м2
  • Этаж:
    2 из 9
  • Год постройки:
    2019

179 150 руб
или 4 137 руб/м2
61 000$
или 1 409$/м2
Описание

1-комнатная квартира
ул. Асфальтная, д.61
2/9 этажного панельного
дома 2019 года
43,3/16,7/8,3
Продаётся стильная 1‑комнатная квартира с новым ремонтом в г. Гродно, ул. Асфальтная, д. 61, 2/9 панельного дома 2019 года постройки. Квартира полностью готова к проживанию, отличный вариант как для себя, так и для сдачи в аренду.
Основная информация
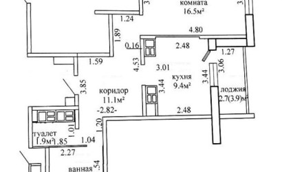
•Общая площадь по СНБ: 43,3 м²
•Жилая комната: 16,7 м²
•Кухня: 8,3 м²
•Лоджия застеклённая: 2,7 м² (3,9 м² с учётом коэффициента)
•Этаж: 2 из 9
•Дом 2019 года постройки, аккуратный подъезд, благоустроенный двор
•Удобная планировка: просторный коридор 11,1 м² с большим шкафом‑купе, изолированная комната и кухня.
•Современный качественный ремонт: натяжные потолки, ровные светлые стены, единый ламинат по всей квартире.
•Санузел раздельный, полностью в плитке: ванна стандартного размера, современная тумба с раковиной, полотенцесушитель, стиральная машина.
•Уютная кухня с выходом на лоджию: функциональный кухонный гарнитур, газовая плита и духовой шкаф, вытяжка, обеденная зона с круглым столом и комфортными стульями.
•Светлая жилая комната правильной формы, легко зонируется; при необходимости остаётся мебель (диван, шкафы, тумба под ТВ).
•Дом новой застройки, чистый подъезд, ухоженная придомовая территория.
•Есть детская площадка и парковочные места во дворе.
•Рядом детский сад, остановки общественного транспорта, удобный выезд в центр и другие районы.
•Отлично подойдёт как для проживания, так и для инвестиций под аренду.
•Работаем со всеми вариантами покупки: поможем оформить ипотечный кредит в банках и через «Жилищный баланс».
•Организуем оперативную продажу вашей квартиры для покупки этой.
•При покупке квартиры через агентство недвижимости ваша сделка полностью застрахована, вы получаете бесплатное юридическое сопровождение на всех этапах.

Получай предложения от собственников первым!
Вы нашли объявление на GoHome.by (ГоуХоум.бай)

УНП 101214439
Лицензия 02240/8 (риэлтерские услуги) от 17.02.2005г. МЮ РБ

  • Номер объявления:
    801358
  • Дата обновления:
    30.03.2026
  • Площадь общая:
    43.3 м2
  • Площадь жилая:
    16.7 м2
  • Площадь кухни:
    8.3 м2
  • Этаж:
    2 из 9
  • Год постройки:
    2019
  • Раздельный санузел:
    Есть
  • Телефон:
    Нет
  • Договор:
    № 258/17 от 30.03.2026
Распечатать
Пожаловаться на объявление
Вам может быть интересно
1-комнатная, 45/16.5/9.4 м2, Этаж 16 из 18, 2026 г.
г. Гродно, Старомалыщинская, 118
Продается новая 1-х комнатная квартира ул.Старомалыщинская дом 118 16 этаж /18 этажного жилого дома. Год постройки 2026. Площадь общая 45.01 , жилая 16.5, просторная кухня 9.4 м2. Одна лоджия 3.9 м2 застеклена . Ра…
39
Дата обновления: 01.04.2026
145 380 руб
49 500$
3 230 руб/м²
1 100$/м²
1-комнатная, 29.8/17.1/6.1 м2, Этаж 3 из 5, 1963 г.
г. Гродно, Максима Горького, 67
Продается однокомнатная квартира по улице М. Горького, д. 67. Квартира расположена на 3 этаже 5 этажного кирпичного дома 1963 года постройки. Общая площадь 29,8 м.кв, жилая 17,1 м.кв, кухня 6,1 м.кв. Высота потолков 2,50…
92
Дата обновления: 23.03.2026
117 180 руб
39 900$
3 930 руб/м²
1 339$/м²
1-комнатная, 43/40/- м2, Этаж 4 из 16, 2020 г.
г. Гродно, Виктора Саяпина, 8
43 м2 общ площадь/ жилая 28,4 м2/ 2020 год постройки монолитный дом Продается уютная, светлая, евро 2-х комнатная квартира на идеальном 4 этаже/16 монолитного жилого дома, расположенная по ул. Саяпина,8. Квартира полност…
111
Дата обновления: 20.03.2026
187 960 руб
64 000$
4 370 руб/м²
1 488$/м²
1-комнатная, 47.2/19/9.4 м2, Этаж 3 из 15, 2008 г.
г. Гродно, Пушкина, 37
Продается 1-х комнатная квартира ул.Пушкина 37 3 этаж/15 этажного сборно-монолитного жилого дома. Год постройки 2008. Площадь общая 47.2 , жилая 19.0 уютная кухня 9.4 м2 совмещена с залом. Одна лоджии 3.2 м2, утепл…
106
Дата обновления: 18.03.2026
211 460 руб
72 000$
4 480 руб/м²
1 525$/м²
1-комнатная, 43.2/19.1/8.1 м2, Этаж 4 из 9, 1976 г.
г. Гродно, Домбровского, 57
Продается светлая уютная однокомнатная квартира , расположенная на улице Домбровского 57. Панельный дом 1976 года, 4 этаж из 9 . Удобное местоположение дома. Уютный тихий двор, аккуратный чистый подъезд, спокойные с…
194
Дата обновления: 16.03.2026
146 550 руб
49 900$
3 390 руб/м²
1 155$/м²
1-комнатная, 30.5/17.8/- м2, Этаж 2 из 4, 1963 г.
г. Гродно, Максима Горького, 63
Продается однокомнатная квартира на ул. Горького, 63. Квартира находится на 2 этаже 4-этажного кирпичного дома. Год постройки дома - 1963. Общая площадь - 30.5м2, жилая - 17.8м2. Санузел - совмещенный. В квартире выполн…
137
Дата обновления: 13.03.2026
117 180 руб
39 900$
3 840 руб/м²
1 308$/м²
1-комнатная, 45.8/16.5/9.4 м2, Этаж 18 из 19, 2023 г.
г. Гродно, Валентины Макаровой, 2Б
Продается отличная светлая просторная 1-комнатная квартира с современным ремонтом, расположенная в молодом, но уже развитом районе города по ул. Макаровой 2 Б. Панельный дом 2023 года, 18 этаж из 19. Удобная большая парк…
312
Дата обновления: 12.03.2026
196 480 руб
66 900$
4 290 руб/м²
1 461$/м²
1-комнатная, 31.9/15.4/8.1 м2, Этаж 2 из 3
г. Гродно, Телеграфная, 22А
Продается 1-комнатная квартира в Историческом центре ул.Телеграфная дом 22А 2 этаж /3 этажного кирпичного жилого дома. Год постройки 1917.Год реконструкции 1999. Площадь общая 31.9, жилая 15.4, кухня 8.1 м2.Высота пот…
249
Дата обновления: 12.03.2026
199 710 руб
68 000$
6 260 руб/м²
2 132$/м²
1-комнатная, 43.2/17.2/8.2 м2, Этаж 2 из 9, 1977 г.
г. Гродно, Болдина, 6В
1-комнатная квартира напротив лесопарковой зоны «Пышки». Улица Болдина,6В 2 этаж из 9 Год постройки – 1977 Дом из железобетонных панелей Общая площадь - 43,2 кв. м., жилая – 17,2 кв. м., кухня – 8,2 кв. м. Квартира уд…
371
Дата обновления: 12.03.2026
132 160 руб
45 000$
3 060 руб/м²
1 042$/м²
1-комнатная, 41.5/17.4/10 м2, Этаж 16 из 16, 2020 г.
г. Гродно, Виктора Саяпина, 8
Продается 1-комнатная квартира по ул. Саяпина, 8 Общая площадь по СНБ 41,5 м.кв. Жилая площадь 17,4 м.кв. Кухня 10,0 м.кв. Этаж 16 из 16 Год постройки 2020 год Отличное предложение для молодых, динамичных людей в микрора…
141
Дата обновления: 06.03.2026
190 900 руб
65 000$
4 600 руб/м²
1 566$/м²