Купить 2-комнатную квартиру, Могилев, Большая Машековская, 13/А

Просмотры: 144 всего, 116 за месяц, 22 за неделю
  • Комнат:
    2-комнатная
  • Площадь общая:
    58.08 м2
  • Площадь жилая:
    28.96 м2
  • Площадь кухни:
    10.87 м2
  • Этаж:
    9 из 10
  • Год постройки:
    2000

199 350 руб
или 3 432 руб/м2
69 500$
или 1 197$/м2
Описание

В продаже 2-х комнатная квартира в центре города по адресу: г.Могилев, ул.Большая Машековская, 13а, с 9-го этажа 10-этажного кирпичного дома 2000 года постройки открывается прекрасный вид из окон.

Вся инфраструктура (в т.ч. ЦВР "Агат", магазин "Плюс", ресторан "Шале", аптеки, банк, СШ9, несколько детских садов) в пешей доступности.
До остановки общественного транспорта 2 минуты пешком.
Парковочных мест достаточно.

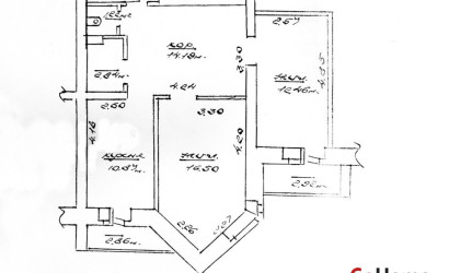
Квартира общей площадью 58,08
кв.м (без учета площади лоджий). Включает: площадь жилых комнат - 16,50 кв.м. и 12,46 кв.м., прихожая - 14,19 кв.м., кухня - 10,87 кв.м., ванная комната - 2,84 кв.м., санузел - 1,22 кв.м, две лоджии - 2,92 кв.м. и 2,86 кв.м. Высота потолков -2,50 (см.фото тех. паспорта).

Просторный тамбур (прихожая) со шкафом-купе на две квартиры.
Функциональная планировка, просторные комнаты разделены. Квартира не угловая, теплая, сухая.

Состояние квартиры - жилое с ремонтом.
На полу - натуральная доска, покрытая лаком, и плитка.
Окна ПВХ, на лоджии - с алюминиевой рамой.

Остальную информацию в
Вы можете получить по номеру, указанному в объявлении. Приглашаем на показ в любое удобное время по предварительной договоренности.

При необходимости поможем в продаже Вашей недвижимости для покупки этой.

Договор 176/16 от 15.12.2025г

ОДО «Юриэлт», УНП 101214439, Лицензия Министерства юстиции РБ №02240/8 от 17.02.2005 года (бессрочная) на право осуществления деятельности по оказанию юридических услуг - риэлтерских услуг.

Получай предложения от собственников первым!
Вы нашли объявление на GoHome.by (ГоуХоум.бай)

УНП 101214439
Лицензия 02240/8 (риэлтерские услуги) от 17.02.2005г. МЮ РБ

  • Номер объявления:
    787708
  • Дата обновления:
    30.12.2025
  • Площадь общая:
    58.08 м2
  • Площадь жилая:
    28.96 м2
  • Площадь кухни:
    10.87 м2
  • Этаж:
    9 из 10
  • Год постройки:
    2000
  • Раздельный санузел:
    Есть
  • Телефон:
    Нет
  • Договор:
    № 176/16 от 15.12.2025
Распечатать
Пожаловаться на объявление
Вам может быть интересно
2-комнатная, 65.13/32.49/10.15 м2, Этаж 7 из 9, 1999 г.
г. Могилев, Краснозвездная ул., 66/А
Продается 2-х комнатная квартира по улице Краснозвездной( район Казимировеа) дом 66А.Экологически чистый динамично развивающийся район города, один из самых популярных и востребованных. Квартира расположена 7-ом этаже 9-…
279
Дата обновления: 04.02.2026
222 300 руб
77 500$
3 410 руб/м²
1 190$/м²
2-комнатная, 55.8/31.75/6.2 м2, Этаж 5 из 5
г. Могилев, Первомайская ул., 20
Продается 2-х комнатная квартира в самом центре города по ул Первомайской, дом 20 на 5- ом этаже 5-ти этажного кирпичного дома, не угловая. Общая площадь квартиры 55,8 м кв, две раздельные комнаты площадью 17,24 м.кв и …
64
Дата обновления: 04.02.2026
177 550 руб
61 900$
3 180 руб/м²
1 109$/м²
2-комнатная, 51.4/30.95/9.6 м2, Этаж 4 из 5, 1978 г.
г. Могилев, просп. Димитрова, д.
В продаже просторная, теплая двухкомнатная квартира на четвертом этаже по адресу пр- т Димитрова 74/4. В квартире имеется балкон, жилые комнаты не проходные, расположены на две стороны, сан.узел раздельный. Установлены о…
89
Дата обновления: 02.02.2026
134 810 руб
47 000$
2 620 руб/м²
914$/м²
2-комнатная, 63.7/33.5/11.7 м2, Этаж 4 из 5
г. Могилев, Левая Дубровенка, 32/А
Продается просторная 2-х комнатная квартира в самом центре г.Могилева по ул.Левая Дубровенка д.32А, 2017 года постройки. Общей площадью 63,7 м2., жилая 33.5 кв.м., кухня 11.7 кв.м. Квартира расположена на 4 этаже 5-ти эт…
22
Дата обновления: 02.02.2026
258 160 руб
90 000$
4 050 руб/м²
1 413$/м²
2-комнатная, 69.5/41.3/11.1 м2, Этаж 2 из 7, 2008 г.
г. Могилев, Дзержинского, 17
Продается просторная 2-х комнатная квартира в самом центре г.Могилева по ул.Дзержинского д.17, 2008 года постройки. Общей площадью 69,5 м2., жилая 41.3 кв.м., кухня 11.1 кв.м. Квартира расположена на 2 этаже 7-ти этажног…
17
Дата обновления: 02.02.2026
351 380 руб
122 500$
5 060 руб/м²
1 763$/м²
2-комнатная, 54/32.8/7.8 м2, Этаж 6 из 9
г. Могилев, Мовчанского, 63
В продаже 2-комнатная квартира по ул.Мовчанского,63. Располагается на 6 этаже 9-этажного крупнопанельного дома. Общая площадь 54 м. кв., жилая 32.8 м. кв., кухня 7.8 м. кв. В квартире сделан современный качественный ремо…
48
Дата обновления: 29.01.2026
229 190 руб
79 900$
4 240 руб/м²
1 480$/м²
2-комнатная, 44.57/29.2/5.95 м2, Этаж 4 из 4
г. Могилев, Строителей, 20
В продаже 2-комнатная квартира по адресу : ул. Строителей, д. 20 , 4 этаж 4-этажного кирпичного дома, общей площадью 44,57 кв. м, кухня 5,95 кв. м, комнаты 16,85 кв. м. и 12,35 кв. м. Квартира в жилом состоянии. Есть вс…
60
Дата обновления: 29.01.2026
94 660 руб
33 000$
2 120 руб/м²
740$/м²
2-комнатная, 44.8/30.1/5.4 м2, Этаж 5 из 5
г. Могилев, Лазаренко, 44
В продаже 2-х комнатная квартира по адресу: г.Могилев, ул. Лазаренко, 44, на 5 этаже 5-этажного КИРПИЧНОГО дома 1965 года постройки. Квартира общей площадью 44,8 кв.м.(без учёта балкона).А именно: площадь жилых комнат -…
55
Дата обновления: 29.01.2026
103 260 руб
36 000$
2 300 руб/м²
804$/м²
2-комнатная, 47.6/29.3/7 м2, Этаж 4 из 5, 1974 г.
г. Могилев, Непокорённых, 21
В продаже 2-х комнатная квартира по адресу: бул-р. Непокоренных, 21. Расположена на 4-м этаже 5-и этажного кирпичного дома, 1974 г/п. Общая площадь 47.6/ жилая 29.3/ кухня 7. Квартира без евроремонта. С/у совмещённый, им…
67
Дата обновления: 27.01.2026
129 080 руб
45 000$
2 710 руб/м²
945$/м²
2-комнатная, 51.2/31.5/- м2, Этаж 5 из 9
г. Могилев, Бурденко, 4
В продаже 2-комнатная квартира в центре города по адресу: г.Могилев, ул.Бурденко, 4, на 5 этаже 9-этажного панельного дома 1988 года постройки. Тамбур на две квартиры. В квартире выполнен аккуратный косметический ремон…
74
Дата обновления: 26.01.2026
157 760 руб
55 000$
3 080 руб/м²
1 074$/м²