Продажа домов в Беларуси

0-комнатная, -/-/- м2, (4.25 соток), 1 эт.
Брестская область, д. Каменица-Жировецкая, Мухавецкий с/с
Коробка дачного дома жилого типа в Брестском р-не. Стены: материал - газосиликатный блок. Фундамент: ленточный монолитный; материал - бетон; подушка - бетонная. Коммуникации: газ - централизованный (по улице, взносы…
211
Дата обновления: 18.12.2025
2-комнатная, 59.4/51/8.4 м2, (24.92 соток), 1 эт.
Витебская область, д. Слобода
Твой билет в закрытый мир Березинского заповедника! Мечтаешь о месте, куда не ступает нога случайного человека? Это оно! Всего 30 избранных собственников имеют право здесь жить, охотиться за лесными дарами и дышать этим…
282
Дата обновления: 17.12.2025
70 180 руб
≈24 900$
1 180 руб/м²
419$/м²
3-комнатная, 73.5/47.2/6.4 м2, (3 соток), 1 эт., 1970 г.
Брестская область, г. Пинск, Новосёлов
Продается часть жилого дома по улице Новоселов. Располагается на участке площадью 0,0300 га. Общая площадь части дома 73,5 м², жилая 47,2 м², кухня 6,4 м². Год постройки 1970. Три жилые комнаты. Крыша - шифер. Окна ПВХ.…
554
Дата обновления: 17.12.2025
76 100 руб
≈27 000$
1 040 руб/м²
367$/м²
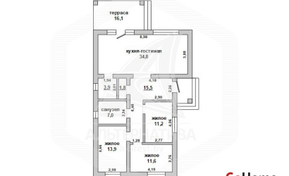
6-комнатная, 126/-/20 м2, (20 соток), 2 эт., 2000 г.
Брестская область, пгт. Домачево, Домачевский с/с
Коробка жилого дома в Брестском р-не. 2000 г.п. 1 этаж и мансарда. Общ.СНБ - 126,9 кв.м, общ.- 126,9 кв.м, жил.- кв.м, кух.- 20,0 кв.м. 6 комнат, высота потолка - 2,70 м. Стены: материал - газосиликатный блок; отделка ф…
1415
Дата обновления: 17.12.2025
35 230 руб
≈12 500$
280 руб/м²
99$/м²
5-комнатная, 124.4/70.2/11.8 м2, (10.85 соток), 2 эт., 2019 г.
Брестская область, г. Брест, ул. Клейниковская
Лот 8840. Коттедж с 5 комнатами в Новых Козловичах! Запишитесь на просмотр по номеру в объявлении. Смотрите фото, читайте описание, а если остались вопросы – набирайте! Покупатель не платит никаких комиссий агентству! По…
825
Дата обновления: 17.12.2025
538 300 руб
≈190 981$
4 330 руб/м²
1 535$/м²
3-комнатная, 72.9/49.4/10.8 м2, (25 соток), 1 эт., 1975 г.
Брестская область, д. Новоселки, Новоселковский с/с
Жилой дом в Кобринском р-не. 1975 г.п. 1 этаж. Общ.СНБ - 83,6 кв.м, общ.- 72,9 кв.м, жил.- 49,4 кв.м, кух.- 10,8 кв.м. 3 комнаты, высота потолка - 2,50 м. Стены: материал - газосиликатный блок; отделка фасада - силикатн…
460
Дата обновления: 17.12.2025
45 100 руб
≈16 000$
620 руб/м²
219$/м²
0-комнатная, 58.4/24.3/18.7 м2, (25.1 соток)
Минская область, д. Убель, Речная ул., 2
Ваш дом ожидает вас в д. Убель, всего в 37 км от Минска! 1929 год постройки – история и уют в каждой стене. Обширный участок в 25 соток, идеальный для вашего рыболовного рая. В соседних лесах множество мест, где можно на…
381
Дата обновления: 16.12.2025
87 380 руб
≈31 000$
1 500 руб/м²
531$/м²
Найдено объектов: 3575
0-комнатная, 40.5/32/8.5 м2, (5.96 соток), 1 эт.
Гродненская область, г. Лида, Школьный пер.
Продается 1/2 доля в праве собственности на жилой дом. Центральное водо-газоснабжение, местная канализация. Дерево обложено кирпичом, окна ПВХ, хороший ремонт, плитка в санузеле. На участке в 6 соток благоустроенная тер…
545
Дата обновления: 16.12.2025
56 370 руб
≈20 000$
1 390 руб/м²
494$/м²
8-комнатная, 325.4/200.4/14.6 м2, (14.27 соток), 3 эт., 2004 г.
Брестская область, г. Брест, ул. Вересковая
Лот 9281. Продажа большого дома, мкрн. Вересковая (Плоска). Запишитесь на просмотр по номеру в объявлении. Смотрите фото, читайте описание, а если остались вопросы – набирайте! Покупатель не платит никаких комиссий агент…
381
Дата обновления: 16.12.2025
500 870 руб
≈177 700$
1 540 руб/м²
546$/м²
2-комнатная, 201/48.7/18.3 м2, (10.4 соток), 1 эт., 2000 г.
Гомельская область, аг. Ерёмино, Советская ул. 197
Продается дом с пристройкой (летний домик). Свободная планировка, наличие двух подвалов, собственный колодец. В пристройке также 2 жилые комнаты, летняя кухня, печное отопление.
344
Дата обновления: 16.12.2025
183 210 руб
≈65 000$
910 руб/м²
323$/м²
0-комнатная, 55.5/15.8/- м2, (2 соток)
Гродненская область, г. Новогрудок, Торговая ул., 17
Продается часть дома по ул.Торговая, д.17, г.Новогрудок. Общая площадь 55,5 м.кв, жилая 15,8 м. кв. Дом и окна деревянные Отопление печное, газ идет по улице. Водоснабжение и канализация рядом с домом. Тихий район, хорош…
678
Дата обновления: 16.12.2025
16 630 руб
≈5 900$
300 руб/м²
106$/м²
3-комнатная, 62.8/37.8/9.6 м2, (15 соток), 1 эт., 1963 г.
Брестская область, г. Брест, Ковалево
Жилой дом в г.Бресте. 1963 г.п., реконструкция 2006 г. 1 этаж. Общ.СНБ - 62,8 кв.м, общ.- 62,8 кв.м, жил.- 37,8 кв.м, кух.- 9,6 кв.м. 3 комнаты, потолки - 2,6 м. Стены: материал - силикатный кирпич; отделка фасада - ош…
34198
Дата обновления: 16.12.2025
211 400 руб
≈75 000$
3 370 руб/м²
1 194$/м²
4-комнатная, 176.5/88.1/16.6 м2, (15.09 соток), 1 эт., 2006 г.
Брестская область, д. Черни, Чернинский с/с
Лот 6923. Продажа коттеджа у леса в пригороде, Чернинский с/с. Запишитесь на просмотр по первому номеру , указанном в объявлении. Наши ПОКУПАТЕЛИ НЕ ПЛАТЯТ АГЕНТСТВУ! А также мы работаем с кредитами банков. Смотрите фото…
993
Дата обновления: 16.12.2025
572 180 руб
≈203 000$
3 240 руб/м²
1 150$/м²
3-комнатная, 122/74.3/13.6 м2, (15 соток), 1 эт., 2016 г.
Брестская область, п. Мухавец, Мухавецкий с/с
Жилой дом в Брестском р-не. 2016 г.п. 1 этаж. Общ.СНБ - 149,2 кв.м, общ.- 122,0 кв.м, жил.- 74,3 кв.м, кух.- 13,6 кв.м. 3 комнаты, высота потолка - 2,70 м. Стены: материал - газосиликатный блок; утепление - пенополистир…
245
Дата обновления: 16.12.2025
465 070 руб
≈165 000$
3 810 руб/м²
1 352$/м²
0-комнатная, 116/72.9/- м2, (4.83 соток), 1 эт., 2025 г.
Минская область, г. Минск, Столетова проезд
Партизанский район
Свой тихий уголок среди городской жизни Лучшее начало дня - утренний кофе на собственной открытой террасе. В своем доме, где жизнь становится уютнее, спокойнее и ближе к природе. Уютный дом в городе Расположенный в черте…
548
Дата обновления: 15.12.2025
704 650 руб
≈250 000$
6 070 руб/м²
2 155$/м²
3-комнатная, 180/80/- м2, (6 соток), 2 эт., 2005 г.
Брестская область, д. Клейники, Вишневая
Лот. 69425 В агрогородке Клейники Брестского района продается жилой дом, с мансардой, построенный в 2005году, реконструированный в 2019 году. Участок площадью 0,063га в пожизненно наследуемом владении. Общая площадь дом…
310
Дата обновления: 15.12.2025
521 440 руб
≈185 000$
2 900 руб/м²
1 028$/м²
4-комнатная, 227.8/82.4/- м2, (10 соток), 2 эт., 2015 г.
Брестская область, г. Брест, Лидская
Лот. 73925 В продаже жилой дом в г. Бресте, микрорайон Плоска. Дом 2015 г. п., расположен на участке 0,1014 га, общая площадь 227,8 кв. м., жилая – 82,4 кв. м. В доме 4 комнаты, на каждом этаже есть кухонная зона и сан…
375
Дата обновления: 15.12.2025
295 950 руб
≈105 000$
1 300 руб/м²
461$/м²
5-комнатная, 434.7/158.3/16.9 м2, (8.32 соток), 4 эт., 2001 г.
Брестская область, г. Брест, ул. Суворова, д.
Лот 8339. Жилой дом в микрорайоне Ковалёво в Бресте. Звоните для более подробной информации Наши покупатели не платят за услуги агентства. Представляем Вашему вниманию уютный просторный коттедж для комфортного проживания…
1562
Дата обновления: 15.12.2025
391 790 руб
≈139 000$
900 руб/м²
320$/м²
4-комнатная, 243.9/127/28.9 м2, (10.04 соток), 2 эт., 2011 г.
Брестская область, г. Брест, ул. Рябиновая, д.
Лот 7142. Звоните для более подробной информации Продаётся комфортный жилой дом в г. Бресте в микрорайоне Вулька. Дом мансардного типа с террасой. Стены - пеноб.блок, утеплён и оштукатурен, кровля - металлочерепица. К до…
1769
Дата обновления: 15.12.2025
1 042 880 руб
≈370 000$
4 280 руб/м²
1 517$/м²
0-комнатная, 52.3/26.9/- м2, (25 соток)
Минская область, д. Смольница, Центральная ул.
Продается участок 25соток в ПНВ с возможностью получения еще 25 в ЛПХ в 25 км от МКАД в д. Смольница Смолевичского района. Асфальтированная дорога прямо к дому. Участок правильной прямоугольной формы. На территории подго…
847
Дата обновления: 15.12.2025
111 330 руб
≈39 500$
2 130 руб/м²
755$/м²
1-комнатная, 72.5/43.2/16.8 м2, (25 соток), 2 эт., 1988 г.
Гомельская область, д. Старое Село, Молодёжная
Продается двухэтажный кирпичный дом в агрогородке Старое Село, Ветковский район, по ул. Молодежной! Общая площадь дома составляет 72,5 м², жилая – 43,2 м², кухня – 16,8 м². Реконструкция была проведена в 2024 году. На пе…
792
Дата обновления: 15.12.2025
107 110 руб
≈38 000$
1 480 руб/м²
524$/м²
0-комнатная, 88.8/71.8/11.15 м2, (7 соток), 1 эт.
Гродненская область, г. Лида, Партизанская ул., 7
Продаётся 4-х комнатный дом в р-не ул.Ген.Беды. Общая площадь 88,8 м2, жилая 71.8 м2, кухня 11.1 м2.Дом деревянный, обложен кирпичом. Горячая вода подогревается бойлером. На участке колодец. Природный газ, местная канал…
849
Дата обновления: 15.12.2025
76 100 руб
≈26 999$
860 руб/м²
304$/м²
3-комнатная, 75/42/18 м2, (17 соток), 1 эт., 1962 г.
Брестская область, д. Ляхчицы, Октябрьская, 36
Продам дом в деревне. Тихое место. В доме душ, туалет, вода, интернет. Кухня большая. Дом тёплый, натяжные потолк в двух комнатах. Есть гараж , сарай большой и маленький , летняя кухня, огород. Звоните. Торг уместен…
6787
Дата обновления: 14.12.2025
50 730 руб
≈18 000$
680 руб/м²
240$/м²
3-комнатная, 59.5/37.1/- м2, (6 соток), 1 эт., 1954 г.
Брестская область, г. Брест, ул. Сикорского, д.
Лот. 12825 Продается жилой дом в Бресте! Общая площадь: 59,5 кв.м Жилая площадь: 37,1 кв.м Количество комнат: 3 Санузел есть. Характеристики: • Стены: шлакобетонный блок • Отделка фасада: оштукатурен и окрашен • …
736
Дата обновления: 14.12.2025
166 300 руб
≈59 000$
2 790 руб/м²
992$/м²
3-комнатная, 172.2/83.5/12.9 м2, (11.97 соток), 3 эт., 2001 г.
Брестская область, г. Брест, ул. Есенина, д.
Лот 8335. Часть дома с видом на озеро Звоните для более подробной информации Наши покупатели не платят за услуги агентства. Продажа части дома в престижном районе города Бреста. Ознакамливаемся с лотом. Продажа невыделен…
1337
Дата обновления: 13.12.2025
253 390 руб
≈89 900$
1 470 руб/м²
522$/м²
0-комнатная, 62.4/40.9/- м2, (11.4 соток)
Гродненская область, г. Новогрудок, Слуховичская ул., 36
В доме необходим ремонт. Общая площадь 62,4 м.кв., жилая 40,9. Отопление печное, газ на территории, канализация и водопровод местная. Участок 11,3 сотки. Приобретение квартиры, дома или коммерческой недвижимости – это ва…
607
Дата обновления: 13.12.2025
30 720 руб
≈10 900$
490 руб/м²
175$/м²
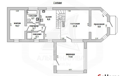
7-комнатная, 163.2/110.6/9.6 м2, (5 соток), 2 эт., 2012 г.
Брестская область, г. Брест, Мухавецкий с/с
Дачный домик жилого типа в Брестском р-не. 2012 г.п. 1 этаж, мансарда. Общ.СНБ - 163,2 кв.м, общ.- 163,2 кв.м, жил.- 110,6 кв.м, кух.- 9,6 кв.м. 7 комнат. Стены: материал - газосиликатный блок; отделка фасада - оштукату…
2156
Дата обновления: 13.12.2025
188 560 руб
≈66 900$
1 160 руб/м²
410$/м²
5-комнатная, 188.2/60.6/46.1 м2, (15 соток), 3 эт., 1997 г.
Брестская область, г. Брест, ул. Городская
Лот 9275. Продажа коттеджа на Плоске. .Звоните для более подробной информации . Наши ПОКУПАТЕЛИ НЕ ПЛАТЯТ АГЕНТСТВУ! Мы работаем с кредитами. Уютный просторный жилой дом для большой семьи, расположенный в микрорайоне Пло…
354
Дата обновления: 12.12.2025
450 980 руб
≈160 000$
2 400 руб/м²
850$/м²
2-комнатная, 56.1/22.8/4.2 м2, (25 соток), 1 эт.
Брестская область, д. Тобулки, Южная
Продается жилой одноэтажный дом по улице Южной в д. Тобулки Пинского района. Располагается на участке площадью 0,2500 га. Общая площадь дома 56,1 м², жилая 22,8 м², кухня 4,2 м². Год постройки 1947. Две жилые комнаты. К…
598
Дата обновления: 12.12.2025
29 310 руб
≈10 400$
520 руб/м²
185$/м²
5-комнатная, 200/70/30.38 м2, (6.35 соток), 2 эт., 2019 г.
Брестская область, г. Брест, Мухавецкий с/с
Дачный домик жилого типа в Брестском р-не. 2019 г.п. 2 этажа. Общ.СНБ ~ 200,0 кв.м, жил.~ 70,0 кв.м, кух.~ 30,38 кв.м. 5 комнат. Стены: материал - газосиликатный блок; утепление - пенополистирол; отделка фасада - штукат…
2243
Дата обновления: 12.12.2025
245 220 руб
≈87 000$
1 230 руб/м²
435$/м²