Купить 3-комнатную квартиру, Минск, Сурганова ул., 57 (Советский район)

Просмотры: 11 всего, 12 за месяц, 12 за неделю
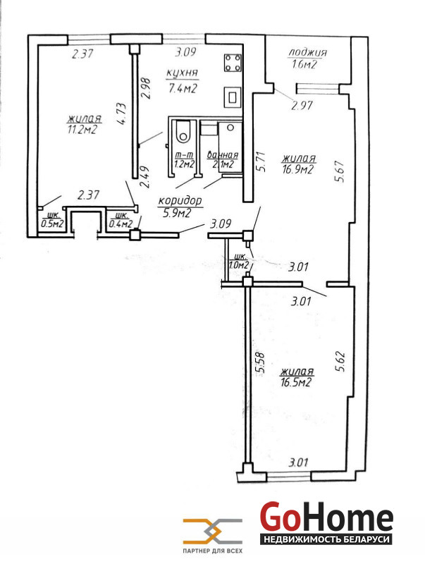
  • Комнат:
    3-комнатная
  • Площадь общая:
    64.7 м2
  • Площадь жилая:
    46.1 м2
  • Площадь кухни:
    7.4 м2
  • Этаж:
    2 из 9

352 080 руб
или 5 442 руб/м2
119 500$
или 1 847$/м2
Описание

Продаётся светлая и тёплая 3-комнатная квартира в доме, расположенном в одном из самых зелёных мест Советского района с артезианским водоснабжением. В доме был произведён капитальный ремонт в 2012 году с заменой основных коммуникаций (водоснабжение, газоснабжение, теплоснабжение), утеплён фасад дома.В квартире комнаты 16.9, 16.5 и 11.2 м.кв. расположены на разные стороны, окна выходят в основном во двор с видом на зелёную зону и детский садик. Окна стеклопакеты, в санузлах кафель и плитка, в кухне - кухонная мебель и встроенная кухня. Чистый подъезд, тихие соседи. В 5-ти минутах ходьбы находится Парк Дружбы народов (популярное место отдыха и проведения мероприятий) и площадь Банголор.Развитая инфраструктура: от пл. Банголор можно добраться на транспорте во все районы г. Минска, а в ближайшем будущем и на метро, строительство которого планируется завершить 2028-2029г.г. В настоящее время до станции метро Академия наук - три остановки.Также рядом есть всё необходимое для комфортной жизни: детские сады, две гимназии, торговые центры Европа и Рига, банки, почта, магазины Соседи, Светофор, Грошык и другие. До Комаровкого рынка - 15 мин.пешком.Торг.
ООО «Партнер для всех», УНП 690665135, лицензия Министерства юстиции Республики Беларусь № 02240/321 от 02.12.2016, договор на оказание риэлтерских услуг № 23/7 от 16.02.2026

Получай предложения от собственников первым!
Вы нашли объявление на GoHome.by (ГоуХоум.бай)

УНП 690665135
Лицензия 02240/321, МЮ РБ, 02.12.2016 г.

  • Номер объявления:
    799213
  • Дата обновления:
    13.03.2026
  • Площадь общая:
    64.7 м2
  • Площадь жилая:
    46.1 м2
  • Площадь кухни:
    7.4 м2
  • Этаж:
    2 из 9
  • Раздельный санузел:
    Нет
  • Телефон:
    Нет
  • Договор:
    № 23/7 от 2026-02-16
Распечатать
Пожаловаться на объявление
Вам может быть интересно
3-комнатная, 75.8/52.2/13.4 м2, Этаж 5 из 9
г. Минск, Сурганова ул., 40
Советский район
Академия наук
Предлагается уютная и просторная трёхкомнатная квартира в кирпичном доме, расположенная в самом сердце города на улице Сурганова. Этот отличный вариант для тех, кто ценит комфорт и удобство городского ритма. Основные хар…
592
Дата обновления: 16.03.2026
459 620 руб
156 000$
6 060 руб/м²
2 058$/м²
3-комнатная, 62.1/42/7.76 м2, Этаж 6 из 9, 1968 г.
г. Минск, Золотая Горка, 20
Советский район
Якуба Коласа пл.
Продаётся уютная 3 комнатная квартира в центре Минска. Хороший кирпичный дом после капитального ремонта (был 7 лет назад). Площадь квартиры по СНБ 65,6 метров квадратных. В жилых комнатах натуральный дубовый паркет в хор…
263
Дата обновления: 15.03.2026
398 260 руб
135 174$
6 410 руб/м²
2 177$/м²
3-комнатная, 96.6/69.4/- м2, Этаж 6 из 19, 2016 г.
г. Минск, ул. Беды, д. 36
Советский район
Продается прекрасная 3-х комнатная квартира г.Минск, ул.Беды д.36. Жилое помещение расположено на 6 этаже 19 этажного каркасно-блочного дома 2016 года постройки. Общая площадь 90,4м2 (по СНБ 96.6м2). Жилая 69.4м2 состоит…
5581
Дата обновления: 14.03.2026
822 020 руб
279 000$
8 510 руб/м²
2 888$/м²
3-комнатная, 74.1/53.45/6.61 м2, Этаж 8 из 9, 1974 г.
г. Минск, Кольцова, 32
Советский район
Московская
Продается 3-ех комнатная квартира в теплом кирпичном доме. Удобная планировка - окна на разные стороны.
216
Дата обновления: 13.03.2026
383 020 руб
130 000$
5 170 руб/м²
1 754$/м²
3-комнатная, 62.5/45.9/6.3 м2, Этаж 5 из 5
г. Минск, Куйбышева ул., 93
Советский район
Квартира-распашонка с современным ремонтом и мебелью. Комнаты изолированные. Санузел раздельный. Двор тихий и зеленый. Есть парковочное место. Все необходимое находится рядом: скверы, парки, кафе, рестораны, магазины, мн…
61
Дата обновления: 11.03.2026
409 540 руб
139 000$
6 550 руб/м²
2 224$/м²
3-комнатная, 98.1/66.1/- м2, Этаж 6 из 24, 2015 г.
г. Минск, Беломорская, 21
Советский район
Академия наук
Представьте: вы возвращаетесь домой не просто в квартиру. Вы попадаете в мир, где каждая деталь создана для вашего спокойствия и удовольствия. Вас встречает большое светлое лобби и внимание консьержа. Плавное движение л…
68
Дата обновления: 04.03.2026
762 800 руб
258 900$
7 780 руб/м²
2 639$/м²
3-комнатная, 62/40.4/8.2 м2, Этаж 2 из 9
г. Минск, Гамарника ул., 28
Советский район
Продается 3-комнатная квартира в г. Минске, по ул. Гамарника, 28. Квартира расположена на 2-м этаже 9-ти этажного панельного дома. Площадь общая 62 м.кв., жилая 40.4 м.кв., кухня 8.2 м.кв. Жилые комнаты: 17.4 м.кв., 12.7…
447
Дата обновления: 01.03.2026
321 150 руб
109 000$
5 180 руб/м²
1 758$/м²
3-комнатная, 125.2/69.9/25.9 м2, Этаж 3 из 9, 2004 г.
г. Минск, Сурганова ул., 27
Советский район
Академия наук
Премиум-класс: большая 3-комнатная квартира ️ Премиальная трехкомнатная квартира 126,8 кв.м со стильным ремонтом рядом с метро Академия наук. Подогрев полов, джакузи, кондиционеры, техника известных брендов, охраняемая …
155
Дата обновления: 20.02.2026
824 960 руб
280 000$
6 590 руб/м²
2 236$/м²
3-комнатная, 65.6/39.6/8.9 м2, Этаж 4 из 9, 1993 г.
г. Минск, Логойский тракт, 9
Советский район
Откройте для себя идеальный вариант комфортного проживания — просторную трехкомнатную квартиру, расположенную на уютном четвертом этаже девятиэтажного кирпичного дома. Изолированные комнаты обеспечивают свободу выбора ин…
132
Дата обновления: 20.02.2026
368 290 руб
125 000$
5 610 руб/м²
1 905$/м²
3-комнатная, 91.3/79/1 м2, Этаж 4 из 10, 2025 г.
г. Минск, Виталия Цвирко ул. 65
Советский район
Купить 3-комнатную квартиру с ВИДОМ НА ВОДОХРАНИЛИЩЕ! в СЕВЕРНЫЙ БЕРЕГ в ГОТОВОМ доме! Позвольте себе НОВЫЙ УРОВЕНЬ ЖИЗНИ! Готова к продаже, документы проверены риэлтером!! Продается квартира свободной планировки с клад…
17
589 250 руб
199 998$
6 450 руб/м²
2 191$/м²