Купить 3-комнатную квартиру, Минск, Плеханова ул., 56/2 (Ленинский район)

Просмотры: 24 всего, 25 за месяц, 25 за неделю
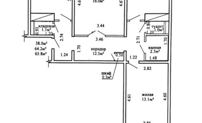
  • Комнат:
    3-комнатная
  • Площадь общая:
    67.5 м2
  • Площадь жилая:
    39.3 м2
  • Площадь кухни:
    8.7 м2
  • Этаж:
    9 из 12

310 510 руб
или 4 600 руб/м2
109 000$
или 1 615$/м2
Описание

Продается 3х комнатная квартира в Серебрянке, ул. Плеханова, 56/2.
Квартира с удачной планировкой, с раздельными комнатами , раздельным санузлом и двумя лоджиями, 9 этаж /12.

Получай предложения от собственников первым!
Вы нашли объявление на GoHome.by (ГоуХоум.бай)

УНП 192840863
Лицензия №02240/408 Минюста РБ от 09.02.2021

  • Номер объявления:
    796340
  • Дата обновления:
    24.02.2026
  • Площадь общая:
    67.5 м2
  • Площадь жилая:
    39.3 м2
  • Площадь кухни:
    8.7 м2
  • Этаж:
    9 из 12
  • Раздельный санузел:
    Нет
  • Телефон:
    Нет
  • Договор:
    № 27/4 от 2026-01-30
Распечатать
Пожаловаться на объявление
Вам может быть интересно
3-комнатная, 66.7/43.4/8.9 м2, Этаж 8 из 9, 2001 г.
г. Минск, ул. Лучины Янки, д. 46
Ленинский район
Жизнь в формате всё под рукой: от элитной гимназии до уютных зелёных аллей в Лошицком парке. До МЕТРО-4ост. – 3к в Лошице с большой кухней и раздельными комнатами на ул.Я.Лучины,46, Ст.Метро Слуцкий гостинец…
50
Дата обновления: 25.02.2026
367 480 руб
129 000$
5 510 руб/м²
1 934$/м²
3-комнатная, 59.71/35.88/7.68 м2, Этаж 1 из 3
г. Минск, Красноармейская ул., 32
Ленинский район
Первомайская
Для ценителей элитных квартир сталинской застройки. Квартира расположена на первом этаже трехэтажного кирпичного дома 1952г. Две изолированные комнаты 18,86 и 17,02м., кухня 7,68м., просторная ванная комната 3,35м вмещае…
252
Дата обновления: 25.02.2026
452 940 руб
159 000$
7 590 руб/м²
2 663$/м²
3-комнатная, 89.1/51.4/12.2 м2, Этаж 4 из 25, 2017 г.
г. Минск, Маяковского ул., 35
Ленинский район
Ковальская Слобода
Продаётся великолепная дизайнерская полностью укомплектованная трёхкомнатная квартира для жизни по улице Маяковского 35. Зелёный двор с закрытой территорией под видеонаблюдением с множеством вариантов для активного время…
646
Дата обновления: 23.02.2026
1 022 680 руб
359 000$
11 480 руб/м²
4 029$/м²
3-комнатная, 69.89/47.97/7.17 м2, Этаж 9 из 9, 1972 г.
г. Минск, Рокоссовского, 153
Ленинский район
Партизанская
Просторная трёхкомнатная квартира рядом с парком и рекой Свислочь! Удачная планировка: три большие изолированные комнаты, раздельный санузел, просторный коридор. Площадь общая по СНБ 69.89 / жилая 47.97 / кухня 7.17…
378
Дата обновления: 22.02.2026
321 900 руб
113 000$
4 610 руб/м²
1 617$/м²
3-комнатная, 50.37/34.24/6.15 м2, Этаж 2 из 5
г. Минск, Плеханова ул., 30
Ленинский район
Квартира с капремонтом дома в Минске, Плеханова 30 ️ Продается светлая и уютная квартира в одном из самых удобных районов. Отличный вариант для тех, кто ценит надежность дома, комфортную планировку и спокойных соседей. -…
54
Дата обновления: 20.02.2026
242 140 руб
85 000$
4 810 руб/м²
1 688$/м²
3-комнатная, 64.7/43.1/7.1 м2, Этаж 6 из 9, 1981 г.
г. Минск, ул. Якубова, д. 66/2
Ленинский район
Просторная и светлая трехкомнатная квартира в Минске в зеленом районе Серебрянки-напротив парка Серебряный лог по адресу ул. Якубова, 66/2. Дом находится в спокойном дворе. В квартире с отличной планировкой-большие каче…
35
Дата обновления: 12.02.2026
370 050 руб
129 900$
5 720 руб/м²
2 008$/м²
3-комнатная, 56/36.8/5.8 м2, Этаж 3 из 5
г. Минск, Рабочий пер., 1
Ленинский район
Пролетарская
Ваша идеальная планировка рядом с метро. 3к. квартира с раздельными комнатами и супер комфортным расположением. пер.Рабочий,1. Ст.метро Пролетарская – 5 мин.пешком. Инфраструктура - 100%. *О квартире. *Площади – 56.8/5…
64
Дата обновления: 07.02.2026
274 900 руб
96 500$
4 910 руб/м²
1 723$/м²
3-комнатная, 64.2/38/8.8 м2, Этаж 5 из 12
г. Минск, Рокоссовского просп., 60/1
Ленинский район
Продается 3-комнатная квартира в микрорайоне Серебрянка по адресу: г. Минск, просп. Рокоссовского, 60/1. Прекрасная локация для комфортного проживания! Квартира расположена на 5-м этаже 12-ти этажного дома 1986 года пост…
4
329 020 руб
115 500$
5 120 руб/м²
1 799$/м²
3-комнатная, 102.5/57.3/12.7 м2, Этаж 6 из 12, 2015 г.
г. Минск, Великоморская, 6
Ленинский район
Аэродромная
Продаётся престижная квартира 102,5 м² в доме по ул. Великоморская, д. 6 Характеристики: - Все готово к заселению! - Площадь: 102,5 м² по СНБ - Ремонт: качественный, в стиле современная классика, без признаков износ…
382
Дата обновления: 28.01.2026
654 920 руб
229 900$
6 390 руб/м²
2 243$/м²
3-комнатная, 72.6/48.4/14 м2, Этаж 2 из 4, 1955 г.
г. Минск, ул. Карла Маркса, д. 18
Ленинский район
Купаловская
Продается стильная трехкомнатная квартира с интерьером в классическом стиле в самом центре г. Минска. Это идеальное место для тех, кто хочет наслаждаться всеми прелестями столицы в полном объеме!! И это по-настоящему ста…
453
Дата обновления: 22.01.2026
820 430 руб
288 000$
11 300 руб/м²
3 967$/м²