Купить 3-комнатную квартиру, Минск, Тимирязева ул., 4 (Центральный район)

Просмотры: 77 всего, 78 за месяц, 24 за неделю
  • Комнат:
    3-комнатная
  • Площадь общая:
    138.1 м2
  • Площадь жилая:
    69.2 м2
  • Площадь кухни:
    52.2 м2
  • Этаж:
    8 из 8
  • Год постройки:
    2012

997 780 руб
или 7 225 руб/м2
350 000$
или 2 534$/м2
Описание

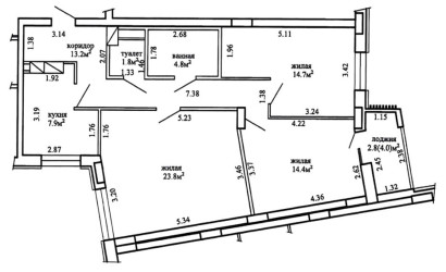
Премиальная 3-комнатная квартира 138,1 кв.м
️ Премиальная 3-комнатная квартира 138 кв.м. в центре Минска, рядом с метро Молодёжная и Парком Победы. Кирпичный дом, всего одна квартира на этаже, просторный тамбур 40 кв.м для максимальной приватности. Черновая отделка для создания интерьера вашей мечты. В пешей доступности лучшие сервисы, школы и отдых.
- Просторная квартира с общей площадью 138,1 кв.м, жилой зоной 69,2 кв.м и кухней 52,2 кв.м позволяет организовать различные пространства для отдыха, работы и приема гостей. Планировка дает широкие возможности для индивидуальных решений.- Черновая отделка избавляет от переплаты за готовые решения, которые могут не соответствовать личным предпочтениям. Вы сможете реализовать собственный проект с нашей поддержкой в подборе специалистов и организации ремонта под ключ.- Совмещенный санузел упрощает выбор современной техники и позволяет эффективно использовать пространство для хранения и размещения оборудования.- Окна на две стороны делают квартиру светлее и обеспечивают гибкость при выборе функционального назначения комнат. Можно организовать как тихие зоны, так и помещения с видом на город.- Квартира находится на 8 этаже. 2012 года постройки. На этаже расположена всего одна квартира, а дополнительный тамбур площадью около 40 кв.м обеспечивает высокий уровень приватности.- Центральное расположение обеспечивает доступ ко всей важной инфраструктуре. Магазины, аптеки, кафе и сервисы находятся в пешей доступности. Семьи с детьми оценят близость учебных заведений, в числе которых гимназия № 36 и несколько детских садов.- Путь до станции метро Молодёжная занимает всего 8 минут пешком. Рядом расположены остановки наземного транспорта. Передвижение по городу становится проще и быстрее даже без личного автомобиля.- Рядом расположен Парк Победы. Есть возможность проводить свободное время на природе и посещать музей Великой Отечественной войны, который находится недалеко от входа в парк. Прогулки и активный отдых доступны без необходимости куда-либо ехать.
️ Ищете выгодную недвижимость или хотите продать свою? Мы решим это для Вас с заботой и профессионализмом:
- Купить квартиру или дом в Минске и области- Продать недвижимость по выгодной цене- Оформить ипотеку, семейный капитал или кредит на покупку недвижимости- Помочь с инвестициями в недвижимость- Подобрать дизайнерский ремонт или перепланировку- Выбрать лучший банк для выгодного кредита и лизинга
* Напишите нам в удобный мессенджер - Viber, Telegram или WhatsApp, и мы ответим на все вопросы!
️ «Моя 7Я» решит это, как для своей семьи: с любовью, заботой и желаемым результатом!
Агентство недвижимости ООО «Центр международной недвижимости Моя 7Я» | УНП 193750826 | Лицензия: № 02240/484 выдана МЮ РБ 18.05.2024 г. | Страховое свидетельство БР 0004913

Получай предложения от собственников первым!
Вы нашли объявление на GoHome.by (ГоуХоум.бай)

УНП 193750826
Лицензия № 02240/484 выдана МЮ РБ 18.05.2024 г.

  • Номер объявления:
    790330
  • Дата обновления:
    15.01.2026
  • Площадь общая:
    138.1 м2
  • Площадь жилая:
    69.2 м2
  • Площадь кухни:
    52.2 м2
  • Этаж:
    8 из 8
  • Год постройки:
    2012
  • Раздельный санузел:
    Нет
  • Телефон:
    Нет
  • Договор:
    № 1296/1 от 2025-12-05
Распечатать
Пожаловаться на объявление
Вам может быть интересно
3-комнатная, 95/51.1/13.5 м2, Этаж 4 из 19, 2012 г.
г. Минск, Победителей просп., 27
Центральный район
ЖК "Славянский квартал"
Фрунзенская
К вашему вниманию эксклюзивное предложение с шикарными апартаментами в престижном ЖК «Славянский Квартал» на проспекте Победителей 27. Премиальная локация в ЖК «Славянский квартал» в самом центре Минска. Вид на миллион! …
187
Дата обновления: 29.01.2026
960 720 руб
337 000$
10 110 руб/м²
3 547$/м²
3-комнатная, 83.4/52.9/7.9 м2, Этаж 3 из 9, 2024 г.
г. Минск, Нововиленская ул., 61
Центральный район
Купить 3-комнатную квартиру в Минске ЖК Левада ул Нововиленская
14
Дата обновления: 28.01.2026
569 870 руб
199 900$
6 830 руб/м²
2 397$/м²
3-комнатная, 70.3/49/20 м2, Этаж 6 из 8, 2025 г.
г. Минск, Нововиленская ул., 63
Центральный район
Просторная 3-комнатная квартира с машиноместом в ЖК "Левада" ️Просторная квартира 70,3 кв.м. в ЖК «Левада», 6 этаж 8-этажного дома. Окна на три стороны, застеклённая лоджия, кладовая 7,2 кв.м. и парковочное место включе…
29
Дата обновления: 26.01.2026
518 560 руб
181 900$
7 380 руб/м²
2 587$/м²
3-комнатная, 66.8/60/- м2, Этаж 6 из 10, 2021 г.
г. Минск, Тимирязева ул., 28
Центральный район
Молодежная
Представляем вашему вниманию 3 комнатную квартиру в престижном жилом комплексе «Комфорт Парк» по ул. Тимирязева д. 28Дом построен в 2021 году. Квартира на 6 из 13 этаже. В квартире выполнен качественный ремонт. На полу л…
449
Дата обновления: 26.01.2026
604 370 руб
212 000$
9 050 руб/м²
3 174$/м²
3-комнатная, 99.1/60.7/10.9 м2, Этаж 2 из 10, 2015 г.
г. Минск, просп. Победителей, д. 123
Центральный район
Продается 3-комнатная квартира, г.Минск, просп.Победителей,123. . Удобная продуманная планировка. Общая площадь квартиры 96.8м2 (по СНБ 99.1м2). Жилая 60.7м2 состоит из просторной гостиной 24.9м2, уютной спальни 17.9м2 с…
553
Дата обновления: 25.01.2026
738 360 руб
259 000$
7 450 руб/м²
2 614$/м²
3-комнатная, 77/68.6/- м2, Этаж 5 из 13, 2021 г.
г. Минск, ул. Тимирязева, д. 28
Центральный район
Молодежная
3х комнатная квартира в ЖК «Комфорт Парк» с дизайнерским ремонтом. Продуманная современная планировка: большая кухня-гостиная с комфортной зоной отдыха и кухней со всей необходимой техникой: индукционная варочная поверхн…
590
Дата обновления: 24.01.2026
741 210 руб
260 000$
9 630 руб/м²
3 377$/м²
3-комнатная, 45/37.9/- м2, Этаж 10 из 11, 2023 г.
г. Минск, Ильянская ул., 12
Центральный район
Продается квартира в прекрасном живописном районе с развитой инфраструктурой для жизни и отдыха, один из самых престижных микрорайонов города Минска. Тихий двор с удобной парковкой для автомобилей. Во дворе находится со…
53
Дата обновления: 23.01.2026
349 220 руб
122 500$
7 760 руб/м²
2 722$/м²
3-комнатная, 93/72/- м2, Этаж 6 из 6, 2025 г.
г. Минск, Тимирязева ул., 130
Центральный район
Продаётся 3-комнатный пентхаус в самом престижном районе г. Минска - ЖК «Олимпик Парк» - Пентхаусы в ЖК «Олимпик Парк» — это вариант премиум-жилья, ориентированный на тех, кто ценит комфорт, приватность и живописные вид…
674
Дата обновления: 23.01.2026
684 190 руб
240 000$
7 360 руб/м²
2 581$/м²
3-комнатная, 62.1/36.7/8.8 м2, Этаж 6 из 10, 1996 г.
г. Минск, Сморговский, 10
Центральный район
Якуба Коласа пл.
Продаётся 3-комн.квартира в Центральном районе г. Минска. Дом кирпичный, удобно расположен, недалеко Комаровский рынок, рядом 4 детских сада, гимназия, школа, кинотеатр в шаговой доступности. Комсомольское озеро в 10 ми…
217
Дата обновления: 23.01.2026
353 210 руб
123 900$
5 690 руб/м²
1 995$/м²
3-комнатная, 91.5/56.4/15.6 м2, Этаж 14 из 25, 2014 г.
г. Минск, Мястровская ул., 16
Центральный район
3-х комнатная квартира в Лебяжем с просторной кухней-гостиной 26 м2. В шаговой доступности Минск Арена и водохранилище Дрозды ️Продается прекрасная трехкомнатная квартира в Минске, которая станет уютным домом для вашей с…
68
Дата обновления: 19.01.2026
584 410 руб
205 000$
6 390 руб/м²
2 240$/м²