Продажа домов в Жукевичах

0-комнатная, 202.9/178.6/- м2, (25 соток), 2 эт., 2022 г.
Гродненская область, д. Жукевичи
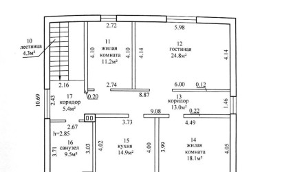
Продается отличный блочно-кирпичный двухэтажный дом с мансардой и цокольным этажом в д. Жукевичи , 2022 года постройки. Дом находится в живописном историческом месте, в 15 км от города. Рядом есть грибной лес…
171
Дата обновления: 14.01.2026
94 430 руб
33 000$
470 руб/м²
163$/м²
3-комнатная, 129.2/90/- м2, (21 соток), 1 эт., 2023 г.
Гродненская область, д. Жукевичи
Предлагаем Вашему вниманию место, где можно забыть о городской суете и погрузиться в атмосферу гармонии с природой. Деревня Жукевичи, утопающая в зелени, словно создана для тех, кто ценит уединение и красоту белорусской …
146
Дата обновления: 22.12.2025
314 780 руб
110 000$
2 440 руб/м²
851$/м²
5-комнатная, 199.7/60.4/- м2, (11.37 соток), 1 эт., 2020 г.
Гродненская область, д. Жукевичи
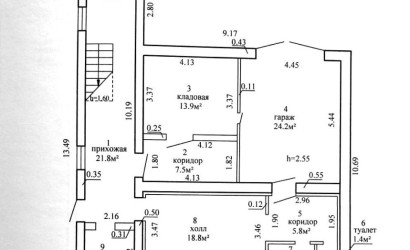
Предлагаем вашему вниманию идеальное место для жизни и отдыха в 8 км от города Гродно в деревне Жукевичи. Просторный жилой дом, полностью готов к проживанию S- 200 м2. На первом этаже расположен холл 12,3 м2, с/у, кухня/…
173
Дата обновления: 28.11.2025
386 320 руб
135 000$
1 930 руб/м²
676$/м²