Продажа дома в деревне

0-комнатная, 40/24.4/15.6 м2, (24.99 соток), 1 эт.
Минская область, д. Калита, Центральная ул.
Продается дом в тихом уютном месте, деревня Калита Слуцкого района. Дом находится в стадии реконструкции. Общая площадь дома 40,0 м.кв., жилая - 24,4 м.кв., кухня 15,6 м.кв. На участке имеется скважина глубиной 36 м, пог…
569
Дата обновления: 24.11.2025
13 030 руб
4 500$
330 руб/м²
113$/м²
0-комнатная, 62/45/8.69 м2, (11.96 соток), 1 эт.
Минская область, г. Слуцк, Пионерская ул.
Продаётся уютный дом в г. Слуцке. Общая площадь 62 м2; жилая 45 м2; кухня 8.69. Материал стен: дерево + сайдинг; крыша: шифер; отопление: газ (новый котёл DAEWOO); водопровод: центральный, дополнительно - есть колодец; к…
1149
Дата обновления: 24.11.2025
105 690 руб
36 500$
1 700 руб/м²
589$/м²
1-комнатная, 69/69/- м2, (7.5 соток), 1 эт., 2022 г.
Витебская область, г. Витебск, 1-й Казимировский
Продаётся дача - сруб 5x9 м c мансардой, без внутренней отделки. Окна и двери - ПВХ. Крыша - металлочерепица. Вода (сезонная), электричество и канализация (местная) заведены в дом. Участок 7,5 соток с трёх сторон ограждё…
195
Дата обновления: 24.11.2025
103 960 руб
35 900$
1 510 руб/м²
520$/м²
0-комнатная, 267/71.8/36.6 м2, (14.06 соток), 2021 г.
Минская область, д. Станок-Водица, Пятая ул.
Ультрасовременный коттедж построен по индивидуальному проекту с использованием высококачественных, экологически чистых европейских стройматериалов. - Фундамент: монолитный, армированный, толщиной 450 мм. По внешнему пери…
561
Дата обновления: 24.11.2025
587 830 руб
203 000$
2 200 руб/м²
760$/м²
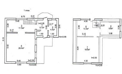
0-комнатная, 67.1/41.6/13.3 м2, (25 соток), 1 эт.
Минская область, д. Леньки, Минская ул.
Продаётся просторный жилой дом в агрогородке Леньки Слуцкого района. Дом находится в 90 км от Минска и 10 км от Слуцка. Дом 1966 года постройки. Материал стен - дерево, крыша - шифер, пол - доска , отопление - печное, в…
1697
Дата обновления: 24.11.2025
20 270 руб
7 000$
300 руб/м²
104$/м²
2-комнатная, 57/30/14 м2, (25 соток), 1 эт., 1957 г.
Минская область, д. Паздерки
Продается дом с земельным участком 0,25 га Минская обл., Минский р-н, , Крупицкий с/с , деревня Паздерки . Бревенчатый дом 1957 года постройки. Пожизненно наследуемое владение. Вода скважина, отопление печное ,интер…
485
Дата обновления: 24.11.2025
101 060 руб
34 900$
1 770 руб/м²
612$/м²
3-комнатная, 66.6/35.9/7.9 м2, (7 соток), 1 эт., 1957 г.
Брестская область, д. Слобудка, Брестская область
Лот 3370. Четырехкомнатная квартира в блокированном жилом доме в д. Слобудка Пружанского района. Отдельный вход. Стены кирпичные, кровля - шифер. В квартире выполнен качественный ремонт. Потолки натяжные, пол - ламинат, …
6316
Дата обновления: 24.11.2025
86 870 руб
30 000$
1 300 руб/м²
450$/м²
Найдено объектов: 4791
2-комнатная, 43.5/18.4/- м2, (14.6 соток), 1 эт.
Брестская область, д. Рогозно, Ленинский с/с
Жилой дом в Жабинковском р-не. 1 этаж. Общ.СНБ - 43,5 кв.м, общ.- 43,5 кв.м, жил.- 18,4 кв.м, 2 комнаты, высота потолка - 2,6 м. Стены: материал - газосиликатный блок и брус строительный; утепление - пенополистирол; отд…
39
Дата обновления: 24.11.2025
101 350 руб
35 000$
2 330 руб/м²
805$/м²
4-комнатная, 108.9/-/- м2, (4.95 соток), 1 эт., 2025 г.
Брестская область, д. Каменица-Жировецкая, Мухавецкий с/с
Дачный дом жилого типа в Брестском р-не. 2025 г.п. 1 этаж. Общ. - 108,9 кв.м. 4 комнаты. Стены: материал - газосиликатый блок; утепление - пенополистирол; отделка фасада - штукатурка "американка". Кровля: металлочерепиц…
40
Дата обновления: 24.11.2025
460 420 руб
159 000$
4 230 руб/м²
1 460$/м²
3-комнатная, 45/38.6/6.4 м2, (15 соток), 1 эт., 1961 г.
Брестская область, г. Брест, Речица
Жилой дом в г.Бресте. 1961 г.п. 1 этаж. Общ.СНБ - 52,9 кв.м, общ.- 45,0 кв.м, жил.- 38,6 кв.м, кух.- 6,4 кв.м. 3 комнаты, высота потолка - 2,60 м. Стены: материал - строительный брус; отделка фасада - обрезная доска. Кр…
53
Дата обновления: 24.11.2025
199 800 руб
69 000$
4 440 руб/м²
1 533$/м²
4-комнатная, 108.9/-/- м2, (4.95 соток), 1 эт., 2025 г.
Брестская область, г. Брест, Мухавецкий с/с
Дачный дом жилого типа в Брестском р-не. 2025 г.п. 1 этаж. Общ. - 108,9 кв.м. 4 комнаты. Стены: материал - газосиликатый блок; утепление - пенополистирол; отделка фасада - штукатурка "американка". Кровля: металлочерепиц…
50
Дата обновления: 24.11.2025
460 420 руб
159 000$
4 230 руб/м²
1 460$/м²
1-комнатная, 17.5/9.7/7.8 м2, (6 соток), 1 эт., 2008 г.
Брестская область, д. Клейники, СТ \\\\\\\\\\\\\\\\\\\\\\\\\\\\\\\"Суничка 2\\\\\\\\\\\\\\\\\\\\\\\\\\\\\\\"
Продается дачный домик 17,5 кв. м. в СТ «Суничка 2» с участком 0,0599 га. (право пожизненного наследуемого владения). В домике есть свет, печь, погреб, чердак, введена вода. Вода по водонапорной башне в сезон с апреля по…
874
Дата обновления: 23.11.2025
27 000 руб
9 324$
1 540 руб/м²
533$/м²
4-комнатная, 42.9/33/6 м2, (8 соток), 2 эт.
Витебская область, Мелиоратор
Дача в СТ Мелиоратор (направление Городок)- 14 км от Тирасполя по ул. Приозерная. Дом - сруб, обшит плоским шифером. Внутри - гипсокартон . Пол дерево. Есть подполье для хранения закаток. Печь. На 2 этаже 1 комната - ва…
1430
Дата обновления: 23.11.2025
23 170 руб
8 000$
540 руб/м²
186$/м²
0-комнатная, 59.7/36.9/9.9 м2, (1.82 соток), 2 эт.
Брестская область, г. Брест, Шишкина ул.
Квартира в блокированном доме в микрорайоне Граевка. Три отдельные комнаты. Дом утеплен, обложен кирпичом. Общая площадь 59,7 кв.м., жилая 36,9 кв.м., кухня 9,9 кв.м. Санузел совмещенный. Есть возможность оборудовать вто…
1590
Дата обновления: 23.11.2025
159 260 руб
55 000$
2 670 руб/м²
921$/м²
0-комнатная, 65/37.4/10 м2, (10 соток), 1 эт.
Минская область, г. Копыль, Астрейки ул.
Трехкомнатный дом в центре Копыля! ️ Кирпичный трехкомнатный дом, который станет идеальным жильем для Вашей семьи. Все удобства, просторный участок, удобное расположение! - Общая площадь дома составляет 65 кв.м., что об…
90
Дата обновления: 23.11.2025
66 310 руб
22 900$
1 020 руб/м²
352$/м²
0-комнатная, 23.42/10.57/6.31 м2, (5.3 соток), 1 эт.
Витебская область, г. Витебск, Тракторный 1-й пер.
в продаже половина жилого дома, одноэтажный, деревянный, общая площадь – 23,42 к.м., жилая – 10,57 кв.м., кухня – 6,31 кв.м., 1 комната. Отопление – печное, водоснабжение – центральное, канализация – местная. Сделан ремо…
1782
Дата обновления: 23.11.2025
24 610 руб
8 500$
1 050 руб/м²
363$/м²
0-комнатная, 63.9/40.59/7.53 м2, (4.46 соток), 1 эт.
Витебская область, г. Витебск, Новоостровенский пер.
Продается жилой дом по адресу: переулок Новоостровенский, район Лучесы. Дом одноэтажный, бревенчатый, общая площадь — 63,9 кв.м., жилая — 40,59 кв.м., кухня — 7,53 кв.м., состоит из трех комнат. В доме есть печь и печь «…
704
Дата обновления: 23.11.2025
60 810 руб
21 000$
950 руб/м²
329$/м²
0-комнатная, 196.1/111/20.9 м2, (10.07 соток), 2 эт., 2024 г.
Минская область, д. Серафимово, Кленовая ул., 10
Продается дом в д. Серафимово, ул. Кленовая, 10 Дом современной планировки, на 2 этажи – 4 спальни, одна из них с отдельной гардеробной комнатой, 2 комнаты с выходом на балкон, санузел. На 1 этаже большая кухня площадью …
246
Дата обновления: 23.11.2025
303 760 руб
104 900$
1 550 руб/м²
535$/м²
0-комнатная, 89.2/36.2/- м2, (4.43 соток), 2 эт.
Минская область, СИГНАЛ-2
Продается уютный ухоженный просторный 2-этажный садовый дом с облагороженным участком и красивыми видами в Молодечненском направлении в комфортной пешей доступности от остановки садового товарищества “Сигнал-2”. Эта та с…
416
Дата обновления: 23.11.2025
57 910 руб
20 000$
650 руб/м²
224$/м²
0-комнатная, 121.9/47.7/12.5 м2, (25 соток), 2 эт.
Гродненская область, д. Поречье, Слонимская ул.
Продается просторный и теплый дом в д. Поречье. Общая площадь дома- 121,9м 2, жилая - 47,7м2, кухня- 12,5м2. В доме сделан добротный и качественный ремонт. Крыша накрыта алюминиевым гофрированным листом. Высота потолков …
345
Дата обновления: 23.11.2025
121 620 руб
42 000$
1 000 руб/м²
345$/м²
0-комнатная, 190.5/151.3/8.7 м2, (6.1 соток), 2 эт.
Брестская область, г. Брест, Короленко ул.
Двухэтажный дом в центре Бреста (Граевка) для отдыха и комфортного проживания на свежем воздухе, вдали от городской суеты. Дом состоит их двух квартир, каждая имеет свой вход, кухню, с/у. Возможно проживание двух семей. …
1912
Дата обновления: 23.11.2025
283 780 руб
98 000$
1 490 руб/м²
514$/м²
3-комнатная, 52/42.2/5.5 м2, (11.86 соток), 1 эт., 1962 г.
Минская область, п. Городище, 8 Марта, 11
Трёхкомнатная квартира. Вода - центральная, газ по улице, электричество. Печное отопление. Участок ровный, 11,86 соток-Право пожизненного наследуемого владения. Улица тихая и спокойная, не транзитная. Полное ощущение уед…
229
Дата обновления: 23.11.2025
111 480 руб
38 500$
2 140 руб/м²
740$/м²
3-комнатная, 132/62/- м2, (12 соток), 2 эт., 2015 г.
Брестская область, д. Збироги, Дачная, 1
Продается коробка дома в садовом товариществе, Брестский район, Чернинский сельсовет, недалеко деревня Збироги. Стены дома построены из газосиликатного блока 300 мм, плиты перекрытия жб, кровля - шифер. На первом этаж…
402
Дата обновления: 23.11.2025
101 350 руб
35 000$
770 руб/м²
265$/м²
0-комнатная, 200/108/56 м2, (10 соток), 1 эт., 2023 г.
Минская область, Плянта-9
Продается теплый, большой, многофункциональный дом с гаражом и просторной террасой, всего в 8 км от г. Солигорска, с/т "Плянта-9". Год постройки - 2023. Прекрасный выбор для комфортного отдыха и постоянного проживания.Ст…
167
Дата обновления: 22.11.2025
162 160 руб
56 000$
810 руб/м²
280$/м²
0-комнатная, 51.5/31.5/19.6 м2, (14 соток), 1 эт.
Минская область, д. Застаринье
Продается хороший деревянный дом в деревне Застаринье Солигорского района, в 18 км от Солигорска и 17 км от Любани. Подъездные пути до дома – асфальт, гравейка. В доме установлены стеклопакеты, газ – баллон, печное отопл…
2870
Дата обновления: 22.11.2025
10 130 руб
3 500$
200 руб/м²
68$/м²
0-комнатная, 76/30/10 м2, (22 соток), 1 эт.
Минская область, д. Малиновщина, Лесная ул.
Участок мечты для строительства дома в Малиновщине! ️ Продаётся ровный участок площадью 22 сотки в тихом и зелёном месте. Это идеальная возможность построить дом своей мечты или провести реконструкцию уже существующего з…
70
Дата обновления: 22.11.2025
33 300 руб
11 500$
440 руб/м²
151$/м²
0-комнатная, 118/71/10.1 м2, (25 соток), 1 эт.
Гродненская область, пгт. Радунь, Захаревича ул., 3
Продаётся доля в доме в г.п. Радунь Вороновского района. Отличный вариант для большой семьи! - Общая площадь: 118 м² - Жилая площадь: 71 м² - Кухня: просторная, 10.1 м² - Комнат: 6 жилых Основные преимущества: - Отдельны…
67
Дата обновления: 22.11.2025
55 600 руб
19 200$
470 руб/м²
163$/м²
0-комнатная, 233/105.5/- м2, (18 соток), 2 эт., 2018 г.
Минская область, аг. Михановичи, Молодежная ул.
Этот дом -это не просто физическое пространство, это то место, где Вы почувствуете всю красоту скандинавского Прованса. Уют - это та атмосфера, которая делает этот дом настоящим оазисом, пространством, где каждый уголок…
343
Дата обновления: 22.11.2025
622 290 руб
214 900$
2 670 руб/м²
922$/м²
1-комнатная, 106/85/17.3 м2, (5 соток), 2 эт., 2020 г.
Брестская область, г. Брест, Мухавецкий с/с
Лот. 10122 Идеальный вариант дачного дома с баней в непосредственной близости от г. Бреста. Дачный дом площадью 106/85/29.5/17,3 м2 расположен в садоводческом товариществе Мухавецкого с/с на участке 5 соток. Дом н…
1692
Дата обновления: 22.11.2025
178 950 руб
61 800$
1 690 руб/м²
583$/м²
0-комнатная, 38.7/-/- м2, (6.6 соток), 1996 г.
Брестская область, Здоровье 2008
Подписывайтесь на наш instagram @ecrzby для удобного слежения за новыми актуальными объектами. Продается уютный садовый домик мансардного типа в садовом товариществе "Здоровье-2008", расположенном в направлении Прилуки. …
216
Дата обновления: 22.11.2025
48 940 руб
16 900$
1 260 руб/м²
437$/м²