Купить 3-комнатную квартиру, Молодечно, Мира ул., 2

Просмотры: 77 всего, 78 за месяц, 23 за неделю
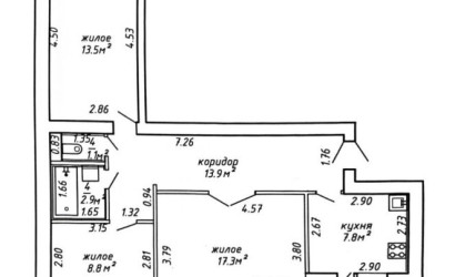
  • Комнат:
    3-комнатная
  • Площадь общая:
    61.6 м2
  • Площадь жилая:
    39.2 м2
  • Площадь кухни:
    8.7 м2
  • Этаж:
    5 из 5

163 480 руб
или 2 654 руб/м2
≈58 000$
или 942$/м2
Купить в лизинг
Описание

3-комнатная квартира с балконом в центральном районе
️Квартира с просторной кухней и застекленным балконом — отличный вариант для семьи или инвестора!
-Квартира расположена на пятом этаже панельного дома и состоит из трех полноценных комнат площадью 61,6 кв.м (жилая площадь 39,2 кв.м).
-Все помещения хорошо освещены, благодаря окнам выходящим на две стороны дома и функциональной распланировке.
-Из жилой комнаты есть выход на лоджию, которая создает дополнительное пространство для отдыха или хранения.
-Кухня площадью 8,7 кв.м практична и функциональна, оборудована мебелью и необходимой техникой.
- Раздельный санузел удобен для семьи. Здесь сделан современный ремонт, уложена плитка.
- По всей квартире стены оклеены обоями, потолки частично натяжные, в двух спальнях установлены стеклопакеты, межкомнатные двери из массива.
-Квартира имеет удовлетворительный ремонт, что позволяет сразу заселиться, либо при желании провести частичное обновление под свои предпочтения.
-Панельный 5-этажный дом построен в 1979 году и прошел капитальный ремонт в 2023 году, что гарантирует надежность и современное состояние жилого фонда. Дом расположен в центральном районе города с отличной доступностью ко всей инфраструктуре. На придомовой территории организована парковка для жильцов.
-В шаговой доступности расположены супермаркеты, кафе, детские сады, школы и поликлиники. Рядом с домом находятся центральные улицы города, обеспечивающие удобное транспортное сообщение. Район славится спокойной атмосферой, чистотой и развитой инфраструктурой.
️ Выбирайте этот объект, если вам нужна квартира по справедливой цене в центральном районе с полной инфраструктурой, в доме после капитального ремонта, идеальная как для проживания, так и для инвестиции.
️ Ищете выгодную недвижимость или хотите продать свою? Мы решим это для Вас с заботой и профессионализмом:
- Купить квартиру или дом в Минске и области- Продать недвижимость по выгодной цене- Оформить ипотеку, семейный капитал или кредит на покупку недвижимости- Помочь с инвестициями в недвижимость- Подобрать дизайнерский ремонт или перепланировку- Выбрать лучший банк для выгодного кредита и лизинга
* Напишите нам в удобный мессенджер - Viber, Telegram или WhatsApp, и мы ответим на все вопросы!
️ «Моя 7Я» решит это, как для своей семьи: с любовью, заботой и желаемым результатом!
Агентство недвижимости ООО «Центр международной недвижимости Моя 7Я» | УНП 193750826 | Лицензия: № 02240/484 выдана МЮ РБ 18.05.2024 г. | Страховое свидетельство БР 0005017

Получай предложения от собственников первым!
Вы нашли объявление на GoHome.by (ГоуХоум.бай)

УНП 193750826
Лицензия № 02240/484 выдана МЮ РБ 18.05.2024 г.

  • Номер объявления:
    802570
  • Дата обновления:
    08.04.2026
  • Область:
  • Район Беларуси:
    Молодечненский район
  • Населенный пункт:
  • Улица, дом:
    Мира ул., 2
  • Комнат:
    3-комнатная
  • Площадь общая:
    61.6 м2
  • Площадь жилая:
    39.2 м2
  • Площадь кухни:
    8.7 м2
  • Этаж:
    5 из 5
  • Раздельный санузел:
    Нет
  • Телефон:
    Нет
  • Договор:
    № 85/4 от 2026-03-03
Распечатать
Пожаловаться на объявление
Вам может быть интересно
3-комнатная, 64.5/38.8/7.8 м2, Этаж 7 из 7
г. Молодечно, Великий Гостинец ул., 121
Продается 3-хкомнатная квартира на ул. В. Гостинец ️ Продается трехкомнатная квартира с грамотно продуманной планировкой - идеальный вариант для семейных пар с детьми! Эта квартира станет настоящим комфортным домом, где …
11
Дата обновления: 24.04.2026
182 930 руб
≈64 900$
2 840 руб/м²
1 006$/м²
3-комнатная, 79/45.9/12.6 м2, Этаж 2 из 5, 1999 г.
г. Молодечно, Громадовская ул., 1
Просторная квартира в кирпичном доме в центре Молодечно ️Эксклюзивная 3‑комнатная квартира 79 м2 на 2 этаже кирпичного дома в центре Молодечно — шикарная планировка, три непроходные комнаты, огромная лоджия 12 м2, окна н…
43
Дата обновления: 16.04.2026
263 540 руб
≈93 500$
3 340 руб/м²
1 184$/м²
3-комнатная, 68.9/41/13.9 м2, Этаж 2 из 9, 1994 г.
г. Молодечно, Виленская ул., 17
3‑комнатная квартира на 2 этаже в кирпичном доме по ул.Виленская, рядом с центром города. ️Просторная 3‑комнатная квартира (68,9 м2) с окнами на две стороны, хорошим ремонтом, застеклённой лоджией, кладовкой и частично с…
86
Дата обновления: 06.04.2026
202 940 руб
≈72 000$
2 950 руб/м²
1 045$/м²
3-комнатная, 52.4/30.7/8.6 м2, Этаж 1 из 1
г. Молодечно, Заречная ул.
️ Трехкомнатная квартира в частном доме - отличный вариант для дружной семьи. - Одноуровневый кирпичный дом 1957 года, пристройка. Крыша накрыта шифером. - В доме установлены стеклопакеты, установлен новый газовый котел.…
93
Дата обновления: 03.04.2026
95 830 руб
≈34 000$
1 830 руб/м²
649$/м²
3-комнатная, 61/44.1/9.2 м2, Этаж 4 из 5
г. Молодечно, Франтишка Скорины ул., 9
3-комнатная квартира с отличным ремонтом и мебелью в Молодечно ️ Уютная трехкомнатная квартира, площадью 61 м2, с тремя раздельными комнатами, качественным ремонтом, застекленной лоджией и окнами на обе стороны в тихом р…
102
Дата обновления: 31.03.2026
211 110 руб
≈74 900$
3 460 руб/м²
1 228$/м²
3-комнатная, 61.7/37.7/7.4 м2, Этаж 5 из 5
г. Молодечно, Якуба Ясинского ул., 34
3‑комнатная квартира в кирпичном доме. ️Просторная 3‑комнатная квартира (61,7 м2) с окнами на две стороны, застеклённой лоджией, раздельным санузлом и светлой кухней в кирпичном доме рядом с парком Победы – идеальное жил…
157
Дата обновления: 17.03.2026
160 380 руб
≈56 900$
2 600 руб/м²
922$/м²
3-комнатная, 64.6/40.6/8.2 м2, Этаж 5 из 5, 1994 г.
г. Молодечно, Городокская ул., 116
Трехкомнатная квартира в Молодечно ️ Просторная теплая трехкомнатная квартира для большой семьи в кирпичном доме. - Общая площадь квартиры 67 кв.м. - Жилая площадь представлена тремя изолированными комнатами - 17 кв.м., …
163
Дата обновления: 11.03.2026
163 200 руб
≈57 900$
2 530 руб/м²
896$/м²
3-комнатная, 68.9/40.5/9.2 м2, Этаж 5 из 5, 1995 г.
г. Молодечно, Ларина ул., 5/А
Просторная 3-комнатная квартира в Молодечно ️ Уютная квартира с хорошим ремонтом, большой кухней и застеклённой лоджией в жилом доме с удобным расположением. - Квартира расположена на 5 этаже 5-этажного дома. В квартире …
176
Дата обновления: 10.03.2026
164 890 руб
≈58 500$
2 390 руб/м²
849$/м²
3-комнатная, 50.4/34.2/6.1 м2, Этаж 3 из 5
г. Молодечно, Льва Толстого ул., 3/А
3-комнатная квартира в Молодечно, удобный 3 этаж ️Светлая 3-комнатная квартира с рациональной планировкой и балконом в спокойном районе города — отличная база для проживания или обновления ремонта под себя. - Квартира ра…
180
Дата обновления: 10.03.2026
135 010 руб
≈47 900$
2 680 руб/м²
950$/м²
3-комнатная, 66.9/40.9/8.3 м2, Этаж 6 из 10
г. Молодечно, Великий Гостинец ул., 111
Продается 1/2 доля в 3-комнатной квартире в центре города Молодечно. Возможен обмен на 2-х комнатную квартиру в городе Минск с доплатой. Основная информация: Расположение : Центр города, рядом с бывшим «Детским миром» («…
654
Дата обновления: 21.01.2026
64 830 руб
≈23 000$
970 руб/м²
344$/м²