Купить дом, Гродно, ул. Погоранская 20, 12.27 соток

Просмотры: 47 всего, 48 за месяц, 48 за неделю
  • Комнат:
    5-комнатная
  • Площадь участка:
    12.27 соток
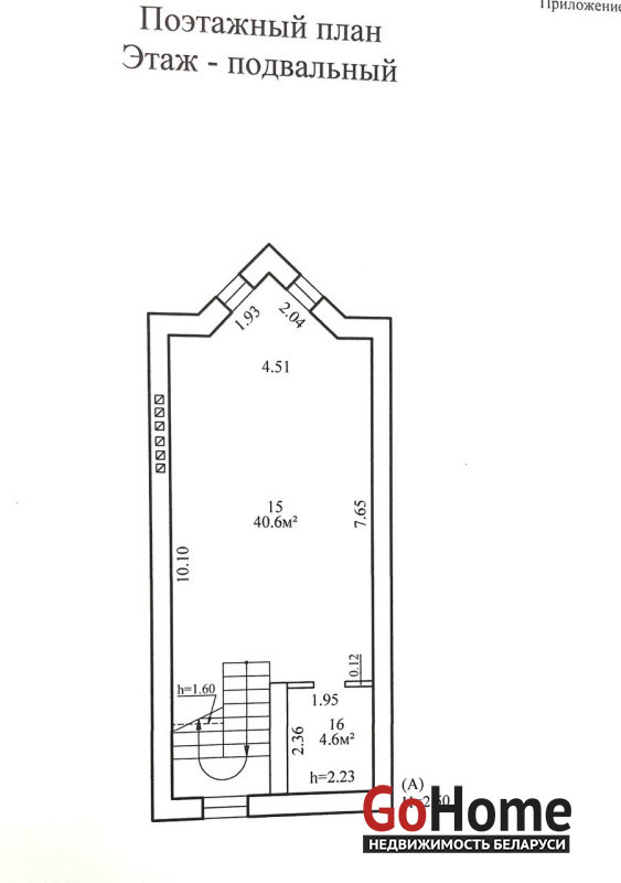
  • Площадь общая:
    324.7 м2
  • Площадь жилая:
    327.7 м2
  • Этажность:
    2

350 960 руб
или 119 500$
Описание

Продается перспективный объект незавершенного строительства (дом под крышей) в м-не Погораны.
Первая линия у леса!
Дом мансардного типа в стадии незавершенного строительства. Это отличная возможность для тех, кто хочет создать дом своей мечты с учетом индивидуальных планировок и отделки, сэкономив время и средства на самой сложной стадии — возведении коробки.
Помимо основного дома на участке расположены гараж, хозпостройка с возможностью переоборудования под баню (коммуникации введены)
Что уже сделано (готовность 74%):
1. Фундамент: железобетонные блоки
2. Коробка: возведены стены из газосиликтных блоков , утеплены и оштукатурены.
Перекрытия - ж/б плиты.
3. Кровля: смонтирована стропильная система, покрыта металлочерепицей с шумопоглащением.
4. Окна и двери: установлены окна ПВХ и входная дверь.
5. Коммуникации :
Смонтирована электропроводка в доме и в хозблоке.
Газ, вода в доме.
Центральная канализация.
Участок:
12,27 сотки в праве пожизненного наследуемого владения.
· Все самые сложные и дорогостоящие этапы строительства уже позади.
· Полный пакет проектной документации.
· Чистые юридические документы: право собственности на землю и на объект незавершенного строительства.
· Участок в живописном, тихом месте с хорошей транспортной доступностью.
· Возможность закончить строительство в кратчайшие сроки.
Возможна покупка с использованием кредита.
Звоните, чтобы договориться о просмотре.

Получай предложения от собственников первым!
Вы нашли объявление на GoHome.by (ГоуХоум.бай)

УНП 591031888
Лицензия №02240/386, МЮ, от 15.10.2019

  • Номер объявления:
    801926
  • Дата обновления:
    03.04.2026
  • Площадь участка:
    12.27 соток
  • Площадь общая:
    324.7 м2
  • Площадь жилая:
    327.7 м2
  • Присутствует:
    Вода; Свет; Санузел в доме; Газ;
  • Договор:
    № 98/2 от 28.11.2025
Распечатать
Пожаловаться на объявление
Вам может быть интересно
5-комнатная, 180/101.4/22.9 м2, (10 соток), 2 эт., 2025 г.
Гродненская область, г. Гродно, Отечественная
Продается незавершенное капитальное строение (дом двухэтажный) по ул. Отечественная, в м-не Южный, г. Гродно. Год постройки 2025. Общая площадь дома 180 м2, жилая 101,44 м2, кухня 22,91 м2., гараж 23,38 м2. Высота потолк…
28
Дата обновления: 31.03.2026
469 900 руб
160 000$
2 610 руб/м²
889$/м²
0-комнатная, 162.7/115.1/9.2 м2, (13 соток), 1 эт., 2012 г.
Гродненская область, г. Гродно, Праздничная
Дом 2012 г. построен из блоков, обложен кирпичом, крыша покрыта шифером. Расположен в микрорайоне Зарица-Грандичи. Дом одноэтажный, с мансардой. Высокие потолки – 3,26 м и 2,94 м мансарда. Предусмотрен второй свет. Площа…
58
Дата обновления: 27.03.2026
234 950 руб
80 000$
1 440 руб/м²
492$/м²
5-комнатная, 239.2/147.9/17.2 м2, (7.71 соток), 2 эт., 2004 г.
Гродненская область, г. Гродно, Заслонова
Продается современный дом рядом с центром г.Гродно ул. Заслонова расположенный на двойном участке площадью 7,71 соток( земельный участок право пожизненного наследуемого владения). Площадь дома по СНБ-391.4 м2, жилого п…
66
Дата обновления: 27.03.2026
710 440 руб
241 900$
2 970 руб/м²
1 011$/м²
4-комнатная, 164/109.3/10.7 м2, (11.79 соток), 1 эт., 2009 г.
Гродненская область, г. Гродно, Спартаковская
Продается современный дом в центре г.Гродно ул. Спартаковская расположенный на двойном участке площадью 11,79 соток( земельный участок право пожизненного наследуемого владения). Площадь дома по СНБ-164.0 м2, жилого поме…
76
Дата обновления: 25.03.2026
584 440 руб
199 000$
3 560 руб/м²
1 213$/м²
6-комнатная, 76.3/60/- м2, (6.13 соток), 2 эт.
Гродненская область, г. Гродно, Якуба Коласа
Продается жилой дом в Гродно пер. Якуба Коласа расположенный на участке площадью 6.13 соток (право пожизненного наследуемого владения). Площадь дома 76.3 м2. Жилого помещения 60 м2. Фундамент — бутобетон. Материал стен …
117
Дата обновления: 25.03.2026
134 800 руб
45 900$
1 770 руб/м²
602$/м²
3-комнатная, 111/56.7/10.2 м2, (6 соток), 1 эт., 1962 г.
Гродненская область, г. Гродно, Заслонова
Продается дом в тихом, спокойном месте г. Гродно, ул. Заслонова (близко к центру). Общая площадь 111.0 кв.м., жилая – 56.7кв.м., кухня – 10.2 кв.м., 3 комнаты. Год постройки 1962. Санузел совмещенный. На территории и…
155
Дата обновления: 17.03.2026
202 650 руб
69 000$
1 830 руб/м²
622$/м²
3-комнатная, 185.8/118.4/- м2, (2 соток), 2 эт., 2024 г.
Гродненская область, г. Гродно, Малыщинская
Таунхаус премиум-класса ЖК "Белые Росы" по ул. Малыщинская (Девятовка-7). Здесь архитектура становится искусством утонченной роскоши. Каждая деталь продумана для создания особой атмосферы: не просто место для жизни, а фи…
559
Дата обновления: 12.03.2026
527 170 руб
179 500$
2 840 руб/м²
966$/м²
5-комнатная, 279.4/157.4/19.8 м2, (23.8 соток), 1 эт., 2009 г.
Гродненская область, г. Гродно, Ржаная
Продается великолепный дом в микрорайоне Лапенки по ул. Ржаная — идеальное место для комфортной жизни в тихом и спокойном частном секторе! Удобное расположение в непосредственной близости от микрорайона Грандичи и остано…
394
Дата обновления: 12.03.2026
437 600 руб
149 000$
1 570 руб/м²
533$/м²
4-комнатная, 60.9/48.5/10.3 м2, (15 соток), 1 эт., 1979 г.
Гродненская область, г. Гродно, Димитровка
Когда хочется тишины, спокойствия и уединённости, и в тоже время комфортного образа жизни, мы продаем жилой дом для дружной семьи в живописном месте по улице Дмитриевка в г. Гродно. Одноэтажный дом 1979 года постройки. …
302
Дата обновления: 12.03.2026
158 590 руб
54 000$
2 600 руб/м²
887$/м²
2-комнатная, 61.1/36.8/8.4 м2, (4.77 соток), 1 эт.
Гродненская область, г. Гродно, Курбатова
Продаем дом практически в центре города Гродно, по пер. Курбатова. Вблизи остановки общественного транспорта, магазины, банк. Земельный участок 0.0477 га. Форма собственности - частная. Забор по всему периметру. Дере…
366
Дата обновления: 12.03.2026
117 180 руб
39 900$
1 920 руб/м²
653$/м²