Продажа офиса, Минск, Некрасова ул., 88, 464.1 кв.м.

Просмотры: 318 всего, 66 за месяц, 20 за неделю
  • Площадь:
    464.1 2

Договорная
Купить в лизинг
Описание

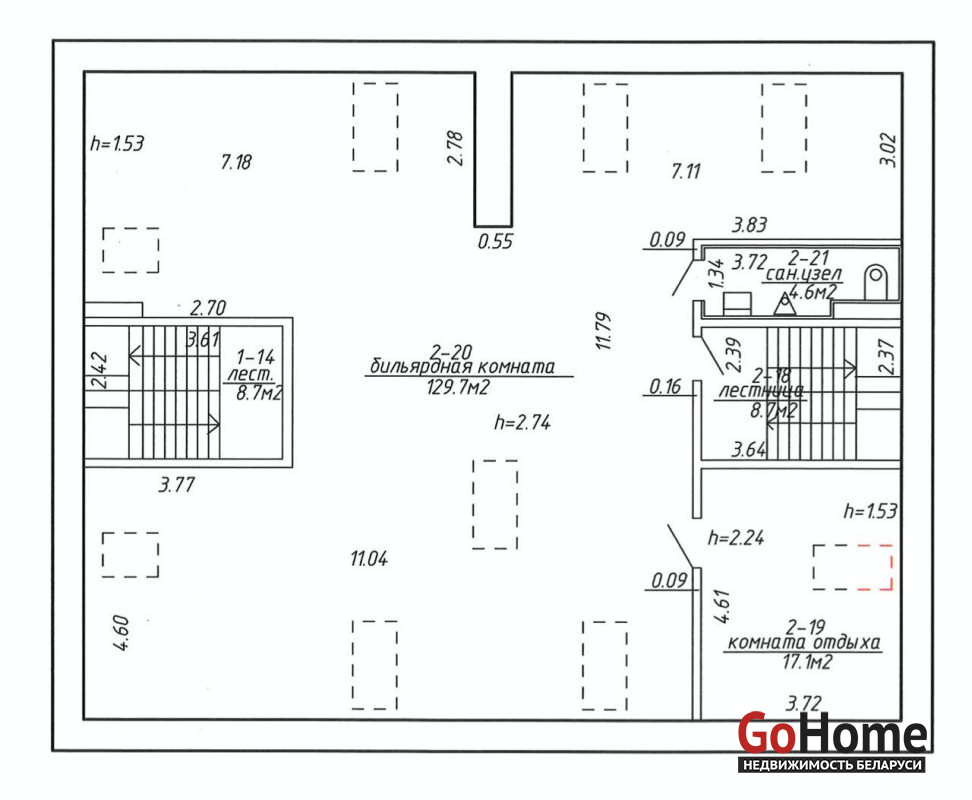
Продается коттедж-офис 464 м2. Готовое бизнес-пространство «под ключ» в перспективной локации.
Предлагаем уникальную возможность приобрести не просто здание, а готовую эффективную среду для работы вашей компании. Это идеальный вариант для IT-компании, проектного бюро, штаб-квартиры или креативного агентства, ценящих комфорт и приватность.
Ключевые преимущества объекта:
1. Готовая инфраструктура:
Планировка: Четкая кабинетная система на :65+ рабочих мест (из них 25 опен спейс).
Комфорт: Все кабинеты оборудованы системами кондиционирования.
Удобство: Три санузла.
Коммуникации: Отдельная комната для собраний и презентаций.
Интернет: к офису подведено оптоволокно.
2. Выгодные инвестиции:
Вы прекращаете зависеть от арендодателя и роста арендных ставок.
Ваш офис — это ликвидный актив, который со временем растет в цене.
Возможность создать корпоративный стиль и атмосферу, укрепляющую команду.
3. Перспективная локация и территория:
Спокойный, респектабельный район с развитой инфраструктурой.
В ближайшей перспективе — открытие станции метро в шаговой доступности, что многократно увеличит транспортную доступность и стоимость объекта.
Собственный участок 4 сотки позволяет организовать охраняемую парковку для сотрудников и гостей, а также создать зону для отдыха.
Это предложение для тех, кто думает о стабильности, имидже и будущем своего бизнеса. Объект полностью готов к въезду и началу работы.
Смотрите еще больше в нашем Telegram канале @kvadratnyjmetr
УП «Квадратный метр»
УНП: 190003285
Лицензия 02240/29_от 17.02.2005, Министерство юстиции РБ
Договор 697/24 от 29.12.2025

Вы нашли объявление на GoHome.by (ГоуХоум.бай)

УНП 190003285
Лицензия 02240/29, МЮ РБ, 17.02.2005

  • Номер объявления:
    800725
  • Дата обновления:
    20.03.2026
  • Область:
    Минская область
  • Район Беларуси:
    Минский район
  • Населенный пункт:
  • Район:
    Советский район
  • Улица, дом:
    Некрасова ул., 88
  • Станция метро:
    Рядом нет метро
  • Тип объекта:
  • Площадь:
    464.1 м2
  • Санузел:
    Нет
  • Телефон:
    Нет
  • Договор:
    № 697/24 от 2025-12-29
Распечатать
Пожаловаться на объявление
Вам может быть интересно
Помещений: 3, 88.4 м2, Этаж 1 из 5, 2007 г.
г. Минск, ул. Быховская, д. 35
Октябрьский район
Ковальская Слобода
ПРОДАЮ ОФИСНОЕ ПОМЕЩЕНИИЕ у метро Ковальская Слобода Продается просторный офис 88,4 м 2 с новым ремонтом, отдельным входом, 2007 года постройки. На полу - современная плитка, стены покрашены. Оборудованный санузел с …
4732
Дата обновления: 13.05.2026
343 889,8 руб
≈122 888$
3 890,2 руб/м²
1 390$/м²
Помещений: 2, 56.3 м2, Этаж 6 из 8, 2009 г.
г. Минск, ул. Орловская, д. 40а
Центральный район
Сдам в аренду офисное помещение 56, 3 м2 в бизнес центре по ул. Орловская, 40А, с предоставлением юридического адреса (Центральный район). Имеются офисные перегородки (выделенн отдельный кабинет) и система кондициониро…
64
Дата обновления: 13.05.2026
1 407,5 руб
≈507€
25,0 руб/м²
9€/м²
Помещений: 6, 359.8 м2, Этаж 3 из 3, 2018 г.
г. Минск, ул. Уманская 1-я, д. 21
Московский район
Михалово
Офис и склад в одном месте! Офис - коттедж в центре Минска Ваш бизнес требует наличия офисов и складов в одном месте? Вам не приятны ежедневные пробки по пути на работу и обратно? Вас раздражают шумные офисные центры, на…
7138
Дата обновления: 13.05.2026
1 091 376,0 руб
≈390 000$
3 033,3 руб/м²
1 084$/м²
Помещений: 0, 40.2 м2
г. Минск, Независимости просп., 172
Первомайский район
Уручье
Продается просторное помещение площадью 40.2 кв.м. в престижной локации, всего в 1 минуте ходьбы от метро Уручье! Помещение с долгосрочным договором аренды и добросовестными арендаторами! На данный момент бизнес прино…
353
Дата обновления: 12.05.2026
Помещений: 3, 67.1 м2, Этаж 4 из 4, 2008 г.
г. Минск, ул. Коласа Якуба, д. 37
Советский район
Академия наук
Станьте частью успешного бизнеса с нашим идеальным коммерческим помещением! Решительные и дальновидные предприниматели найдут в этом помещении идеальный старт для своего бизнеса и инвестиций! Покупка нашего помещения ста…
3962
Дата обновления: 12.05.2026
291 033,6 руб
≈104 000$
4 337,3 руб/м²
1 550$/м²
Помещений: 16, 711.2 м2, Этаж 1 из 3, 2007 г.
г. Минск, Володько, 6
Октябрьский район
Мы продаем, вы зарабатываете! В центре Минска продается офисный этаж (площадь-711,2 м2) с долгосрочной арендой. Цена: 850$/м2 без НДС. Период окупаемости вложений менее 10лет. Долгосрочные обязательства платежеспособн…
1174
Дата обновления: 12.05.2026
1 691 688,8 руб
≈604 520$
2 378,6 руб/м²
850$/м²
Помещений: 4, от 190 до 190.9 м2, Этаж 3 из 5, 2002 г.
г. Минск, ул. Тимирязева, д. 65А
Центральный район
Офисное помещение 190,9 кв.м. расположено в БЦ по ул. Тимирязева. Бизнес центр расположен в оживленном месте с прекрасной транспортной развязкой. В пешей доступности расположены: торговый центр, АЗС, банк, а так же вс…
1839
Дата обновления: 12.05.2026
от 699 600,0 руб
≈от 250 000$
3 682,1 руб/м²
1 316$/м²
Помещений: 3, 99.6 м2, Этаж 1 из 4, 2000 г.
г. Минск, Монтажников, 9
Фрунзенский район
Каменная горка
Продается современный, комфортный офис (99,6 м2) с отдельным входом по ул.Монтажников 9. (144 420 Д) Светлое, удобное офисное пространство 99,6 м2 с приятной отделкой, хорошей звукоизоляцией, кондиционером и быстрым инт…
1346
Дата обновления: 10.05.2026
391 602,3 руб
≈139 938$
3 931,8 руб/м²
1 405$/м²
Помещений: 3, 52 м2, Этаж 3 из 7, 1999 г.
г. Минск, Тимирязева, 65
Центральный район
Пушкинская
Предлагаем Вашему вниманию офисное помещение на 3 этаже с окнами на две стороны выходят на " Площадь Флага" и улицу Тимирязева общей площадью 52 м.кв. расположенное по адресу Тимирязева 65. Высота потолков-3.3 метра. Тр…
1046
Дата обновления: 09.05.2026
160 068,5 руб
≈57 200$
3 078,2 руб/м²
1 100$/м²
Помещений: 0, 150 м2, 1997 г.
г. Минск, Логойский тракт, 10
Первомайский район
Ваш бизнес на новой высоте. Офис на 19 этаже с панорамным видом. Представьте, как ваши сотрудники работают с вдохновением, а партнеры восхищаются видом из окна во время переговоров. Это не мечта — это ваше новое рабочее …
2900
Дата обновления: 07.05.2026