Купить 1-комнатную квартиру, Минск, Ясная, 7А (Партизанский район)

Просмотры: 19 всего, 20 за месяц, 20 за неделю
  • Комнат:
    1-комнатная
  • Площадь общая:
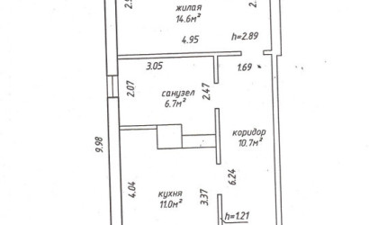
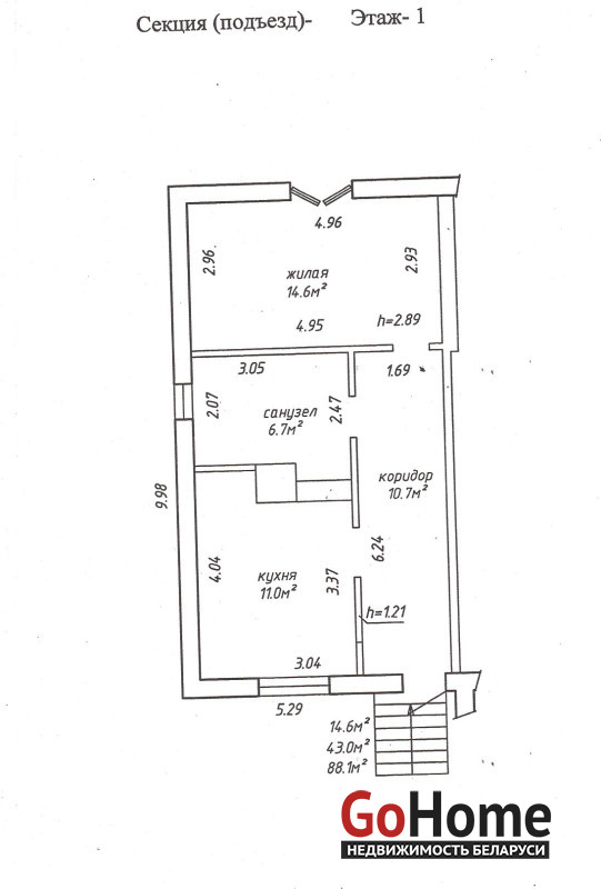
    88.1 м2
  • Площадь жилая:
    43 м2
  • Площадь кухни:
    11 м2
  • Этаж:
    2 из 2
  • Год постройки:
    2003

182 660 руб
или 2 073 руб/м2
62 578$
или 710$/м2
Описание

Полдома по ул.Ясной д.7А в Партизанском районе, выделенный в отдельную квартиру и половина участка выставили на продажу в тихом спокойном месте рядом с парковой зоной.

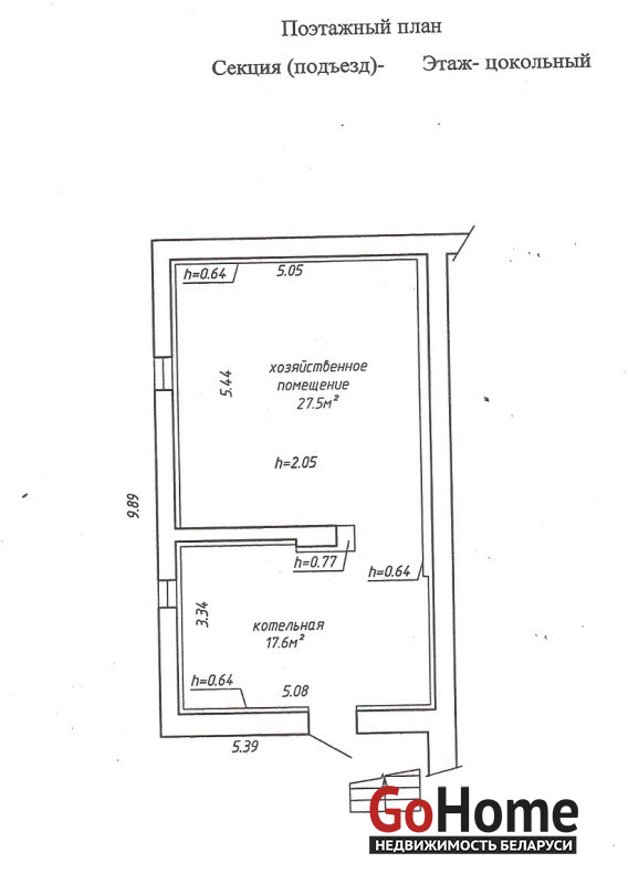
Параметры дома позволяют сделать очень привлекательную квартиру, кроме большого цокольного этажа (хозяйственное помещение 27,5 кв.м., котельная 17,6 кв.м.), первого – 43,0 кв.м., есть еще и мансардный этаж.

Есть проект и там можно оборудовать 2 большие комнаты (это на будущее ).

Центральное водоснабжение введено в дом. Канализация местная. Разводка электричества по дому осуществлена.

Квартира без отделки. Крыша – шифер. Вход в дом отдельный.

Земельный участок: хороший, ровный с плодородным грунтом. Забор из металлопрофиля и дерева. Сосед дружелюбный, без вредных привычек. Здесь действительно тихое, уютное место и все соседи в окружающих домах – достойные люди.

Инфраструктура развитая, все, что необходимо для жизни (городской ) в шаговой доступности: школы, различные магазины. Рядом с домом асфальтированная дорога. Развитое транспортное сообщение. Хорошее предложение тем, кто хочет жить в собственном доме в городской черте и не выезжая из города на выходные: отдохнуть, поджарить шашлык, сходить в лес (парковая зона рядом), встретиться с друзьями. Торг уместен.
Ещё больше объектов недвижимости в нашем Telegram-канале @urielt_minsk

Получай предложения от собственников первым!
Вы нашли объявление на GoHome.by (ГоуХоум.бай)

УНП 101214439
Лицензия 02240/8 (риэлтерские услуги) от 17.02.2005г. МЮ РБ

  • Номер объявления:
    798171
  • Дата обновления:
    09.03.2026
  • Площадь общая:
    88.1 м2
  • Площадь жилая:
    43 м2
  • Площадь кухни:
    11 м2
  • Этаж:
    2 из 2
  • Год постройки:
    2003
  • Раздельный санузел:
    Нет
  • Телефон:
    Нет
  • Договор:
    № 269/1 от 17.11.2023
Распечатать
Пожаловаться на объявление