Купить 4-комнатную квартиру, Молодечно, Виленская ул., 33

Просмотры: 35 всего, 36 за месяц, 22 за неделю
  • Комнат:
    4-комнатная
  • Площадь общая:
    81.1 м2
  • Площадь жилая:
    54.1 м2
  • Площадь кухни:
    8.1 м2
  • Этаж:
    2 из 5
  • Год постройки:
    1997

275 080 руб
или 3 392 руб/м2
95 900$
или 1 182$/м2
Описание

4-комнатная квартира с евроремонтом в центре г. Молодечно
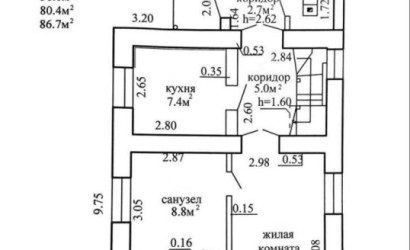
️ Отличная четырёхкомнатная квартира с евроремонтом и практичной планировкой в центре Молодечно. Общая площадь по СНБ - 86,8 кв.м, окна на две стороны, две застеклённые лоджии, встроенная кухня. Кирпичный дом, 2 этаж, рядом вся инфраструктура и транспорт.
- Квартира общей площадью 81,1 кв.м с жилой площадью 54,1 кв.м и кухней 8,1 кв.м. Планировка продумана для рационального использования пространства, все комнаты изолированные, что позволяет удобно распределить зоны для разных задач без потери полезной площади.
- Выполнен евроремонт с заменой ключевых инженерных решений. Полностью обновлена электропроводка, по всей квартире залита стяжка. В качестве напольных покрытий использованы ламинат и кафель, что упрощает уход и обеспечивает износостойкость в зонах с разной нагрузкой.
- Санузел раздельный, установлена новая сантехника. Установлен бойлер объемом 30 литров, что обеспечивает независимость от перебоев с горячей водой и стабильное бытовое использование.
- Кухня оборудована встроенным кухонным гарнитуром, который остается новому владельцу. Это позволяет сразу пользоваться помещением без дополнительных затрат на обустройство.
- Окна выходят на обе стороны дома, установлены новые стеклопакеты. Такое расположение улучшает естественное освещение и проветривание помещений. В квартире предусмотрены две застекленные лоджии, которые могут использоваться как дополнительное функциональное пространство.
- Квартира находится на втором этаже пятиэтажного кирпичного дома 1997 года постройки. Этаж удобен для ежедневного пользования, а материал дома обеспечивает стабильные эксплуатационные характеристики.
- Район отличается развитой инфраструктурой. В пешей доступности расположены супермаркеты, магазины, школы и детский сад, почта, банк, медицинские учреждения и аптеки, городской парк, а также центр города. Рядом находятся железнодорожный и автобусный вокзалы, что удобно для перемещений по городу и за его пределами.
️ Ищете выгодную недвижимость или хотите продать свою? Мы решим это для Вас с заботой и профессионализмом:
- Купить квартиру или дом в Минске и области- Продать недвижимость по выгодной цене- Оформить ипотеку, семейный капитал или кредит на покупку недвижимости- Помочь с инвестициями в недвижимость- Подобрать дизайнерский ремонт или перепланировку- Выбрать лучший банк для выгодного кредита и лизинга
* Напишите нам в удобный мессенджер - Viber, Telegram или WhatsApp, и мы ответим на все вопросы!

Получай предложения от собственников первым!
Вы нашли объявление на GoHome.by (ГоуХоум.бай)

УНП 193750826
Лицензия № 02240/484 выдана МЮ РБ 18.05.2024 г.

  • Номер объявления:
    791727
  • Дата обновления:
    26.01.2026
  • Область:
  • Район Беларуси:
    Молодечненский район
  • Населенный пункт:
  • Улица, дом:
    Виленская ул., 33
  • Комнат:
    4-комнатная
  • Площадь общая:
    81.1 м2
  • Площадь жилая:
    54.1 м2
  • Площадь кухни:
    8.1 м2
  • Этаж:
    2 из 5
  • Год постройки:
    1997
  • Раздельный санузел:
    Нет
  • Телефон:
    Нет
  • Договор:
    № 578/4 от 2025-12-29
Распечатать
Пожаловаться на объявление
Вам может быть интересно
4-комнатная, 86.7/56/7.4 м2, Этаж 2 из 2
г. Молодечно, Великосельская ул.
Просторная квартира с участком и гаражом ️Теплая квартира в блокированном жилом доме с отдельным входом и собственным заездом на участок. -Квартира расположена в двухуровневом кирпичном блокированном доме. -Общая площадь…
91
Дата обновления: 22.01.2026
100 110 руб
34 900$
1 150 руб/м²
403$/м²