Купить дом, Колодищи, Смолевичская ул., 40, 15 соток

Просмотры: 171 всего, 96 за месяц, 19 за неделю
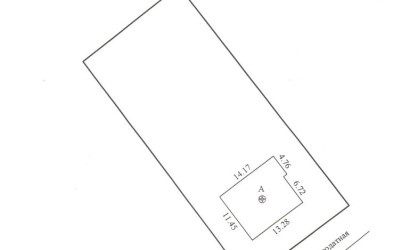
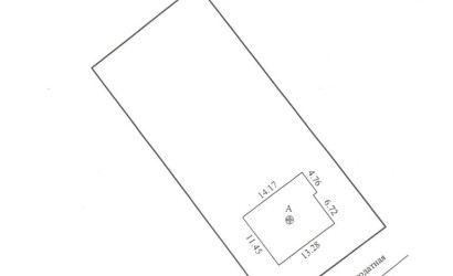
  • Площадь участка:
    15 соток
  • Площадь общая:
    468.8 м2
  • Площадь жилая:
    185.2 м2
  • Площадь кухни:
    23.7 м2
  • Этажность:
    3
  • Год постройки:
    2019

688 230 руб
или 237 100$
Описание

Идеальный жилой дом в живописном и тихом месте, в непосредственной близости от биологического заказника «Глебовка» в а/г «Колодищи» (Московское направление)
Всего 10 минут на автомобиле до метро «Уручье», на автобусе – 15-20 минут.
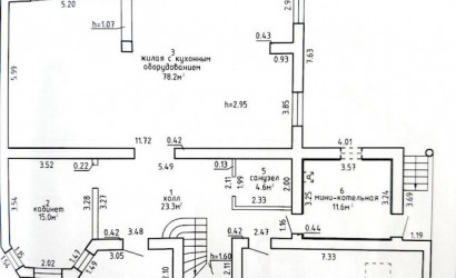
Площадь общая 468.8м2/ жилая 185.2м2/ кухня 23.7м2. 100% готовности. 2019гп. Материал стен блоки. Наружная отделка – утеплен, оштукатурен и покрашен. Крыша - гибкая черепица «IKO». Фундамент – сборные ж/б блоки. Перекрытия – ж/б.
Вода – скважина. Канализация – местная. Отопление – газовый двухконтурный котел («Vaillant»). Фундамент, стены и крыша утеплены.
3 уровня. 2-мансардный. Максимальная высота потолков 2.74 Окна с двухкамерным стеклопакетом, мансардные окна - деревянные стеклопакеты («Roto»). Подвал.
Проведены все коммуникации. Сделана разводка электричества в доме. Биметаллические радиаторы отопления. Помимо радиаторов отопления установлены внутрипольные конвекторы для обогрева.
Входная дверь - массив дуба (изготовлена под заказ).
Участок 0,1499 Га. Забор со стороны соседей.
В этом доме предусмотрено абсолютно все для комфортной загородной жизни. Сделана чистовая отделка (останется только выбрать вариант отделки стен, потолка и полов, который вы пожелаете). Здесь вы сможете воплотить все ваши самые смелые фантазии в декоре.
На первом этаже расположены: холл, гостиная с «французским» остеклением и выходом во двор, кухня-столовая с удобной кладовой, 2 просторные спальни, ванная комната, топочная, гараж. В гостиной предусмотрена каминная зона. Панорамные окна гостиной дают много света и служат выходом во двор, объединяя интерьер с экстерьером.
На втором (мансардном этаже): 2 спальни, 2 санузла (22.3 и 19.4 м2). Из спальни 51.7м2 выход на шикарный балкон (во внутренний двор). Также есть место для размещения библиотеки или кабинета.
Спустившись по удобной лестнице, вы попадаете в нижнюю часть дома, где предусмотрена сауна с душевой и зоной отдыха, постирочная. А также вы можете разместить тренажерный зал, домашний кинотеатр, мастерскую и прочие помещения на ваш выбор.
Интернет, телевидение.
У вас не возникнет проблемы, где припарковать свой автомобиль. Для этого обустроен гараж в доме (с автоматизированными гаражными роллетами «DOORHAN»).
Хорошие соседи.
Недалеко от дома - остановка общественного транспорта (автобусы), на территории расположены 2 магазина, на въезде большой православный храм. Новые современные детский сад и школа.
Удобные подъездные пути. Асфальтированная центральная дорога, проходящая через весь агрогородок.
Если вас заинтересовало ваше потенциальное жильё, то звоните, и мы договоримся о времени, когда вы сможете его посмотреть.
Мы уверены, что этот дом, как и место, не оставят вас равнодушными! В жизни они еще лучше, чем на фото!
УП «Квадратный метр»
УНП 190003285
Лицензия Министерства Юстиции №02240/29 от 17.02.2025г.
Договор № 640/24 от 03.12.2025

Получай предложения от собственников первым!
Вы нашли объявление на GoHome.by (ГоуХоум.бай)

УНП 190003285
Лицензия 02240/29, МЮ РБ, 17.02.2005

  • Номер объявления:
    784070
  • Дата обновления:
    04.12.2025
  • Площадь участка:
    15 соток
  • Площадь общая:
    468.8 м2
  • Площадь жилая:
    185.2 м2
  • Площадь кухни:
    23.7 м2
  • Год постройки:
    2019
  • Договор:
    № 640/24 от 2025-12-03
Распечатать
Пожаловаться на объявление
Вам может быть интересно
0-комнатная, 365.4/136.1/25.8 м2, (6.02 соток), 2 эт., 1998 г.
Минская область, п. Колодищи, Громовой ул.
Продается кирпичный дом в а. г. Колодищи. Общая площадь дома 365,4 м2. Жилая площадь 136,5м2. Дом 1998 года постройки для круглогодичного проживания. Дом кирпичный, крыша уложена шифером. Высота потолка 3,40 м. Готовнос…
1773
Дата обновления: 20.01.2026
362 840 руб
125 000$
990 руб/м²
342$/м²
0-комнатная, 149.9/86.8/23.9 м2, (6.32 соток), 3 эт., 1999 г.
Минская область, п. Колодищи, Минская ул., 35
Продаем или меняем на квартиру в Минске с доплатой кирпичный дом 198,3 кв.м. Дом расположен в чистом и тихом месте аг.Колодищи, в 8 км от Минска. Уютный дом общей площадью 198, м2, с классическим ремонтом, полностью го…
232
Дата обновления: 19.01.2026
695 200 руб
239 500$
4 640 руб/м²
1 598$/м²
0-комнатная, 240/45/- м2, (15.18 соток), 3 эт., 2019 г.
Минская область, п. Колодищи, Энтузиастов ул., 24
Дом введен в эксплуатацию. Продается современный Дом удобной планировки в агрогородке Колодищи в 8 км от Минска Общая площадь более 240 кв.м.: Дом 3 уровня, правильной формы, продуманной планировки с царственным входом …
1281
Дата обновления: 16.01.2026
432 500 руб
149 000$
1 800 руб/м²
621$/м²
6-комнатная, 125/100/- м2, (15 соток), 2 эт., 2019 г.
Минская область, п. Колодищи, Благодатная, 11
Продаётся двухэтажный дом (незавершенное законсервированное капитальное строение, 63% готовности) состоящий из первого и мансардного этажей, расположенный в агрогородке Колодищи. Дом стоит в тихом и уютном месте и ра…
45
Дата обновления: 15.01.2026
348 320 руб
120 000$
2 790 руб/м²
960$/м²
0-комнатная, 374.4/116.3/- м2, (15.9 соток), 2012 г.
Минская область, п. Колодищи, Васильевская ул., 46
Продается 100% готовности коттедж в аг.Колодищи, 10 мин до ст.м. Уручье.- одна из лучших локаций в аг. Колодищи ул.Васильевская- отличные подъездные пути до самого дома, асфальт- напротив коттеджа зеленая зона, лес, хоро…
896
Дата обновления: 09.01.2026
1 132 050 руб
390 000$
3 020 руб/м²
1 042$/м²
0-комнатная, 255.6/168.9/51.7 м2, (16 соток), 3 эт., 2013 г.
Минская область, п. Колодищи, Есенина ул., 27
Уникальный по своей красоте Участок с 30-ю соснами, и элитный Коттедж с автомобилем в комплекте! Жить в окружении леса и воды прямо на своей территории? Об этом мечтают все! Собственный, экологический, песчаный, самофиль…
950
Дата обновления: 08.01.2026
1 306 220 руб
450 000$
5 110 руб/м²
1 761$/м²
0-комнатная, 338/243.8/78.2 м2, (15.13 соток), 2024 г.
Минская область, п. Колодищи, Энтузиастов ул.
Продается жилой дом 338м2 с гаражем , 100% готовности , и гостевым домом-баней 81,3 м2 ,с терассой 100% готовности в престижной локации, Колодищи-2, на центральной улице Энтузиастов, д.128 . Рядом лес, Республиканский за…
610
Дата обновления: 05.01.2026
1 989 800 руб
685 500$
5 890 руб/м²
2 028$/м²
0-комнатная, 100.2/80/9 м2, (17 соток), 2 эт., 2020 г.
Минская область, п. Колодищи, Яхонтовая ул., 3
Представляем вашему вниманию новый, теплый и уютный двухэтажный дом из бруса, расположенный в живописном и востребованном районе Колодищ. Этот дом – идеальное сочетание современного комфорта и экологичности, созданное дл…
222
Дата обновления: 31.12.2025
1 146 570 руб
395 000$
11 440 руб/м²
3 942$/м²
0-комнатная, 237/109.7/24.4 м2, (15 соток), 2 эт., 2012 г.
Минская область, п. Колодищи, Волгоградская ул.
Двухуровневый дом 2012 г.п. Навес для двух машин. Дом построен из поризованного кирпича с современным ремонтом и продуманной планировкой. Толщина стен 0,5 м и 5 см утеплителем. Кухня-столовая 24,4 кв.м. с просторной гост…
927
Дата обновления: 12.12.2025
867 910 руб
299 000$
3 660 руб/м²
1 262$/м²
0-комнатная, 161.9/77/14.7 м2, (14.98 соток), 2 эт., 2013 г.
Минская область, п. Колодищи, Энтузиастов ул., 46
Аккуратный, красивый дом в Колодищах. • Самое удобное расположение из возможных в пригороде: до Минска 3 минуты на автомобиле или 3-5 остановок на автобусе. До метро Уручье 15-17 минут на автобусе (8 остановок на 194С…
181
Дата обновления: 08.12.2025
1 015 950 руб
350 000$
6 280 руб/м²
2 162$/м²