Аренда торгового помещения, Брест, Задворцы, от 300 до 4430.5 кв.м.

Просмотры: 5403 всего, 30 за месяц, 3 за неделю
  • Площадь:
    от 300 до 4430.5 2

26,41 руб/м2
или ≈8€/м2
от 7 923,00 до 117 009,51 руб
или от 2 400 до 35 444€
Описание

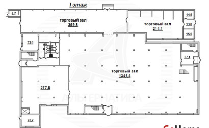
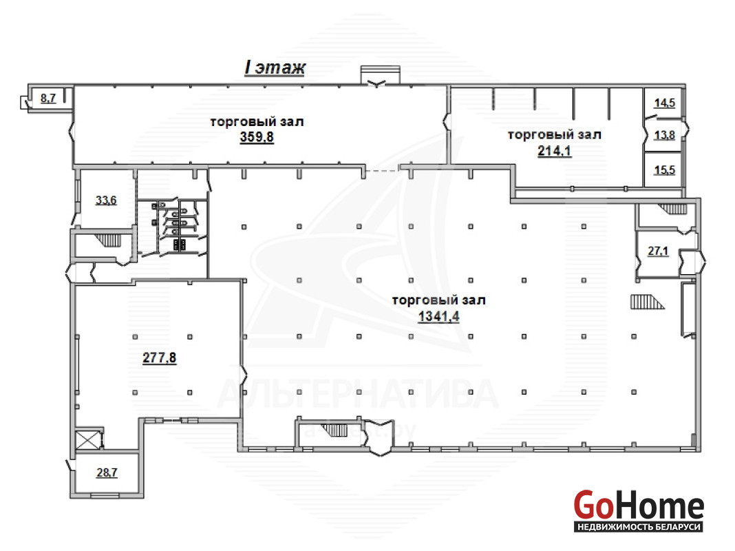
Торговые помещения в аренду в районе Задворцы города Бреста площадью от 300 до 4430,5 кв.м. Помещения расположены в отдельностоящем двухэтажном торговом центре. 1 (первый) этаж общей площадью 2513,4 кв.м состоит из нескольких торговых залов разной площади (1341,4 + 214,1 + 359,8 + 277,8 кв.м). Высота потолков в торговых залах от 3,64 м до 6,24 м. 2 (второй) этаж общей площадью 1917,1 кв.м состоит из 2 (двух) торговых залов площадью 1642,2 + 140,2 кв.м. Высота потолков в торговых залах - 2,95 м. В здании оборудован грузовой лифт, установлены кондиционеры. Собственная парковка для посетителей. Цена указана с НДС. Рассматриваются варианты сдачи помещений поэтажно, а также сдача в аренду здания целиком одному арендатору. Лот - 170057A

---------------
Мы там, где Вы!
INSTAGRAM • ВКОНТАКТЕ • ОДНОКЛАССНИКИ

ВЫБЕРИТЕ удобную социальную сеть + тематический аккаунт и ПОДПИШИТЕСЬ!!!

@pro.kvartira.brest → квартиры
@pro.dom.brest → дома, коттеджи
@pro.uchastok.brest → участки
@pro.dacha.brest → дачи, деревня
@pro.commerce.brest → нежилой фонд

Более 5000 предложений — только проверенные варианты и актуальные цены
Ежедневные НОВИНКИ, СНИЖЕНИЕ ЦЕН и ТЕМАТИЧЕСКИЕ ПОДБОРКИ специалистов!

Вы также можете подписаться на БЕСПЛАТНУЮ РАССЫЛКУ всех ОБНОВЛЕНИЙ ПО ОБЪЕКТАМ прямо Вам в VIBER или TELEGRAM. На сегодня уже более 3000 наших клиентов ВЫБРАЛИ этот формат ежедневного получения информации. Перейдите в один из разделов каталога на сайте a-brest.by и ПОДПИШИТЕСЬ! ЗАО «АЛЬТЕРНАТИВА Брест». УНП 291427570 Лицензия № 02240/303 от 02.02.2016г. Договор номер 57/1А от 23.08.2017

Вы нашли объявление на GoHome.by (ГоуХоум.бай)

УНП 291427570
Лицензия 02240/303, МЮ РБ, 02.02.2016

  • Номер объявления:
    508438
  • Дата обновления:
    01.07.2025
  • Область:
    Брестская область
  • Район Беларуси:
    Брестский район
  • Населенный пункт:
  • Улица, дом:
    Задворцы
  • Тип объекта:
  • Площадь:
    от 300 до 4430.5 м2
  • Санузел:
    Нет
  • Телефон:
    Нет
  • Договор:
    № 57/1А от 23.08.2017
Распечатать
Пожаловаться на объявление
Вам может быть интересно
Помещений: 5, 140.6 м2, Этаж 1 из 8, 2024 г.
г. Брест, ул. Мытная
Лот 9578. Звоните для более подробной информации Сдается в аренду торговое помещение в г. Брест по ул. Мытная (мкр. Юго-Запад). Новый микрорайон с перспективой активного развития бизнеса. Может быть использовано как то…
18
Дата обновления: 28.04.2026
4 178,9 руб
≈1 485$
29,7 руб/м²
11$/м²
Помещений: 0, 133 м2
г. Брест, Брестских дивизий
Торговое помещение в аренду в районе ж/д вокзала города Бреста общей площадью 133 кв.м. Изолированное помещение с отдельным входом расположено на 1 (первом) этаже жилого дома. Торговый зал площадью 93,1 кв.м, 2 (два) каб…
16
Дата обновления: 28.04.2026
4 391,7 руб
≈1 330€
33,0 руб/м²
10€/м²
Помещений: 0, 62.7 м2, Этаж 2 из 3
г. Брест, Центр
Административно - бытовое помещение в аренду в центре города Бреста общей площадью 62,7 кв.м. Изолированное помещение с 2 (двумя) входами БЕЗ ЕСТЕСТВЕННОГО ОСВЕЩЕНИЯ разделено на 2 (два) помещения (27,7 + 35 кв.м) распол…
15
Дата обновления: 27.04.2026
1 035,2 руб
≈314€
16,5 руб/м²
5€/м²
Помещений: 1, 90.9 м2, Этаж 2 из 2, 2000 г.
г. Брест, ул. Карьерная
Лот 9134. Аренда помещения в административно-торговом здании под размещение офиса, магазина, сферы услуг, в том числе класса хореографии. Расположено в микрорайоне Ковалёво. Общая площадь 90,9 кв.м, высота помещения 3,0 …
537
Дата обновления: 13.04.2026
1 778,5 руб
≈631$
19,6 руб/м²
7$/м²
Помещений: 0, 230.3 м2, Этаж 1 из 1
г. Брест, Центр
Многофункциональное здание со складом и гаражом общей площадью 230,3 кв.м, а также собственной прилегающей территорией в аренду в центральной части города Бреста (р - н ул. Куйбышева). Объект включает в себя администрати…
57
Дата обновления: 13.04.2026
6 082,2 руб
≈1 842€
26,4 руб/м²
8€/м²
Помещений: 2, 141 м2, Этаж 1 из 5, 2022 г.
г. Брест, просп. Республики
Лот 9135. Брест, пр-т Республики. Аренда помещения под размещение офиса, магазина, сферы услуг, маркетплейса Ozon, в том числе развивающих и общеобразовательных услуг. Общая площадь 141,0 м2, высота помещения 2,9 м. Акти…
558
Дата обновления: 12.04.2026
4 600,0 руб
≈1 632$
32,6 руб/м²
12$/м²
Помещений: 1, 59 м2, Этаж 1 из 1, 2023 г.
г. Брест, ул. Рябцева
Лот 9133. Аренда помещения из сферы стрит-ритейл под размещение торговой точки, офиса, склада, места оказания услуг в том числе бытовых, маркетплейса. Сдаваемая площадь 59,0 м2, высота помещения 3,0 м. Удобные подъездные…
593
Дата обновления: 12.04.2026
1 998,4 руб
≈709$
33,9 руб/м²
12$/м²
Помещений: 0, 47 м2, Этаж 1 из 1
г. Брест, Восток
Торговое помещение в аренду в восточной части города Бреста общей площадью 47 кв.м. Помещение с 2 (двумя) отдельными входами расположено на 1 (первом) этаже торгового здания. 2 (два) зала площадью 26,4 и 14,6 кв.м, 2 (дв…
76
Дата обновления: 10.04.2026
1 786,0 руб
≈611€
38,0 руб/м²
13€/м²
Помещений: 0, 17.6 м2, Этаж 1 из 1
г. Брест, Восток
Нежилое помещение в аренду в восточной части города Бреста общей площадью 17,6 кв.м. Изолированное отапливаемое помещение с отдельным входом расположено в цокольном этаже торгового здания. Высота потолков - 1,92 м. Техни…
67
Дата обновления: 10.04.2026
523,1 руб
≈158€
29,7 руб/м²
9€/м²
Помещений: 0, 40.2 м2, Этаж 1 из 1
г. Брест, Центр
Административно - торговое помещение в аренду в центре города Бреста общей площадью 40,2 кв.м. Изолированное помещение с 2 (двумя) отдельными входами расположено на 1 (первом) этаже административно - торгового здания в ш…
70
Дата обновления: 10.04.2026
2 814,0 руб
≈1 005€
70,0 руб/м²
25€/м²