Продажа квартир в Вилейке

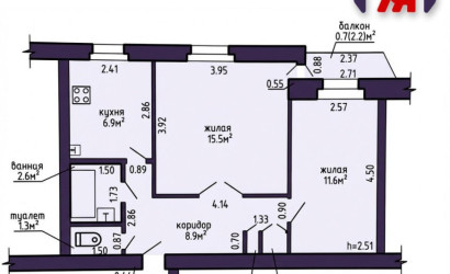
2-комнатная, 43.7/32.7/6.1 м2, Этаж 2 из 2, 1961 г.
г. Вилейка, Красноармейская 27
Продам 2-х-комнатную квартиру в центре города. - Квартира расположена на 2 этаже 2-этажного дома и имеет удобную планировку: - вид из окон во двор. - В квартире сделан ремонт: все окна заменены на качественные стеклопаке…
1445
Дата обновления: 17.05.2026
88 630 руб
≈32 000$
2 030 руб/м²
732$/м²
1-комнатная, 37.8/17.2/8.4 м2, Этаж 1 из 5, 1994 г.
г. Вилейка, Незалежности ул., 8/1
Продаётся 1-комнатная квартира на первом этаже. ️ Предлагаем вашему вниманию просторную и тёплую однокомнатную квартиру в одном из лучших районов Вилейки! - Общая площадь квартиры составляет 37,8 кв.м., жилая – 17,2 кв.м…
267
Дата обновления: 17.05.2026
68 970 руб
≈24 900$
1 820 руб/м²
659$/м²
1-комнатная, 39.2/15.1/8.9 м2, Этаж 4 из 5, 2008 г.
г. Вилейка, Незалежности ул., 2/2
1‑комнатная квартира в Вилейке с хорошим ремонтом ️ Светлая 1‑комнатная квартира 39,2 м2 на 4‑м этаже кирпичного дома 2008 г., с ламинатом, обойной отделкой, кухней 8,9 м2, раздельным санузлом, красивой ванной с плиткой …
54
Дата обновления: 08.05.2026
73 400 руб
≈26 500$
1 870 руб/м²
676$/м²
3-комнатная, 58.9/36.7/7.9 м2, Этаж 1 из 5, 1989 г.
г. Вилейка, октябрьская, д. 36
продается 3-х комнатная квартира в центре Вилейки
201
Дата обновления: 30.04.2026
91 400 руб
≈33 000$
1 550 руб/м²
560$/м²
4-комнатная, 65.4/46.5/7.6 м2, Этаж 3 из 5
г. Вилейка, Октябрьская ул., 34
Просторная квартира в центре Вилейки. ️Квартира с потенциалом на удобном этаже – идеальная основа для воплощения вашего дизайна -Квартира площадью 65,4 м2 (жилая 46,5 м2) расположена на третьем этаже пятиэтажного дома. Т…
89
Дата обновления: 23.04.2026
110 790 руб
≈40 000$
1 690 руб/м²
612$/м²
3-комнатная, 90.4/50.6/7.9 м2, Этаж 1 из 2
г. Вилейка, Социалистическая ул.
3-комнатная квартира с участком в Вилейке ️ Просторная 3-комнатная квартира площадью 90,4 кв.м в Вилейке. Кирпичный дом, газовое отопление, почти вся мебель остается. Участок 8 соток с хозпостройками и садом. Рядом школ…
114
Дата обновления: 16.04.2026
121 590 руб
≈43 900$
1 350 руб/м²
486$/м²
4-комнатная, 64.7/46.1/7.9 м2, Этаж 1 из 5
г. Вилейка, Гагарина ул., 15
Четырёхкомнатная квартира в Вилейке ️ Четырёхкомнатная квартира 64,7 кв.м в Вилейке по доступной цене. Хороший ремонт, ламинат, застеклённый балкон, окна на две стороны и первый этаж. Рядом школа, магазины, бассейн, бан…
158
Дата обновления: 19.03.2026
124 640 руб
≈45 000$
1 930 руб/м²
696$/м²
2-комнатная, 43.4/30.3/6 м2, Этаж 3 из 4, 1968 г.
г. Вилейка, 1 Мая.д47
Продаётся 2-комнатная квартира в кирпичном доме по адресу: г. Вилейка, ул. 1 Мая, д. 47. Квартира находится на 3-м этаже 4-этажного дома 1968 года постройки. Общая площадь — 43,4 м², жилая — 30,3 м², кухня — 5,5 м². План…
806
Дата обновления: 29.09.2025
66 470 руб
≈24 000$
1 530 руб/м²
553$/м²
2-комнатная, 52/28.7/8.6 м2, Этаж 5 из 5, 1995 г.
г. Вилейка, Гагарина, 14/1
Продаётся уютная 2-комнатная квартира, 52 м².
1027
Дата обновления: 19.05.2025
96 940 руб
≈35 000$
1 860 руб/м²
673$/м²
2-комнатная, 49.9/30.2/8.8 м2, Этаж 5 из 5, 1989 г.
г. Вилейка, Л.Толстого, 55
Продам просторную 2-ух комнатную квартиру, все работы по демонтажу были выполнены. Сан узел раздельный, потолки высокие, на кухне газ. Квартира находиться в очень хорошем районе, возле дома есть все что нужно, сад, школа…
2003
64 870 руб
≈22 000$
1 300 руб/м²
441$/м²
1-комнатная, 28.2/16.7/5.5 м2, Этаж 4 из 5, 1973 г.
г. Вилейка, Гагарина
Квартира находиться в хорошем районе, в хорошем состоянии, заезжай и живи. В квартире заменена сантехника (ванна, унитаз, трубы). Имеются счетчики (газ, вода). Имеется подвал, стояночное место для авто, пандус, домофон. …
2086
4-комнатная, 86/55/9 м2, Этаж 1 из 5, 1989 г.
г. Вилейка, Чапаева 60
Внимание! Снижена цена и Срочно продаётся просторная 4-х комнатная квартира в г. Вилейка, р-н «Зенит». 1-й этаж 5-ти этажного дома, 86/55/9., с хорошим ремонтом, частично с мебелью, две прихожие, большая лоджия, закрепле…
2185
141 540 руб
≈48 000$
1 650 руб/м²
558$/м²
2-комнатная, 51.1/40/10 м2, Этаж 1 из 2, 1990 г.
г. Вилейка, Пер. Гидростроителей 4
Продам долю 45/100 в двухкомнатной квартире с прилегающей территорией по адресу Вилейка, переулок Гидростроителей 4. Комнаты смежные. В квартире хороший ремонт, пол ламинат, кухня линолеум, санузел плитка. Установлен нов…
4456
27 000 руб
≈9 138$
530 руб/м²
179$/м²

Как купить квартиру в городе Вилейка?

На что нужно обратить внимание при выборе однокомнатной и двухкомнатной квартиры?

В чем преимущества и недостатки каждого типа жилья? Как найти выгодное предложение?

Все эти вопросы порой заставляют впасть в ступор любого человека, кто сталкивается с поиском жилья. Однако, в таких случаях необходимо помнить, что поиск подходящего варианта — это процесс творческий; а его залогом является не только знание рынка недвижимости, но и грамотная подготовка к нему.

Если вы хотите приобрести жилье, то рекомендуем придерживаться следующего алгоритма:

  1. Определитесь со своими финансовыми возможностями. Это первый и самый важный шаг.
  2. Просмотрите сайты с объявлениями о продаже недвижимости.
  3. Выберите несколько наиболее привлекательных объявлений для дальнейшей покупки.
  4. Проведите просмотр выбранных вариантов перед заключением сделки купли-продажи.
  5. Обсудив все аспекты договора, заключите сделку. Будьте готовы к тому, что процесс продажи квартиры может растянуться на несколько месяцев. При покупке квартиры по договору долевого строительства лучше всего обращаться в проверенные строительные компании.

Это позволит не только купить квартиру, но и быть уверенным в ее качестве.

Выбор однокомнатной или двухкомнатной квартиры

При просмотре квартир и покупке квартиры без посредников обратите внимание на следующие аспекты:

Планировка. Поинтересуйтесь у продавца, какие виды из окна будут открываться вашему вниманию, а также каким будет количество окон. Это позволит оценить качество жилья.

  1. Состояние квартиры. Прежде чем принять решение о покупке, уточните, в каком состоянии квартира. Проведите ее визуальный осмотр.
  2. Цена. Обратите внимание на стоимость квадратного метра
  3. Статус жилья. Приобретая квартиру на вторичном рынке, вы получаете жилье, которое уже не принадлежит продавцу. Это значит, что оно может быть подвергнуто значительным изменениям, в том числе и перепланировке.
  4. Наличие ремонта. Лучше всего заранее узнать, был ли выполнен ремонт в квартире, насколько он качественный.
  5. Месторасположение квартиры. Оцените возможность быстро добраться до места работы, учебы, других мест, которые для вас важны.
  6. Юридическая чистота сделки.Убедитесь, что у продавца имеются все необходимые документы, подтверждающие право собственности.
  7. Заключение договора. Обязательно заключите с продавцом договор купли-продажи и удостоверьтесь в том, что он соответствует законодательству РФ.
  8. Наличие ипотеки. Узнайте, какие банки выдают ипотеку на покупку квартиры в новостройке.

    Инфрастуктура. Оцените, насколько развита социальная и торговая сети в районе, где находится квартира. В этом вам поможет поиск информации в интернете.
  9. Застройщик. Обратите внимание на репутацию застройщика.

Всегда помните, что покупка квартиры это серьезный шаг, который требует ответственного подхода к делу. Не стоит торопиться с принятием решения.