Продажа домов в Русиновичах

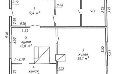
2-комнатная, 75.2/34.9/12.8 м2, (25 соток), 1972 г.
Брестская область, аг. Русиновичи, Шоссейная
Продаётся жилой дом 1972 г.п. в аг. Русиновичи, ул. Шоссейная (Ляховичский р-н), 25 км от Баранович и 9 км от Ляхович. Площадь общая по СНБ – 75.2 м2, общая жилая - 47.7 м2 , жилая – 34.9 м2, кухня – 12.8 м2. - Материал…
2398
Дата обновления: 28.02.2026
39 170 руб
≈13 999$
520 руб/м²
186$/м²