Купить дом, Кривое Село, Первомайская ул., 7.5 соток

Просмотры: 69 всего, 70 за месяц, 70 за неделю
  • Площадь участка:
    7.5 соток
  • Площадь общая:
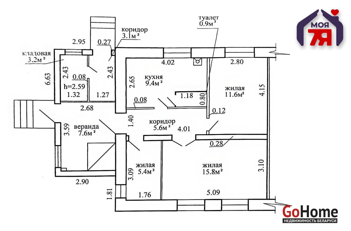
    56.3 м2
  • Площадь жилая:
    32.8 м2
  • Площадь кухни:
    9.4 м2
  • Этажность:
    1

42 770 руб
или ≈15 200$
Купить в лизинг
Описание

Комфортных половина жилого дома в живописном месте возле Вилейского водохранилища
️Крепкий дом 1974 г.п. с не большим участком - отличный вариант как для дачи так и для круглогодичного проживания.
- В агрогородке есть почта, дом культуры, фельдшерский пункт, магазины.
- Кирпичный дом со всеми центральными коммуникациями, шиферной крышей расположен на участке 7,8 соток.
- Общая площадь дома составляет 56,3 м2, жилая площадь - 32,8 м2, площадь кухни – 9,4 м2.
- Отопление газовый двухконтурный котёл, который греет и дом и воду.
- В дом подведена центральная вода; полы деревянные, местами линолеум ; окна деревянные и ПВХ.
- Канализация центральная, подведена на кухню и санузел, который находится в доме.
- Территория участка огорожена забором.
- К дому проведено оптоволокно, подключен интернет.
- На участке расположен прекрасный сад, который будут радовать вас своим урожаем. В Вашем распоряжении будет банька, хоз. постройки.
- Дом расположен в агрогородке Кривое Село. В 500 метрах от дома леc, где можно не только совершать прогулки, а так же собирать грибы и ягоды. В шаговой доступности есть продуктовый магазин, амбулатория, сельсовет, почта.
- Остановка общественного транспорта расположена недалеко от дома.
- В 3,5 километрах находится Вилейское водохранилище. Прекрасное место для отдыха с семьей и друзьями. На Вилейском водохранилище расположено несколько кемпингов для отдыха, что сделает Ваш отдых намного комфортнее.
- В доме остаётся всё что есть на фотографиях.
️ Мы с радостью покажем Вам этот объект и сделаем Вас его счастливыми хозяевами!
А также хотите:
- выгодно продать
- срочно выкупить
- найти лучшую квартиру
- заработать на инвестициях в недвижимость
- сделать дизайнерский ремонт
Тогда «Моя 7Я» решит это, как для своей семьи: с любовью, заботой и желаемым результатом!
Агентство недвижимости ООО «Центр международной недвижимости Моя 7Я»
УНП 193750826
Лицензия: № 02240/484 выдана МЮ РБ 18.05.2024 г.
Страховое свидетельство БР 0004860

Получай предложения от собственников первым!
Вы нашли объявление на GoHome.by (ГоуХоум.бай)

УНП 193750826
Лицензия № 02240/484 выдана МЮ РБ 18.05.2024 г.

  • Номер объявления:
    804464
  • Дата обновления:
    25.04.2026
  • Площадь участка:
    7.5 соток
  • Площадь общая:
    56.3 м2
  • Площадь жилая:
    32.8 м2
  • Площадь кухни:
    9.4 м2
  • Договор:
    № 298/4 от 2025-06-13
Распечатать
Пожаловаться на объявление