Купить дом, Полыковичи, Лесная, 19.61 соток

Просмотры: 3 всего, 4 за месяц, 4 за неделю
  • Комнат:
    6-комнатная
  • Площадь участка:
    19.61 соток
  • Площадь общая:
    254.1 м2
  • Площадь жилая:
    192.4 м2
  • Этажность:
    2

237 220 руб
или 80 000$
Описание

В продаже двухэтажный дом в Полыковичах (ул. Лесная), периферия Могилева. Развитая инфраструктура (до остановки - 7 минут пешком, до дет. сада - 1 км., 13 мин., до СШ 40 - 4 остановки на общ. транспорте (траллейбус - 2, автобусы -1,7,7д, маршрутка -2т). Рядом лыжная трасса.

Дом простой снаружи, но красивый внутри. Просторный, светлый, он отлично подойдет любителям и ценителям природы.

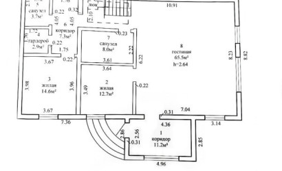
Дом введен в эксплуатацию в 2025 г. Общая площадь жилых помещений - 254,1 кв.м. На 1-м этаже предусмотрены: кухня-гостиная (65,5 кв.м.), две жилые комнаты (14, 6 кв.м. и 12,7 кв.м.), санузел (8 кв.м.), прихожая (11,2 кв.м.), коридор (7,3 кв.м.), гардероб (2,9 кв.м.), санузел/тех.помещение (3,7 кв.м.). Высота потолков - 2,64 м.

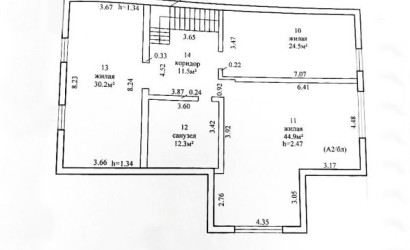
Лестница ведёт на 2-й этаж с 3 просторными жилыми комнатами (30,2 кв.м, 24,5 кв.м., 44,9 кв.м. ),с санузлом (12,3 кв.м), коридором (11,5 кв.м.). Высота потолка - 2,47 м.

Пол из лиственницы! (используется даже в кораблестроении).

Материал стен - газосиликатные блоки. Оштукатурены.

Водоснабжение центральное (введено в дом), канализация местная.
Отопление - эл.конвекторы (p.s. по улице идёт ещё и газ).
Окна ПВХ.
Крыша - шифер. Потолок утеплен.

Дом требует завершения ремонтных работ. Это хороший вариант для воплощения Ваших дизайнерских задумок.

Большой ровный участок (19,6 соток) в частной собственности, граничит с лесом. Удобный подъезд к дому.

Растут плодовые деревья и кустарники (два сорта винограда).

Остальную информацию вы можете получить по номеру, указанному в объявлении. Можем выслать больше фотографий по личному запросу. Приглашаем на показ по предварительной договоренности.

По желанию покупателя разработка планировочного решения в ПОДАРОК!

Договор 30/16 от 11.03.2026 г.
ОДО «Юриэлт», УНП 101214439
Зарегистрировано решением Минского горисполкома № 1557 от 28.12.2000
г.Минск, ул.Комсомольская, д.5А-7
Лицензия Министерства юстиции Республики Беларусь № 02240/8 от 17.02.2005 (бессрочная) на право осуществления деятельности по оказанию юридических услуг - риэлтерских услуг.

Получай предложения от собственников первым!
Вы нашли объявление на GoHome.by (ГоуХоум.бай)

УНП 101214439
Лицензия 02240/8 (риэлтерские услуги) от 17.02.2005г. МЮ РБ

  • Номер объявления:
    801044
  • Дата обновления:
    27.03.2026
  • Площадь участка:
    19.61 соток
  • Площадь общая:
    254.1 м2
  • Площадь жилая:
    192.4 м2
  • Присутствует:
    Свет; Вода; Санузел в доме;
  • Договор:
    № 30/16 от 11.03.2026
Распечатать
Пожаловаться на объявление