Продажа домов в Могилевской области

4-комнатная, 98.6/1/12.34 м2, (5 соток), 1 эт., 1995 г.
Могилевская область, п. Жиличи, Ул.Парковая 1
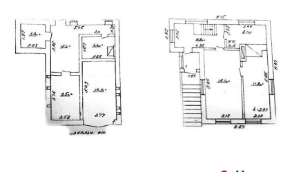
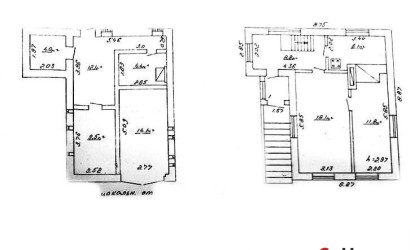
А.г Жиличи, Кировского района , Могилевской области, в шаговой доступности от Дворца Булгакова — одной из главных архитектурных достопримечательностей регион Планировка: • Два зала • Две спальни • Большая кухня • Раз…
1271
Дата обновления: 13.05.2026
69 430 руб
≈25 000$
700 руб/м²
254$/м²
2-комнатная, 43.1/24.2/8.7 м2, (3.8 соток)
Могилевская область, г. Могилев, 1-й Грушевский
В продаже часть дома по пер.Грушевскому,1-му. Общая площадь 43.1 кв.м., жилая 24.2 кв.м., кухня 8.7 кв.м. Ко второй части дома подведен газ, центральный водопровод и канализация. Показ возможен в любое время по предва…
2
Дата обновления: 13.05.2026
35 830 руб
≈12 900$
830 руб/м²
299$/м²
2-комнатная, 55/31/- м2, (35 соток), 1 эт.
Могилевская область, Полыковичи
Дом на большом участке с интересным ландшафтом в 10 минутах от центра Могилева. Деревянный дом не представляет архитектурного интереса, а является предметом продажи на земельном участке с оригинальным ландшафтом и веков…
2
Дата обновления: 13.05.2026
83 040 руб
≈29 900$
1 510 руб/м²
544$/м²
5-комнатная, 130/100/- м2, (12.72 соток)
Могилевская область, г. Могилев
В продаже трехэтажный дом в живописной местности СТ "Днепр 3" (между Николаевкой-2 и Днепром). Общей площадью 130,0 кв.м (садовый дом 97,0 кв.м.+ мансарда 33,0 кв.м.), баня (63,0 кв.м.) (см.фото планировки тех.паспорта).…
2
Дата обновления: 13.05.2026
180 520 руб
≈65 000$
1 390 руб/м²
500$/м²
2-комнатная, 51.1/33.23/9.01 м2, (39.84 соток), 1 эт.
Могилевская область, Тишовка, Северная
В продаже жилой дом с большим участком 0.3984 га в д.Тишовка. Расположен по улице Северной,23. Общая площадь дома 51.1 кв.м., жилая 33.23 кв.м., кухня 9.01 кв.м. К дому подведен газ и центральный водопровод. Хорошее ра…
2
Дата обновления: 13.05.2026
88 870 руб
≈32 000$
1 740 руб/м²
626$/м²
1-комнатная, 45.4/24.9/- м2, (25 соток), 1 эт.
Могилевская область, д. Браково, Центральная
В продаже участок с домом, примыкающий к озеро в д. Браково, по ул. Центральной. Участок находится всего в 17 км от Могилева и прекрасно подойдет как для жизни, так и для использования в коммерческих целях. Участок 25…
2
Дата обновления: 13.05.2026
52 490 руб
≈18 900$
1 160 руб/м²
416$/м²
3-комнатная, 115.2/62.7/8.8 м2, (15 соток), 2 эт., 1999 г.
Могилевская область, СТ Днепр 3
В продаже жилой дом 1999 г.постройки в СТ Днепр-3. Дом расположен в прекрасном месте от г.Могилева в 10 мин.езды, рядом с домом р.Днепр. В доме 2 этажа, отопление печное (газ идёт по улице), вода колодец на участке, с/у…
2
Дата обновления: 13.05.2026
105 530 руб
≈38 000$
920 руб/м²
330$/м²
Найдено объектов: 96
5-комнатная, 250/120/- м2, (15 соток), 4 эт., 2002 г.
Могилевская область, д. Антоновка, Беларусь, г. Бобруйск д.антоновка 7
Дом 4-х уровневый в СОТ "Антоновка", дом для жилья, кирпично-блочный, 250 кв.м, окна ПВХ, деревянные лестницы, двери деревянные, газ и вода централизованы, всё проведено в дом, есть санузел, отделочных работ нет, оштукат…
1066
Дата обновления: 12.05.2026
361 040 руб
≈130 000$
1 440 руб/м²
520$/м²
4-комнатная, 197.76/101.55/16.07 м2, (13 соток), 2 эт., 1991 г.
Могилевская область, д. Трилесино, Юбилейная
ШИКАРНОЕ ПРЕДЛОЖЕНИЕ В уютном месте, в продаже дом 1991 г.п., с участком 13 соток. По адресу: Могилёвская обл., Дрибинский ра-н., аг. Трилесино, ул. Юбилейная (10 км от Дрибина, 40 км от Могилёва). Дом 2-х этажный с га…
27
Дата обновления: 11.05.2026
111 090 руб
≈40 000$
560 руб/м²
202$/м²
5-комнатная, 98.1/46.79/10.88 м2, (28.08 соток), 1 эт.
Могилевская область, Тишовка, Северная
В продаже жилой дом в д.Тишовка. Расположен по улице Северной,40. Общая площадь 98.1 м.кв. по СНБ, жилая 46.79 м.кв., кухня 10.88 м.кв. Участок 0.2808 га. В доме 5 жилых комнат, кухня,веранда. К дому подведен центральный…
20
Дата обновления: 11.05.2026
97 200 руб
≈35 000$
990 руб/м²
357$/м²
4-комнатная, 54.5/44.04/- м2, (7.7 соток), 1 эт.
Могилевская область, г. Могилев, Калининградская
Продается дом в Могилеве, ул. Калининградская, 35, район Менжинки. Общей площадью 54,50 кв.м, жилая - 44,04 кв.м. (см.фото планировки тех.паспорта). Окна - ПВХ. Пол-доска, линолеум. Крыша - шифер. Материал стен - бревно…
35
Дата обновления: 11.05.2026
91 650 руб
≈33 000$
1 680 руб/м²
606$/м²
3-комнатная, 62.61/52.8/9.8 м2, (12 соток), 1 эт.
Могилевская область, г. Могилев, Гвардейская
Уникальное предложение в центре города - жилой дом с большим участком!!! Расположен по улице Гвардейской в городе Могилёве. Общая площадь 62.56 кв.м., жилая 52.77 кв.м., кухня 9.79 кв.м. Дом расположен на большом участ…
32
Дата обновления: 11.05.2026
116 640 руб
≈42 000$
1 860 руб/м²
671$/м²
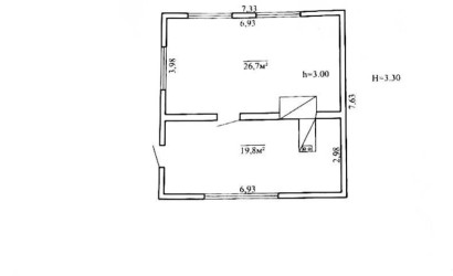
0-комнатная, 140.2/69.2/- м2, (7.24 соток), 2 эт.
Могилевская область, г. Могилев, 4-й Карабановский
Жилой дом в Могилёве по переулку Карабановскому 4-му Дом построен из газоселикатных блоков и введен в эксплуатацию в 2024 году. Наружная площадь (площадь застройки) составляет 106 м2/ общая площадь здания 140,2 м2/ обща…
68
Дата обновления: 08.05.2026
241 340 руб
≈86 900$
1 720 руб/м²
620$/м²
0-комнатная, 48.12/36.93/- м2, (23 соток), 1 эт.
Могилевская область, д. Салтановка, Шоссейная ул., 59
Продается жилой дом в деревне Салтановка, площадью 50 м кв, бревенчатый, крыша шиферная, нигде не течет, отопление печное, печку полностью недавно переложили и отделали новой плиткой, дымоход прочищен, печка с лежанкой, …
1168
Дата обновления: 07.05.2026
51 380 руб
≈18 500$
1 070 руб/м²
384$/м²
0-комнатная, 63.6/45/- м2, (25 соток), 1 эт.
Могилевская область, аг. Вязье, Богдановича ул., 20
Продается жилой дом рядом с Осиповичским водохранилищем (100 метров). Вязье — деревня в Осиповичском районе Могилёвской области Беларуси, расположенная на живописном берегу Осиповичского водохранилища. Это историческое с…
1241
Дата обновления: 07.05.2026
53 600 руб
≈19 300$
840 руб/м²
303$/м²
0-комнатная, 181.4/125.3/- м2, (6.06 соток), 2 эт., 1997 г.
Могилевская область, г. Могилев, Карьерный 1-й пер., 13
Продается жилой дом в районе 8-ого переулок Карьерный. Дом одноэтажный с жилым цокольным этажом, есть большой мансардный этаж, но без отделки. Основная часть дома 1974 года постройки и пристройка 1997 года выполнены из …
367
Дата обновления: 07.05.2026
416 580 руб
≈150 000$
2 300 руб/м²
827$/м²
4-комнатная, 62.1/52.4/5.7 м2, (13.82 соток), 1 эт.
Могилевская область, г. Могилев, Пушкинский
В продаже квартира в блокированном жилом доме по проспекту Пушкинскому,56. Общая площадь 62.1 м.кв., жилая 52.4 м.кв., кухня 5.7 м.кв. Участок 0,1382 га. В доме 4 жилых комнаты,кухня,2 веранды. К дому подведен центральны…
62
Дата обновления: 07.05.2026
99 980 руб
≈36 000$
1 610 руб/м²
580$/м²
4-комнатная, 214.6/95.4/30.8 м2, (11.56 соток), 2 эт.
Могилевская область, г. Могилев, Лесной Ручей
В продаже просторный современный жилой дом в г. Могилёве по улице Лесной Ручей. Дом блочный 2024 года постройки ,оштукатурен,окрашен. Общая площадь — 214.6 м², жилая — 95.4м², кухня-столовая — 30.8м². Дом построен из с…
41
Дата обновления: 07.05.2026
388 810 руб
≈140 000$
1 810 руб/м²
652$/м²
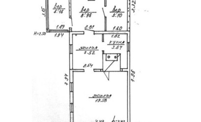
3-комнатная, 75.7/30.3/23.4 м2, (15 соток), 1 эт., 1975 г.
Могилевская область, г. Могилев, Локомобильная
Жилой дом в Могилёве. Расположен по улице Локомобильной,95 (район-Холмы). Общая площадь дома 75.7 м2 (по СНБ), общая площадь жилых помещений 67.0 м2, жилая площадь 30.3 м2, кухня-гостиная 23.4 м2. Технический паспорт п…
45
Дата обновления: 07.05.2026
138 580 руб
≈49 900$
1 830 руб/м²
659$/м²
4-комнатная, 92.1/53/10.7 м2, (5.1 соток), 1 эт., 1976 г.
Могилевская область, г. Бобруйск, Калинина
Продаётся уютный дом от собственника. Дом общей площадью 92,1 м 2, с жилой площадью 53 м 2 расположен на участке площадью 5,1 сотки. В шаровой доступности протекает река, рядом находится остановка общественного транспор…
218
Дата обновления: 06.05.2026
179 960 руб
≈64 800$
1 950 руб/м²
704$/м²
3-комнатная, 52.26/30.34/6.09 м2, (13 соток), 1 эт., 1976 г.
Могилевская область, г. Могилев, Курский
В продаже дом 1976 г.п., с участков 13 соток. По адресу: г. Могилёв, пер-к. Курский (р-н. Лифтового). Дом одноэтажный, общая площадь 52.26 кв.м, жилая 30.34 кв. м, кухня 6.09 кв. м, материал стен дерево обложеное кирпи…
67
Дата обновления: 06.05.2026
83 320 руб
≈30 000$
1 590 руб/м²
574$/м²
4-комнатная, 60/40/6 м2, (6.21 соток), 1 эт., 1970 г.
Могилевская область, г. Бобруйск, Каменского
Продается пол дома с отдельным входом, баня и отдельно стоящий гараж в г.Бобруйск. Дом: бревенчатый дом облицован кирпичной кладкой 1970 года постройки. В 2024г. проводилась реконструкция строения. Имеется 4 комнаты (т…
121
Дата обновления: 22.04.2026
91 370 руб
≈32 900$
1 520 руб/м²
548$/м²
4-комнатная, 115/60/20 м2, (20 соток), 1 эт., 2017 г.
Могилевская область, д. Липень, Володарского д. 14
Продам незаконченный коттедж, имеется строительный проект с разрешением на реконструкцию, проект на электро снабжение (1 стадии) подключения строительной площадки, и проект на (2 стадию) электроснабжение дома, эфи. За за…
785
Дата обновления: 04.04.2026
52 770 руб
≈19 000$
460 руб/м²
165$/м²
4-комнатная, 70/55.3/9.8 м2, (8 соток), 1 эт.
Могилевская область, г. Быхов, ул Куйбышева дом 45
Продаётся просторный дом в центре города Быхов. Удобное расположение рядом с природой,но совсем недалеко от городской инфраструктуры, Четыре светлые жилые комнаты.Просторная прихожая,столовая,кухня. Так же есть возможнос…
1513
Дата обновления: 19.03.2026
63 880 руб
≈23 000$
910 руб/м²
329$/м²
0-комнатная, 130/56/13.48 м2, (24.93 соток), 3 эт.
Могилевская область, аг. Свислочь, Клименко ул.
Продается добротный кирпичный дом в аг. Свислочь, Осиповичского района Дом построен в несколько уровней, что придает дополнительную неординарность и удобство в использовании внутреннего пространства дома.. Первый уровень…
157
Дата обновления: 04.03.2026
219 400 руб
≈79 000$
1 690 руб/м²
608$/м²
0-комнатная, 176/74.8/21.8 м2, (13.42 соток), 2 эт., 2008 г.
Могилевская область, д. Голынка, Дачная ул., 73
Продаётся дом в живописном месте на берегу р. Березина с бассейном, баней, гаражом и беседкой. Осиповичский район, д. Голынка, ул. Дачная,73 Участок 14 соток с садом, баней, летней беседкой и хозблоком. Трехэтажный дом …
171
Дата обновления: 25.02.2026
749 840 руб
≈270 000$
4 260 руб/м²
1 534$/м²
0-комнатная, 250.9/97/16.2 м2, (10.99 соток), 3 эт., 2006 г.
Могилевская область, г. Бобруйск, Пригородная ул., 24
Продаётся дом в центре Бобруйска с баней, гаражом и хозпостройками в идеальном состоянии. г. Бобруйск, ул. Пригородная, 24 Участок 10 соток с садом, баней, летней кухней и хозблоком. Трехэтажный дом построен по индивиду…
216
Дата обновления: 25.02.2026
472 120 руб
≈170 000$
1 880 руб/м²
678$/м²
2-комнатная, 55/35/8 м2, (11 соток), 2 эт., 2018 г.
Могилевская область, д. Подлужье, Береговая
Продам дом на берегу Чигиринского водохранилища с мостиком для рыбалки, лодки
525
Дата обновления: 15.01.2026
97 200 руб
≈35 000$
1 770 руб/м²
636$/м²
1-комнатная, 35/25/- м2, (15 соток), 1 эт., 2025 г.
Могилевская область, д. Быстрик, Шоссейная 5а
Современный уютный теплый домик, льготное отопление, красивое место недалеко от города, участок 15 соток, дом модульный собирался на производстве из сухой строганной древесины, стены сип панели (очень теплый) , технологи…
437
Дата обновления: 06.01.2026
44 440 руб
≈16 000$
1 270 руб/м²
457$/м²
0-комнатная, 150/-/20 м2, (15 соток), 2024 г.
Могилевская область, г. Могилев, Софиевская ул., 9
Продается 2-этажный дом в коттеджной застройке на 15 сотках в частной собственности в экологически чистом районе г. Могилева в районе Казимировки по ул. Софиевской. Тихий, экологически чистый, благоустроенный район Могил…
357
168 020 руб
≈60 500$
1 120 руб/м²
403$/м²