Купить 1-комнатную квартиру, Лесной аг., Н.Н.Александрова ул. 8

Просмотры: 8 всего, 9 за месяц, 9 за неделю
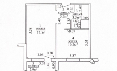
  • Комнат:
    1-комнатная
  • Площадь общая:
    37.4 м2
  • Площадь жилая:
    17.1 м2
  • Площадь кухни:
    10.2 м2
  • Этаж:
    2 из 10
  • Год постройки:
    2009

224 210 руб
или 5 995 руб/м2
76 000$
или 2 032$/м2
Описание

Продаётся однокомнатная квартира по адресу: Минская область, Минский район, аг. Лесной (Боровляны), ул. Н.Н. Александрова, 8.
ТОРГА НЕТ!!!

Квартира расположена на комфортном 2м этаже. Панельный дом улучшенной планировки расположен в квартале «ЗЕЛЕНЫЙ БОР», где одновременно совмещены городская инфраструктура и лесопарковая территория, чистый воздух и удобства мегаполиса. Дом обслуживается Товариществом собственников.

ПЛОЩАДЬ ПО СНБ 37,4 м², КУХНЯ - 10,2 м², ЖИЛАЯ КОМНАТА - 17,1 м².
Дом панельный 2009 г.п. ЭТАЖ 2 из 10.
Высота потолка 2,55 м.
Лоджия — 2,9 м²; утеплена, отделана, алюминевые рамы заменены на ПВХ-стеклопакеты, тёплый пол. Санузел — совмещённый, 3,5 м².
Полы в комнате и коридоре - ламинат, плитка в кухне и санузле, потолки — выровнены и окрашены, на стенах обои.
Окна — ПВХ-стеклопакеты.
Новым владельцам остаётся вся встроенная мебель.
В доме оптоволокно.
ЧИСТЫЙ БЕЗ ЗАПАХОВ ПОДЪЕЗД + домофон +лифт + видеонаблюдение + огороженная территория.
На территории квартала детские площадки, велобоксы, крытая велопарковка.
Двор удалён от проезжей части, за домом лес.
НЕТ ПРОБЛЕМ С ПАРКОВКОЙ в любое время суток!
Гимназия, школа, детский сад — в шаговой доступности.
Рядом магазины: «Гиппо», ТЦ «Перекрёсток», кофейни, аптеки, поликлиника, банк, почта, пункты выдачи Ozon и Wildberries.
Хорошее транспортное сообщение, до метро «Московская» — 15–20 минут.
Удобный выезд в сторону спортивных комплексов: «Раубичи», «Силичи», «Логойск».


ООО «Риэлти Фокс»
УНП 193293123
Лицензия Минюста РБ 02240/381 от 30.08.2019 г.
Договор 1/1 от 15.01.2026 г.

Получай предложения от собственников первым!
Вы нашли объявление на GoHome.by (ГоуХоум.бай)

УНП 19329313
Лицензия Минюста РБ № 02240/381 от 30.08.2019г.

  • Номер объявления:
    800707
  • Дата обновления:
    15.01.2026
  • Область:
  • Населенный пункт:
    Лесной аг.
  • Улица, дом:
    Н.Н.Александрова ул. 8
  • Комнат:
    1-комнатная
  • Площадь общая:
    37.4 м2
  • Площадь жилая:
    17.1 м2
  • Площадь кухни:
    10.2 м2
  • Этаж:
    2 из 10
  • Год постройки:
    2009
  • Раздельный санузел:
    Нет
  • Телефон:
    Нет
  • Договор:
    № 1/1 от 15.01.2026
Распечатать
Пожаловаться на объявление