Купить дом, СТ Днепр 3, 15 соток

Просмотры: 10 всего, 11 за месяц, 11 за неделю
  • Комнат:
    3-комнатная
  • Площадь участка:
    15 соток
  • Площадь общая:
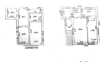
    115.2 м2
  • Площадь жилая:
    62.7 м2
  • Площадь кухни:
    8.8 м2
  • Этажность:
    2
  • Год постройки:
    1999

110 920 руб
или 38 000$
Описание

В продаже жилой дом 1999 г.постройки в СТ «Днепр-3».
Дом расположен в прекрасном месте от г.Могилева в 10 мин.езды, рядом с домом р.Днепр.

В доме 2 этажа, отопление печное (газ идёт по улице), вода колодец на участке, с/у на улице, в подвальном помещении находится рабочая баня, дровник, а также погреб, имеется гараж.

Ровный ухоженный участок 15 сот., на участке теплица, различные саженцы деревьев, кустарники, а также выкопан бассейн.

Узнать более подробную информацию и записаться на просмотр можно по телефону, указанному в объявлении.


Договор № 115/16 от 24.08.2025г.

ОДО «Юриэлт», УНП 101214439,
Лицензия Министерства юстиции РБ N°02240/8 от 17.02.2005 года (бессрочная) на право осуществления деятельности по оказанию юридических услуг - риэлтерских услуг.

Получай предложения от собственников первым!
Вы нашли объявление на GoHome.by (ГоуХоум.бай)

УНП 101214439
Лицензия 02240/8 (риэлтерские услуги) от 17.02.2005г. МЮ РБ

  • Номер объявления:
    798311
  • Дата обновления:
    09.03.2026
  • Площадь участка:
    15 соток
  • Площадь общая:
    115.2 м2
  • Площадь жилая:
    62.7 м2
  • Площадь кухни:
    8.8 м2
  • Год постройки:
    1999
  • Присутствует:
    Свет; Вода;
  • Договор:
    № 115/16 от 24.08.2025
Распечатать
Пожаловаться на объявление