Купить коттедж, Свирь, Новая ул., 13 соток

Просмотры: 264 всего, 173 за месяц, 19 за неделю
  • Площадь участка:
    13 соток
  • Площадь общая:
    231.1 м2
  • Площадь жилая:
    132 м2
  • Площадь кухни:
    9.6 м2
  • Этажность:
    3
  • Год постройки:
    2009

251 860 руб
или ≈90 000$
Купить в лизинг
Изменения цены
90 000$
07.05.2026 г.
95 000$
31.03.2026 г.
99 000$
09.03.2026 г.
Описание

Просторный 3-уровневый коттедж, Мядельский район, 231 м2
️Продается 3-уровневый коттедж на 13 сотках в Мядельском районе, общая площадь — 231,1 кв.м, жилая — 132 кв.м. Дом с удобной планировкой, в хорошем состоянии, готов к проживанию. Рядом с домом — школа, детский сад, магазины, транспорт. Природные зоны и озера в шаговой доступности.
-Просторный 3-уровневый коттедж на 13 сотках земли в живописном районе, всего 150 км от Минска по Мядельскому направлению.
-Общая площадь дома составляет 231,1 кв.м, из которых 132 кв.м — жилая площадь.
-Дом был построен в 2009 году, выполнен из блоков с крышей из металлопрофиля, что обеспечивает долгий срок службы и надежность конструкции.
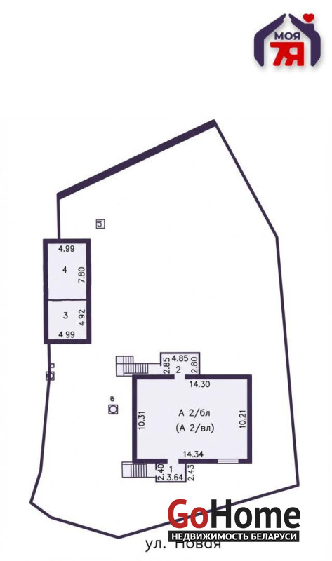
-Коттедж имеет отличную планировку. На цокольном этаже расположены топочная, санузел и несколько подсобных помещений, что добавляет удобства в хранении и обслуживании.
-Первый этаж включает в себя просторную кухню, санузел и пять жилых комнат, что создаёт отличные условия для ежедневной жизни и приём гостей.
-На втором этаже находятся три жилые комнаты, две кладовые и санузел — идеальное пространство для семьи с детьми, где каждый может найти своё место.
-Все коммуникации в доме уже установлены: два котла обеспечивают отопление, вода подведена в дом, канализация местная. Дом полностью готов для комфортного проживания большой семьи. Также выполнен качественный косметический ремонт, что позволяет вам заехать и жить сразу без дополнительных затрат времени и средств.
-Участок площадью 13 соток, на котором расположены гараж с ямой, летняя кухня. Участок полностью обустроен, обеспечивая пространство для отдыха и хозяйственных нужд.
-Удобные подъездные пути.
-Дом находится в городском посёлке с развитой инфраструктурой: детский сад, школа, больница, банк, почта и другие социальные объекты расположены в шаговой доступности. Остановка общественного транспорта рядом, что делает транспортное сообщение удобным.
-Локация данного коттеджа — это идеальное сочетание тишины загородной жизни и удобного доступа к необходимым городским сервисам. Всего 150 км от Минска, а Мядельское направление и группа озёр "Голубые Озёра" придают этому месту дополнительную привлекательность.
-До озера Свирь всего 500 метров, а до озера Нарочь — 30 км. Здесь можно наслаждаться природой и проводить время на воде, а также использовать дом для отдыха или постоянного проживания.
️Этот коттедж — идеальный вариант для тех, кто ищет простор и комфорт загородной жизни с возможностью иметь все нужные объекты инфраструктуры рядом.
️ Ищете выгодную недвижимость или хотите продать свою? Мы решим это для Вас с заботой и профессионализмом:
- Купить квартиру или дом в Минске и области- Продать недвижимость по выгодной цене- Оформить ипотеку, семейный капитал или кредит на покупку недвижимости- Помочь с инвестициями в недвижимость- Подобрать дизайнерский ремонт или перепланировку- Выбрать лучший банк для выгодного кредита и лизинга
* Напишите нам в удобный мессенджер - Viber, Telegram или WhatsApp, и мы ответим на все вопросы!
️ «Моя 7Я» решит это, как для своей семьи: с любовью, заботой и желаемым результатом!
Агентство недвижимости ООО «Центр международной недвижимости Моя 7Я» | УНП 193750826 | Лицензия: № 02240/484 выдана МЮ РБ 18.05.2024 г. | Страховое свидетельство БР 0005017

Получай предложения от собственников первым!
Вы нашли объявление на GoHome.by (ГоуХоум.бай)

УНП 193750826
Лицензия № 02240/484 выдана МЮ РБ 18.05.2024 г.

  • Номер объявления:
    798259
  • Дата обновления:
    04.05.2026
  • Площадь участка:
    13 соток
  • Площадь общая:
    231.1 м2
  • Площадь жилая:
    132 м2
  • Площадь кухни:
    9.6 м2
  • Год постройки:
    2009
  • Договор:
    № 43/4 от 2026-02-09
Распечатать
Пожаловаться на объявление