Купить дом, Минск, Ясная, 7А, 4.9 соток

Просмотры: 53 всего, 54 за месяц, 54 за неделю
  • Комнат:
    1-комнатная
  • Площадь участка:
    4.9 соток
  • Площадь общая:
    88.1 м2
  • Площадь жилая:
    43 м2
  • Площадь кухни:
    11 м2
  • Этажность:
    2
  • Год постройки:
    2003

181 560 руб
или 62 578$
Описание

Полдома по ул. Ясной д.7А в Партизанском районе, выделенный в отдельную квартиру и половина участка выставили на продажу в тихом спокойном месте рядом с парковой зоной.

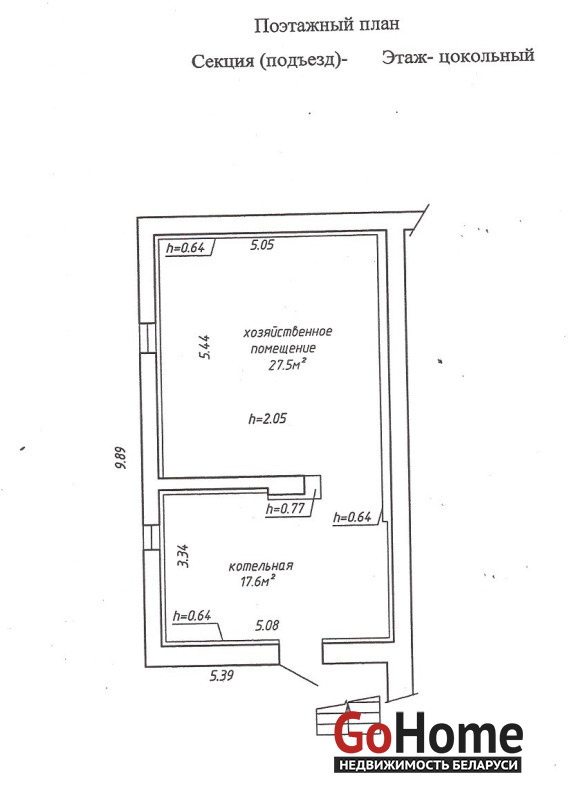
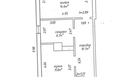
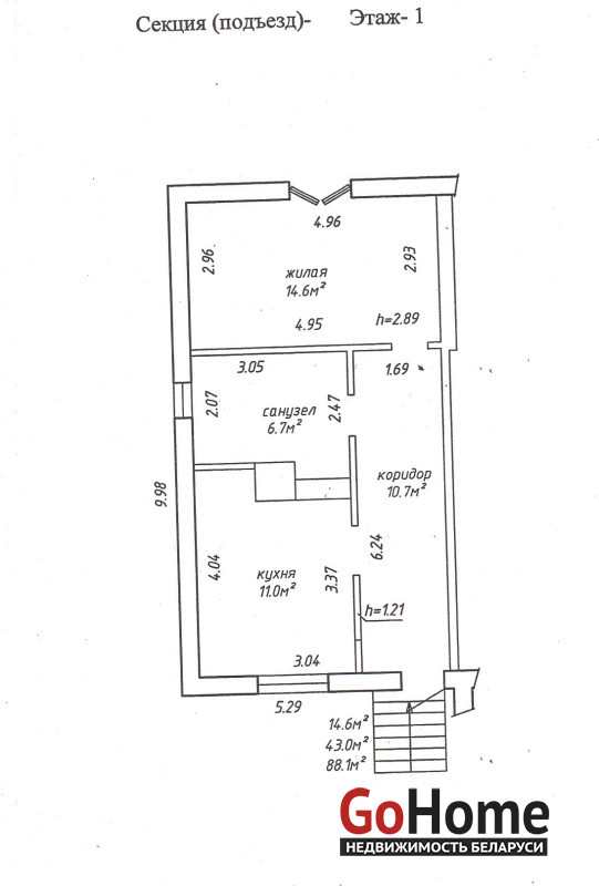
Параметры дома позволяют сделать очень привлекательную квартиру, кроме большого цокольного этажа (хозяйственное помещение 27,5 кв.м., котельная 17,6 кв.м.), первого – 43,0 кв.м., есть еще и мансардный этаж.

Есть проект и там можно оборудовать 2 большие комнаты (это на будущее ).

Центральное водоснабжение введено в дом. Канализация местная. Разводка электричества по дому осуществлена.

Квартира без отделки. Крыша – шифер. Вход в дом отдельный.

Земельный участок: хороший, ровный с плодородным грунтом. Забор из металлопрофиля и дерева. Сосед дружелюбный, без вредных привычек. Здесь действительно тихое, уютное место и все соседи в окружающих домах – достойные люди.

Инфраструктура развитая, все, что необходимо для жизни (городской ) в шаговой доступности: школы, различные магазины. Рядом с домом асфальтированная дорога. Развитое транспортное сообщение. Хорошее предложение тем, кто хочет жить в собственном доме в городской черте и не выезжая из города на выходные: отдохнуть, поджарить шашлык, сходить в лес (парковая зона рядом), встретиться с друзьями. Торг уместен.

Ещё больше объектов недвижимости в нашем Telegram-канале @urielt_minsk

Получай предложения от собственников первым!
Вы нашли объявление на GoHome.by (ГоуХоум.бай)

УНП 101214439
Лицензия 02240/8 (риэлтерские услуги) от 17.02.2005г. МЮ РБ

  • Номер объявления:
    797861
  • Дата обновления:
    05.03.2026
  • Область:
  • Район Беларуси:
  • Населенный пункт:
  • Район:
    Партизанский район
  • Микрорайон:
    Степянка
  • Улица, дом:
    Ясная, 7А
  • Станция метро:
    Борисовский тракт
  • Тип объекта:
  • Комнат:
    1-комнатная
  • Площадь участка:
    4.9 соток
  • Площадь общая:
    88.1 м2
  • Площадь жилая:
    43 м2
  • Площадь кухни:
    11 м2
  • Год постройки:
    2003
  • Присутствует:
    Свет; Вода;
  • Договор:
    № 269/1 от 17.11.2023
Распечатать
Пожаловаться на объявление
Вам может быть интересно
0-комнатная, 28/-/- м2, (5.7 соток), 1 эт.
Минская область, г. Минск, Солтыса ул.
Партизанский район
Продается ¼ дома в минске ! Ул.Солтыса 87 Под небольшую реконструкцию! Обьект по смешной цене , половины комнаты в минске! -отдельный вход -участок с хоз постройкой (сарай) -2 комнаты -электричество, газ -вода и канализа…
7
Дата обновления: 06.03.2026
43 520 руб
15 000$
1 550 руб/м²
536$/м²
1-комнатная, 39/26.1/13.4 м2, (9.08 соток), 1 эт.
Минская область, г. Минск, Либаво-Роменская, 3
Ленинский район
Ковальская Слобода
Продается дом, расположенный в хорошем месте, в районе улиц: Маяковского, Полевая, Денисовская, на земельном участке площадью 0,0908 га, находящимся в пожизненном наследуемом владении. Дом - бревно, обложено кирпичом.…
349
Дата обновления: 05.03.2026
231 810 руб
79 900$
5 940 руб/м²
2 049$/м²
0-комнатная, 90.4/56.9/- м2, (8.4 соток), 1 эт.
Минская область, г. Минск, Гагарина ул., 19
Центральный район
Продается дом с большим участком в Центральном районе, микрорайон Новинки, ул. Гагарина, 19. Участок 8,4 сотки в ПНВ, огорожен по периметру. На участке дом, гараж, хозпостройки. Дом монолитно-каркасный общей площадью 90,…
1794
Дата обновления: 04.03.2026
417 790 руб
144 000$
4 620 руб/м²
1 593$/м²
0-комнатная, 97.1/65.9/- м2, (14.63 соток), 1 эт.
Минская область, г. Минск, Горбатова ул.
Первомайский район
Продается блокированный жилой дом с земельным участком в г. Минске, по ул. Горбатова. Дом деревянный одноэтажный, на два входа. Год постройки 1960. Отопление - твердотопливный котел. Газ подведен к дому. Водоснабжение це…
1730
Дата обновления: 04.03.2026
275 620 руб
95 000$
2 840 руб/м²
978$/м²
7-комнатная, 141.9/96.9/17.4 м2, (4.9 соток), 2 эт., 1956 г.
Минская область, г. Минск, Охотская
Заводской район
Могилевская
- Продается 2-этажный дом в г. Минске - Второй этаж - мансардный - Материал стен: бревна, сайдинг - Площадь участка - 0,0487 га, земля в частной собственности - Вода - центральная, электроснабжение - центральное, отопл…
241
Дата обновления: 04.03.2026
435 200 руб
150 000$
3 070 руб/м²
1 057$/м²
1-комнатная, 32.5/18/6.3 м2, (6.16 соток), 1 эт., 1963 г.
Минская область, г. Минск, Широкая, 126
Советский район
Академия наук
Половина дома по цене однокомнатной квартиры! Продаём половину дома (выделены две квартиры) на участке площадью 6,16 соток. Ремонт свежий, всё необходимое в доме имеется, начиная от крана с водой на улице, до видеонаблю…
780
Дата обновления: 28.02.2026
226 270 руб
77 990$
6 960 руб/м²
2 400$/м²
5-комнатная, 101.6/62.4/20.3 м2, (5.48 соток), 2 эт., 2025 г.
Минская область, г. Минск, Холмогорская, 13
Партизанский район
Автозаводская
Продается квартира в трехквартирном блокированном доме по адресу г. Минск , ул. Холмогорская д. 13 Дом построен и введен в эксплуатацию в 2026 году. Стены - газосиликатный блок 400 мм с утеплением 100 мм. Крыша - металл…
71
Дата обновления: 27.02.2026
406 180 руб
140 000$
4 000 руб/м²
1 378$/м²
5-комнатная, 88/53.7/18.1 м2, (5.15 соток), 1 эт., 1961 г.
Минская область, г. Минск, Затишье
Советский район
Академия наук
Продаётся одноэтажный деревянный жилой дом с тремя отапливаемыми пристройками, тамбуром, двумя сараями, уборной по улице Затишье (микрорайон Сельхозпосёлок, Советский район). Хорошее сообщение наземным транспортом, ряд…
76
Дата обновления: 27.02.2026
446 800 руб
154 000$
5 080 руб/м²
1 750$/м²
0-комнатная, 193.5/98.9/10.7 м2, (6 соток), 3 эт., 2015 г.
Минская область, г. Минск, Черниговская ул.
Октябрьский район
Эксклюзивный коттедж с постройками общей площадью 340 м2 в шаговой доступности от комплекса Минск Мир. Центр Минска. ️ Трёхэтажный коттедж и многофункциональная стильная постройка общей площадью 340 м2 представляет собой…
257
Дата обновления: 27.02.2026
2 582 160 руб
890 000$
13 340 руб/м²
4 599$/м²
0-комнатная, 103.9/68.6/35.3 м2, (6 соток), 1 эт.
Минская область, г. Минск, Поселковая 1-я ул.
Советский район
Центр притяжения вашей жизни. Теплый дом на 5 комнат у Цнянского водохранилища.Устали выбирать между «рядом с парком» и «рядом с центром»? Между «тишиной» и «транспортом под боком»? Этот дом — тот редкий случай, когда …
373
Дата обновления: 26.02.2026
298 540 руб
102 900$
2 870 руб/м²
990$/м²