Аренда склада, Минск, Танковая ул., 2, 8758 кв.м.

Просмотры: 670 всего, 671 за месяц, 14 за неделю
  • Площадь:
    8758 2
  • Год постройки:
    2025

23,68 руб/м2
или 7€/м2
207 389,44 руб
или 61 306€
Описание

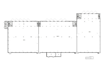
Предлагаем Вашему вниманию производственно-складской комплекс с отличным оснащением вблизи МКАД по адресу: г. Минск, ул. Танковая, 2; идеально подходящий под любые задачи Вашей компании! К каждому блоку прилагается удобный АБК, включающий в себя офисы, кухни и раздельные гардеробы для удобства Ваших сотрудников и коллег. Объект новый и имеет следующие характеристики:
- Общая площадь комплекса 8623.5 м2, из них:
- Блок №1 2730 м2 (включая рампу и АБК);
- Блок №2 3285.7 м2 (включая рампу и АБК);
- Блок №3 2470.6 м2 (включая рампу и АБК);
- 14 рамп 120 гидроборт с термо-шторами;
- Наливной пол антипыль (нагрузка 10 тонн/м2);
- Высота 10.25-10.73 м, высота в зоне отгрузки 4.8 м;
- Практически полностью свободная планировка;
- Порошковая система пожаротушения, потолочное крепление;
- Электромощность более 240 кВт на весь комплекс;
- Хорошие подъездные пути для большегрузного транспорта;
Месторасположение:
Объект расположен в 5 км от МКАД, в пешей доступности от объекта расположен продовольственный магазин, также поблизости ж/д станция «Озерище» и в 240 метрах расположены остановки городского транспорта.
Собственник является плательщиком НДС.
Звоните, покажем в удобное для Вас время!

Вы нашли объявление на GoHome.by (ГоуХоум.бай)
  • Номер объявления:
    788932
  • Дата обновления:
    06.01.2026
  • Область:
    Минская область
  • Район Беларуси:
    Минский район
  • Населенный пункт:
  • Район:
    Партизанский район
  • Улица, дом:
    Танковая ул., 2
  • Станция метро:
    Рядом нет метро
  • Тип объекта:
  • Площадь:
    8758 м2
  • Год постройки:
    2025
  • Санузел:
    Нет
  • Телефон:
    Нет
  • Договор:
    № 171/1а от 2025-12-20
Распечатать
Пожаловаться на объявление
Вам может быть интересно
Помещений: 0, от 135 до 250 м2
г. Минск, Лынькова ул., 19/2
Фрунзенский район
Сдаётся в аренду складское помещение в г. Минске на ул. Лынькова 19/2. Склад находится на нижнем уровне, что обеспечивает удобный доступ для погрузочно-разгрузочных работ. Площадь помещения составляет 137 м2, что позволя…
3123
Дата обновления: 04.02.2026
от 2 323,4 руб
от 810$
17,2 руб/м²
6$/м²
Помещений: 0, 327.6 м2, 2014 г.
г. Минск, Монтажников ул., 9
Фрунзенский район
Объект сдается в аренду при условии последующей покупки данного помещения (возможна рассрочка). В аренду предлагается помещение многофункциональное общей площадью 327.6 м.кв в одной из крупнейших промышленных зон Минска …
2797
Дата обновления: 04.02.2026
8 864,9 руб
2 621€
27,1 руб/м²
8€/м²
Помещений: 1, от 600 до 650 м2, Этаж 1 из 2, 2023 г.
г. Минск, ул. Селицкого, д.
Заводской район
Локация В конце ул.Селицкого переходит в д.Королищевичи ул.Центральная 86Б, 500 м. от знака Минск. Основные характеристики объект • Теплый склад, площадью 601,3 м.кв.; • Двое ворота 3000х4000 и 3000х3000; • Высота …
426
Дата обновления: 29.01.2026
от 12 600,0 руб
от 4 200€
21,0 руб/м²
7€/м²
Помещений: 0, 205 м2
г. Минск, Мавра ул., 47/47
Фрунзенский район
Склад во Фрунзенский районе ️ Сдаётся помещение под склад в привлекательном районе с развитой инфраструктурой! - Площадь помещения – 205 квадратных метров, что позволит вам организовать удобную систему хранения. - Высот…
227
Дата обновления: 27.01.2026
2 939,7 руб
1 025$
14,3 руб/м²
5$/м²
Помещений: 1, от 150 до 400 м2, Этаж 1 из 1, 1990 г.
г. Минск, ул. Монтажников, д. 23
Фрунзенский район
Вблизи МКАД (ТЭЦ-4) сдается в субаренду заасфальтированная подкрановая площадка общей площадью 102 М2. По договоренности предоставим услуги крановщика и стропальщиков. Удобный, хороший подъезд и отличная локация! Ждем Ва…
834
Дата обновления: 27.01.2026
от 1 200,0 руб
от 450€
8,0 руб/м²
3€/м²
Помещений: 0, от 12 до 70 м2, 2006 г.
г. Минск, Калиновского ул., 31/а
Первомайский район
Аренда офисов (второй этаж) 35м- два кабинета 11 долл за метр, 24м-9 долл за метр по адресу: ул. Калиновского 31А (Зеленый Луг) – вдохновение и комфорт для вашего бизнесаПредлагается в аренду многофункциональное админист…
262
Дата обновления: 27.01.2026
от 309,8 руб
от 108$
25,8 руб/м²
9$/м²
Помещений: 0, от 12 до 70 м2, 2006 г.
г. Минск, Калиновского ул., 31/а
Первомайский район
Аренда офисов и складов от 40 до 120 м2 по адресу: ул Калиновского 31А (Зеленый Луг) – вдохновение и комфорт для вашего бизнеса Предлагается в аренду многофункциональное административно-хозяйственное помещение, идеально …
260
Дата обновления: 26.01.2026
от 241,0 руб
от 84$
20,1 руб/м²
7$/м²
Помещений: 1, 261 м2, Этаж 1 из 1
г. Минск, 2-й Загородный, 2А
Московский район
Молодежная
Сдается здание по адресу 2-ой Загородный пер., 2А с хорошими подъездными путями под производство, склад, автомойку (детейлинг центр) и другие виды деятельности общей площадью 261кв.м, крыша шифер. Электричество подключ…
814
Дата обновления: 24.01.2026
5 240,9 руб
1 827$
20,1 руб/м²
7$/м²
Помещений: 0, от 200 до 1500 м2
г. Минск, Красноармейская ул., 21
Ленинский район
Октябрьская
Предлагаем вашему вниманию производственно-складское помещение от 200 до 1500 кв. м, расположенное по адресу: г. Минск, ул. Красноармейская, 21. Характеристики объекта: - сетка колонн – 12х18 м, высота потолков 10,8 м до…
2764
Дата обновления: 22.01.2026
от 2 400,0 руб
от 800€
12,0 руб/м²
4€/м²
Помещений: 0, 307.9 м2
г. Минск, Рабочий пер., 5
Ленинский район
Пролетарская
Сдается в аренду складское помещение, расположенное по адресу: г. Минск, пер. Рабочий, 5. Арендатор не оплачивает услуги агентства! Основные характеристики объекта: - помещение расположено в подвальном этаже жилого дома;…
1377
Дата обновления: 20.01.2026
3 694,8 руб
1 232€
12,0 руб/м²
4€/м²