Продажа квартир в Озятах

2-комнатная, 50.6/30.5/7.6 м2, Этаж 1 из 2
аг. Озяты, ,
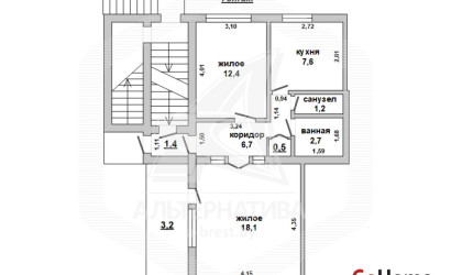
Квартира в блокированном жилом доме в Жабинковском р-не.2 этажа, подвальный этаж. Общ.СНБ - 74,9 кв.м, общ.- 50,6 кв.м, жил.- 30,5 кв.м, кух.- 7,6 кв.м. 2 комнаты, высота потолка - 2,5 м. Стены: материал - газосиликатный…
1446
Дата обновления: 02.06.2025
64 360 руб
≈23 000$
1 270 руб/м²
455$/м²