Продажа квартир по ул. Телеграфная в Гродно

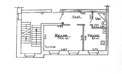
1-комнатная, 31.9/15.4/8.1 м2, Этаж 2 из 3
г. Гродно, Телеграфная, 22А
Продается 1-комнатная квартира в Историческом центре ул.Телеграфная дом 22А 2 этаж /3 этажного кирпичного жилого дома. Год постройки 1917.Год реконструкции 1999. Площадь общая 31.9, жилая 15.4, кухня 8.1 м2.Высота пот…
49
Дата обновления: 10.12.2025
200 480 руб
68 000$
6 280 руб/м²
2 132$/м²