Недвижимость в Дитве

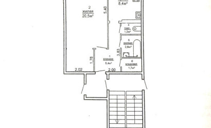
1-комнатная, 39.8/20.5/8.4 м2, Этаж 2 из 2, 1981 г.
аг. Дитва, Ленинская
1 -комнатная квартира без ремонта, с разумным торгом. Панельный дом 1981 год постройки. Квартира находится на 2м этаже двухэтажного дома. «Улучшенный проект», большая площадь квартиры: 39,8 м2 , кухня 8,4 м2., уютная жил…
93
Дата обновления: 11.11.2025
35 340 руб
12 000$
890 руб/м²
302$/м²
1-комнатная, 39.8/20.5/8.4 м2, Этаж 2 из 2, 1981 г.
аг. Дитва, Ленинская 11а
Продаётся однокомнатная квартира в агрогородке Дитва. Лидский район. В агрогородке есть садик, школа, 2 магазина, клуб с библиотекой. До города Лида 12км. Общественный транспорт ходит каждый час. Подъезд к городку с двух…
1104
35 390 руб
12 000$
890 руб/м²
302$/м²