Недвижимость в Беловежском

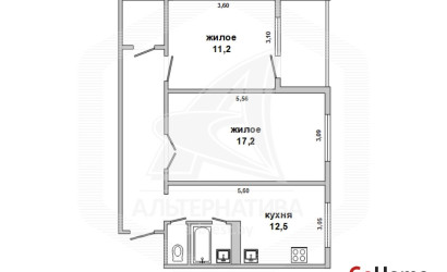
2-комнатная, 52.6/29/9.4 м2, Этаж 4 из 4, 1983 г.
аг. Беловежский, ,
2-комнатная квартира, аг. Беловежский, ул. Школьная, 1983 г.п., 4 / 4 панель, 54,7 / 52,6 / 29,0 / 9,4, санузел совмещенный, лоджия застеклена, стеклопакеты, межкомнатные двери - массив, входная дверь деревянная, потолки…
1448
Дата обновления: 29.01.2026
76 940 руб
26 800$
1 460 руб/м²
510$/м²
4-комнатная, 80.4/57/9 м2, Этаж 3 из 3, 1995 г.
аг. Беловежский, ,
4-комнатная квартира, аг. Беловежский, ул. Якуба Коласа, 1995 г.п., 3 / 3 панель, 84,0 / 80,4 / 57,0 / 9,0, санузел раздельный, подвал, две лоджии застеклены, стеклопакеты, межкомнатные двери – МДФ, входная дверь металли…
3998
Дата обновления: 24.01.2026
100 490 руб
35 000$
1 250 руб/м²
435$/м²
3-комнатная, 67.2/42.4/8 м2, Этаж 2 из 3, 1991 г.
аг. Беловежский, ,
3-комнатная квартира, аг. Беловежский, ул. Якуба Коласа, 1991 г.п., 2 / 3 панель, 71,2 / 67,2 / 42,4 / 8, санузел раздельный, подвал, две лоджии застеклены деревянные стеклопакеты, деревянные межкомнатные двери, потолки …
2299
Дата обновления: 09.01.2026
82 680 руб
28 800$
1 230 руб/м²
429$/м²
2-комнатная, 55.8/33.7/10.2 м2, Этаж 2 из 2, 1985 г.
аг. Беловежский, ,
2-комнатная квартира, аг. Беловежский, ул. Ленина, 1985 г.п., 2 / 2 кирпич, 58,8 / 55,8 / 33,7 / 10,2, санузел раздельный, две лоджии застеклены, стеклопакеты, входная дверь металлическая, потолки (2,45 м) - оклеены обоя…
77
Дата обновления: 06.01.2026
62 300 руб
21 700$
1 120 руб/м²
389$/м²
3-комнатная, 70.8/40.4/9.3 м2, Этаж 1 из 4, 1983 г.
аг. Беловежский, ул. Ленина
Лот 8715. В продаже просторная трёхкомнатная квартира на 1 этаже 4-этажного панельного дома 1983 года постройки в аг. Беловежский. Общая площадь квартиры 70,8 кв.м, жилая 40,4 кв.м. Квартира удобной планировки: три изоли…
544
Дата обновления: 02.11.2025
78 880 руб
27 500$
1 110 руб/м²
388$/м²
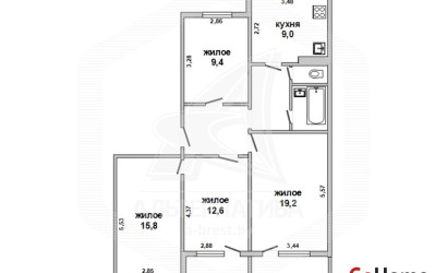
4-комнатная, 81/53.7/9.1 м2, Этаж 3 из 3, 1993 г.
аг. Беловежский, Я. Коласа
Лот 8192. Аг. Беловежский. Предлагаем Вашему вниманию четырёхкомнатную квартиру для комфортного проживания в агрогородке Беловежский Каменецкого района. Квартира расположена на 3 этаже 3-этажного панельного дома 1993 год…
1384
Дата обновления: 12.10.2025
109 000 руб
38 000$
1 350 руб/м²
469$/м²
4-комнатная, 81/53.7/9.1 м2, Этаж 3 из 3, 1996 г.
аг. Беловежский, Якуба Коласа
Лот. 55024 Продается 4-комнатная квартира в Каменецком районе, агрогородок Беловежский. Дом 1996 г.п., панель, 3 этаж из 3, общая площадь квартиры 81 кв.м, жилая площадь 53,7 кв.м., кухня 9,1 кв.м. В квартире жилое сост…
1271
Дата обновления: 24.07.2025
111 860 руб
39 000$
1 380 руб/м²
481$/м²
4-комнатная, 104.3/49.3/11.3 м2, Этаж 1 из 2
аг. Беловежский, ,
Квартира в блокированном жилом доме в Брестском р-не. 1986 г.п. 2 этажа. Общ.СНБ - 158,4 кв.м, общ.- 104,3 кв.м, жил.- 49,3 кв.м, кух.- 11,3 кв.м. 4 комнаты, высота потолка - 2,60 м. Стены: материал - железобетонная пан…
499
Дата обновления: 26.06.2025
77 520 руб
27 000$
740 руб/м²
259$/м²
3-комнатная, 66.1/40.4/9.3 м2, Этаж 1 из 4, 1983 г.
аг. Беловежский, ,
3-комнатная квартира, аг. Беловежский, ул. Школьная, 1983 г.п., 1 / 4 панель, 70,8 / 66,1 / 40,4 / 9,3, санузел раздельный, две лоджии, подвал, стеклопакеты, входная дверь металлическая, потолки - натяжные (сатин), много…
963
Дата обновления: 19.04.2025
78 950 руб
27 500$
1 190 руб/м²
416$/м²
2-комнатная, 54.8/28.4/12.5 м2, Этаж 1 из 2, 1986 г.
аг. Беловежский, ,
2-комнатная квартира, аг. Беловежский, ул. Парковая, 1986 г.п., 1 / 2 панель, 56,9 / 54,8 / 28,4 / 12.5, санузел раздельный, лоджия застеклена, подвал, стеклопакеты, деревянные межкомнатные двери, входная дверь металличе…
709
47 370 руб
16 500$
860 руб/м²
301$/м²
2-комнатная, 53.6/29.4/9.5 м2, Этаж 4 из 4, 1984 г.
аг. Беловежский, ,
2-комнатная квартира, аг. Беловежский, ул. Ленина, 1984 г.п., 4 / 4 панель, 55,8 / 53,6 / 29,4 / 9,5, санузел раздельный, лоджия застеклена, частично стеклопакеты, деревянные межкомнатные двери, входная дверь металлическ…
1533
50 530 руб
17 600$
940 руб/м²
328$/м²
4-комнатная, 81/53.7/9.1 м2, Этаж 3 из 3, 1993 г.
аг. Беловежский, ,
4-комнатная квартира, аг. Беловежский, ул. Якуба Коласа, 1993 г.п., 3 / 3 панель, 85,4 / 81,0 / 53,7 / 9,1, санузел раздельный, лоджия застеклена, подвал, стеклопакеты, межкомнатные двери - массив (орех), входная дверь м…
1435
112 540 руб
39 200$
1 390 руб/м²
484$/м²