Продажа участков в Малорите

Участок, 7.31 соток, 1993 г.
Брестская область, г. Малорита, г. Малорита
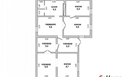
Дом под снос в г.Малорите. 1993 г.п. 1 этаж. Общ.СНБ - 61,5 кв.м, общ.- 61,5 кв.м, жил.- 25,2 кв.м, кух.- 6,5 кв.м. 3 комнаты, высота потолка - 2,26 м. Стены: материал - керамический кирпич. Кровля: шифер. Фундамент: ле…
853