Продажа домов в Столбцовском районе

0-комнатная, 97.4/62.1/15.04 м2, (8.63 соток), 1 эт.
Минская область, г. Столбцы, Социалистическая ул.
В продаже жилой дом в г. Столбцы общей площадью 97,4 кв.м., полностью готов к проживанию. Грамотная планировка, качественный ремонт, продуманность инженерных решений и настоящий домашний уют. В доме все необходимые комм…
40
Дата обновления: 08.12.2025
262 100 руб
88 900$
2 690 руб/м²
913$/м²
4-комнатная, 54.1/37.9/8 м2, (13.6 соток), 1 эт., 1970 г.
Минская область, г. Столбцы, Сенкевича, 56
Предлагаем уютный ДОМ общей площадью 54,4 м2, всего в 65 км от г. Минска. Тихое и спокойное место, живописные виды природы. Рядом лес, озеро, река Неман. Всего 1 час на автомобиле по отличной дороге М1 и вы дома. Так же…
56
Дата обновления: 06.12.2025
54 540 руб
18 500$
1 010 руб/м²
342$/м²
4-комнатная, 52.2/29.2/8.4 м2, (21 соток), 1 эт., 1970 г.
Минская область, д. Скоморошки, Центральная
Предлагаем уютный ДОМ общей площадью 52,2 м2, всего в 75 км от г. Минска, и в 7 км от г. Столбцы. В деревню ходят маршрутки и автобусы из Столбцов. Тихое и спокойное место, живописные виды природы. Рядом река несколько …
81
Дата обновления: 06.12.2025
47 170 руб
16 000$
900 руб/м²
307$/м²
9-комнатная, 378.1/182.4/12.6 м2, (11 соток), 4 эт., 2007 г.
Минская область, г. Столбцы, Дружная
Предлагаем уютный, очень удобный 9-х комнатный дом, площадью 378,5 м2, жилая площадь 182,5 м2 - с участком 11 соток, гараж, сарай - всего в 65 км от Минска. Тихое и спокойное место, живописные виды природы, рядом в 500…
45
Дата обновления: 06.12.2025
368 540 руб
125 000$
970 руб/м²
331$/м²
2-комнатная, 59.2/37.1/11.8 м2, (6 соток), 1 эт., 2005 г.
Минская область, г. Столбцы, Магистральная, 46
Предлагаем уютный 2-х комнатный дом, который находится в доме на две квартиры, общей площадью 59,0 м2, жилая площадь 37,0 м2 - с участком 6 соток, имеется подвал, плюс возможность устроения мансардного этажа площадью 30…
54
Дата обновления: 06.12.2025
79 600 руб
27 000$
1 340 руб/м²
456$/м²
5-комнатная, 188/70.4/26.2 м2, (10 соток), 1 эт., 2020 г.
Минская область, г. Столбцы, Столичная, 43
Предлагаем прекрасный дом, строили для себя! готовность 90%, площадью 188,5 м2, жилая площадь 70,4 м2, удобная и современная планировка, - с участком 10,0 соток, - всего в 65 км от Минска. Тихое и спокойное место, живоп…
57
Дата обновления: 06.12.2025
162 160 руб
55 000$
860 руб/м²
293$/м²
2-комнатная, 31.5/23.2/7.3 м2, (7 соток), 1 эт., 1970 г.
Минская область, г. Столбцы, Социалистическая, 96
Предлагаем крепкий 2-х комнатный дом, общей площадью 31,5 м2, жилая площадь 23,0 м2 - с участком 7 соток, имеется гараж и сарай, погреб под кухней с полками для закаток! Газовое отопление. На участке садовые деревья,…
61
Дата обновления: 06.12.2025
37 740 руб
12 800$
1 200 руб/м²
406$/м²
Найдено объектов: 36
3-комнатная, 80.4/43.2/8.4 м2, (25 соток), 1 эт., 1970 г.
Минская область, д. Новая Веска, Гагарина, 24
Предлагаем отличный, уютный 3-х комнатный дом, площадью 80,1 м2, хорошая планировка, почти все удобства, ровный участок, новый газовый двухконтурный котел. А также дополнительно стеклопакеты и с участком- 25 соток, …
54
Дата обновления: 06.12.2025
47 170 руб
16 000$
590 руб/м²
199$/м²
5-комнатная, 70/58/12 м2, (30 соток), 1 эт., 1960 г.
Минская область, аг. Любковщина, Центральная, 15
Предлагаем отличный, 5-ти комнатный дом, площадью 80,1 м2, хорошая планировка, почти все удобства, ровный участок,газ в доме и с участком- 25 соток, середина деревни - всего в 80 км от Минска. Тихое и спокойное место…
89
Дата обновления: 06.12.2025
29 190 руб
9 900$
420 руб/м²
141$/м²
4-комнатная, 104.4/64.6/11.5 м2, (19.45 соток), 1 эт., 1985 г.
Минская область, д. Залужье, Новая, 142
Предлагаем вашему вниманию большой, уютный дом 1985 года постройки, пригодный для постоянного, комфортного проживания , площадью 104,4 м2. в тихом уголке Столбцовского района Минской области. Коммуникации: центральное в…
41
Дата обновления: 06.12.2025
167 460 руб
56 800$
1 600 руб/м²
544$/м²
1-комнатная, 29.4/18.3/5.2 м2, (17 соток), 1 эт.
Минская область, д. Пруды, Дзержинского, 71
Продается небольшой, но очень уютный домик с участком в самом центре Налибокской пущи. Название деревни Пруды говорит само за себя: 2 озера для рыбной ловли и купания, река Шура, грибной и ягодный лес, Прудский Дендропар…
58
Дата обновления: 06.12.2025
35 080 руб
11 900$
1 190 руб/м²
405$/м²
3-комнатная, 54.8/34.6/12 м2, (9.2 соток), 1 эт.
Минская область, д. Пруды, Дзержинского, 122
Продается жилой дом с ремонтом, санузлом и баней в д. Пруды, в самом центре Налибокской Пущи. Прекрасное место для жизни и отдыха: 2 озера для рыбной ловли и купания в шаговой доступности, природный источник с чистой пит…
41
Дата обновления: 06.12.2025
58 670 руб
19 900$
1 070 руб/м²
363$/м²
5-комнатная, 96.4/54.8/9.1 м2, (15 соток), 1 эт., 1960 г.
Минская область, г. Столбцы, Ленинская, 21
Предлагаем уютный 5-х комнатный дом, общей площадью 96,0 м2, жилая площадь 55,0 м2 - с участком 15 соток, имеется подвал, погреб, гараж, сарай. В доме есть все удобства для комфортной жизни. На участке садовые деревья,…
45
Дата обновления: 06.12.2025
88 150 руб
29 900$
910 руб/м²
310$/м²
1-комнатная, 48.2/24.9/- м2, (25 соток), 1 эт.
Минская область, д. Заречье, Центральная
Продается дом в д. Заречье – Рубежевичский с/с - Столбцовский район - 51 км от Минска – Брестское направление. - Если вы ищете идеальное место для постоянного проживания либо отдыха от городской суеты, тогда этот вари…
988
Дата обновления: 03.12.2025
22 110 руб
7 500$
460 руб/м²
156$/м²
0-комнатная, 83.8/72/10 м2, (17 соток), 1 эт.
Минская область, д. Новый Свержень
️Продаётся дом на берегу реки Нёман в д. Новый свержень, Столбцовского района. ️Деревня расположена на левом берегу реки Неман. Совсем рядом, на другом берегу реки, расположен районный центр - город Столбцы, деревня Нов…
1499
Дата обновления: 27.11.2025
32 430 руб
11 000$
390 руб/м²
131$/м²
0-комнатная, 116.5/80.3/12.1 м2, (11.83 соток), 2 эт., 2011 г.
Минская область, г. Столбцы, Сенкевича ул.
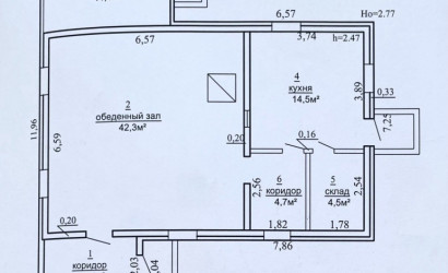
Общая площадь составляет – 194,2 кв.м, жилая – 80,3 кв.м - 4 жилые комнаты. На 1-ом этаже расположены: ● просторная гостиная 17,8 кв.м, ● 1 жилая комната 16,7 кв.м, ● кухня 12,1 кв.м, ● совмещенный санузел 8,6 кв.м, …
72
Дата обновления: 25.11.2025
244 710 руб
83 000$
2 100 руб/м²
712$/м²
3-комнатная, 54/46.8/6.4 м2, (14.25 соток), 1 эт., 1958 г.
Минская область, аг. Старый Свержень, Зелёная, 4
Продается одноэтажный бревенчатый дом в аг. Старый Свержень ул. Зелёная,д.4. Общей площадью 54.1 кв.м., земельный участок 14.25 соток в частной собственности, обработан и огорожен, есть сад. Дом для круглогодичного прож…
273
Дата обновления: 19.11.2025
55 720 руб
18 900$
1 030 руб/м²
350$/м²
0-комнатная, 70/49/7.4 м2, (8.32 соток), 1 эт.
Минская область, г. Столбцы, Полевой пер.
Продается жилой дом в г. Столбцы Минской области. Стены из бревна, крыша накрыта шифером, частично заменены окна на пластиковый стеклопакет. В доме расположена кухня, 4 жилые комнаты 16 кв.м, 12,4 кв.м, 10,9 кв.м, 9,4 кв…
200
Дата обновления: 16.10.2025
63 980 руб
21 700$
910 руб/м²
310$/м²
0-комнатная, 86.8/67/7.2 м2, (14 соток), 1 эт.
Минская область, г. Столбцы, Социалистическая ул.
Продаётся жилой дом с просторным участком в г. Столбцы (65 км в юго-западном направлении от г. Минска на автомобильной дороге Минск-Барановичи). Отличные подъездные пути!Вся инфраструктура для жизни в ближайшей локации: …
365
Дата обновления: 16.10.2025
108 790 руб
36 900$
1 250 руб/м²
425$/м²
0-комнатная, 132.9/78.8/18.3 м2, (12.6 соток), 3 эт., 1993 г.
Минская область, г. Столбцы, Мичурина пер.
Вашему вниманию предлагаем просторный двухэтажный кирпичный дом общей площадью 132,9 кв.м., 1993 года постройки в тихом и спокойном месте г. Столбцы. Дом со всеми необходимыми для жизни коммуникациями: отопление газовое …
150
Дата обновления: 15.10.2025
249 130 руб
84 500$
1 870 руб/м²
636$/м²
0-комнатная, 62.1/31.4/10 м2, (19.8 соток), 1 эт.
Минская область, д. Хотова
Продается дом, готовый к проживанию, в большой жилой деревне Хотова. В деревне есть магазин, автолавка приезжает 2 раза в неделю. асфальт до дома. Газ подведен к дому, глубокий колодец, добротный погреб. До линии централ…
1681
Дата обновления: 07.10.2025
23 290 руб
7 900$
380 руб/м²
127$/м²
0-комнатная, 54.8/34.5/12 м2, (9.15 соток), 1 эт.
Минская область, д. Пруды, Дзержинского ул.
Продается жилой дом с ремонтом, санузлом и баней в д. Пруды, в самом центре Налибокской Пущи. Прекрасное место для жизни и отдыха: 2 озера для рыбной ловли и купания в шаговой доступности, природный источник с чистой пит…
1484
Дата обновления: 06.10.2025
58 970 руб
20 000$
1 080 руб/м²
365$/м²
0-комнатная, -/-/- м2, (20 соток), 2009 г.
Минская область, д. Деревная, Подлесная ул.
Уникальное предложение ! Отличный вариант участка с домом для загородной жизни! Крепкий дом в благоустроенном агрогородке у озера! Продается уютный и просторный дом площадью 141.1 м2, расположенный в живописном месте…
483
Дата обновления: 05.10.2025
0-комнатная, 29.4/16.2/4.4 м2, (16.74 соток), 1 эт.
Минская область, д. Пруды, Дзержинского ул.
Продается небольшой, но очень уютный домик с участком в самом центре Налибокской пущи. Название деревни Пруды говорит само за себя: 2 озера для рыбной ловли и купания, река Шура, грибной и ягодный лес, Прудский Дендропар…
1447
Дата обновления: 04.10.2025
32 430 руб
11 000$
1 100 руб/м²
374$/м²
0-комнатная, 74/30.2/7.9 м2, (17 соток), 1 эт.
Минская область, д. Пильница, Центральная ул.
Дом в деревне Пильница Налибокского сельсовета. Рядом лес и река Уса. Охота (деревня на границе трех лесничеств, дом можно использовать в т.ч. как базу для охотников), рыбалка, ягоды, грибы. Экологические велотропы. Дере…
1332
Дата обновления: 04.10.2025
16 220 руб
5 500$
220 руб/м²
74$/м²
0-комнатная, 189.66/105.1/18.2 м2, (10 соток), 2 эт., 2025 г.
Минская область, г. Столбцы, Школьная ул.
В продаже просторный и светлый дом без внутренней отделки. Сделана разводка электрики по всему дому. В доме разведены канализационные трубы (выведены на улицу). Коммуникации (газ, вода) подведены до участка, не введены в…
484
Дата обновления: 14.09.2025
147 420 руб
50 000$
780 руб/м²
264$/м²
0-комнатная, 56.5/35.6/20.9 м2, (27.6 соток), 1 эт.
Минская область, д. Скоморошки, Новая ул.
Продаётся уютный деревянный дом 1966 года постройки с современными коммуникациями: газовое отопление, холодная и горячая вода в доме, электричество.Есть свой колодец. Подойдет и для постоянного проживания, и для дачи. Бо…
745
Дата обновления: 10.09.2025
88 450 руб
30 000$
1 570 руб/м²
531$/м²
0-комнатная, 93.2/72/- м2, (25 соток), 1 эт., 2024 г.
Минская область, аг. Засулье, Зеленая ул.
Ищете уютный и современный дом в живописном месте? Предлагаем вам уникальную возможность стать владельцем свежепостроенного дома из бруса в агрогородке Засулье — месте, где природа и комфорт создают идеальные условия для…
297
Дата обновления: 05.08.2025
414 240 руб
140 500$
4 440 руб/м²
1 508$/м²
0-комнатная, 140/120/- м2, (12.51 соток), 1 эт.
Минская область, г. Столбцы, Скорины ул.
В продаже дом без внутренней отделки. Коммуникации (газ, свет, вода) подведены до участка, не введены в дом. Стены из газосиликатных блоков, кровля покрыта металлочерепицей. За домом есть большая хоз. постройка, внутри к…
600
Дата обновления: 03.08.2025
123 830 руб
42 000$
880 руб/м²
300$/м²
1-комнатная, 29.2/18.6/10.6 м2, (20 соток), 1 эт., 2008 г.
Минская область, аг. Слобода, Д.Слобода ул новая д 3
Продам дом в деревне с участком 20 соток
1443
35 390 руб
12 000$
1 210 руб/м²
411$/м²