Продажа домов в Плебанцах

3-комнатная, 263.3/105.4/9.8 м2, (22.2 соток), 2 эт., 2005 г.
Минская область, д. Плебанцы, Центральная
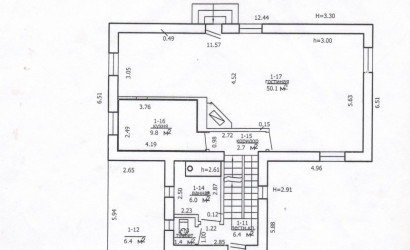
д.Плебанцы 16 км от Минска. Участок 22.2 сотки, пожизненно наследуемое владение. На территории расположены: коттедж, летняя кухня, хозпостройки. 1. Коттедж на 4 уровня: - 1 уровень – цоколь. Находятся: гараж, о…
274
Дата обновления: 20.11.2025
225 860 руб
78 000$
860 руб/м²
296$/м²