Продажа домов в деревне в Мухавце

3-комнатная, 122/74.3/13.6 м2, (15 соток), 1 эт., 2016 г.
Брестская область, п. Мухавец, Мухавецкий с/с
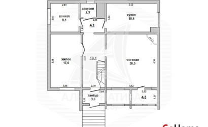
Жилой дом в Брестском р-не. 2016 г.п. 1 этаж. Общ.СНБ - 149,2 кв.м, общ.- 122,0 кв.м, жил.- 74,3 кв.м, кух.- 13,6 кв.м. 3 комнаты, высота потолка - 2,70 м. Стены: материал - газосиликатный блок; утепление - пенополистир…
28
Дата обновления: 16.12.2025
485 410 руб
165 000$
3 980 руб/м²
1 352$/м²
4-комнатная, 212.25/44.3/42.5 м2, (15 соток), 1 эт., 2020 г.
Брестская область, п. Мухавец, Ул. 60 лет Октября
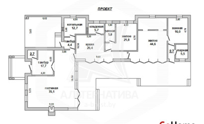
Лот 8324. Продажа коробки дома у леса в Мухавце Запишитесь на просмотр по этому номеру Наши ПОКУПАТЕЛИ НЕ ПЛАТЯТ АГЕНТСТВУ! А также мы работаем с кредитами банков. Смотрите фото, читайте описание, а если остались вопросы…
896
Дата обновления: 08.12.2025
470 700 руб
160 000$
2 220 руб/м²
754$/м²
3-комнатная, 110/60/12.5 м2, (5.04 соток), 2 эт., 2017 г.
Брестская область, п. Мухавец, Мухавецкий с/с
Лот 9262. Дом в СТ в ближайшем пригороде Бреста Звоните для более подробной информации В продаже дачный дом жилого типа 2017 года постройки в направлении аг. Мухавец. Отличная локация для постоянного проживания. Садовое …
66
Дата обновления: 04.12.2025
229 470 руб
78 000$
2 090 руб/м²
709$/м²
2-комнатная, 43/42.7/- м2, (4 соток), 1 эт., 1980 г.
Брестская область, п. Мухавец, СТ \\\\\\\" Мухавец\\\\\\\"
Лот. 5425 Продается уютный дом в Муховецком сельсовете! Не упустите шанс стать владельцем этого замечательного дома общей площадью 43 м²! Идеальное место для отдыха вдали от городской суеты, окруженное природой и спокойс…
845
Дата обновления: 20.11.2025
31 180 руб
10 600$
730 руб/м²
247$/м²
3-комнатная, 142.2/68/25.1 м2, (14.99 соток), 1 эт., 2015 г.
Брестская область, п. Мухавец, Мухавецкий с/с
Жилой дом. 2015 г.п. Брестский р-н. Газосиликатный блок / пенопласт / штукатурка "американка"/ металлочерепица.nbsp; Фундамент: ленточный монолитный; материал - бетон; подушка бетонная. 1 этаж. Общ. - 142,2 кв.м., жил. -…
1544
Дата обновления: 28.10.2025
500 120 руб
170 000$
3 520 руб/м²
1 195$/м²
6-комнатная, 293.6/120.8/16.4 м2, (16.17 соток), 2 эт., 2002 г.
Брестская область, п. Мухавец, Мухавецкий сельсовет
Лот 5638. Жилой двухэтажный дом в Мухавецком сельском совете. Фундамент бетонный. Крыша- металлочерепица. Комбинированный материал стен - железобетонные панели и силикатный кирпич, фасад утеплен пенополистиролом, оштукат…
2513
Дата обновления: 23.10.2025
426 580 руб
145 000$
1 450 руб/м²
494$/м²
3-комнатная, 59/22.3/6.3 м2, (4.76 соток), 2 эт., 2001 г.
Брестская область, п. Мухавец, Мухавецкий с/с
Лот 9152. Дача в Мухавецком с/с Звоните для более подробной информации В продаже дачный дом 2001 г постройки всего в 5 км от микрорайона Южный в живописном месте. Угловой участок рядом с лесом - наслаждайтесь свежим возд…
144
Дата обновления: 20.10.2025
85 020 руб
28 900$
1 440 руб/м²
490$/м²
0-комнатная, 149.8/68/25.1 м2, (15 соток), 2014 г.
Брестская область, п. Мухавец
Подписывайтесь на наш instagram @ecrzby для удобного слежения за новыми актуальными объектами. Продается жилой дом 2014 года постройки в агрогородке Мухавец с общей площадью 149.8 м2, из которых жилая площадь составляет …
344
Дата обновления: 20.10.2025
485 410 руб
165 000$
3 240 руб/м²
1 101$/м²
3-комнатная, 149.8/68/25.1 м2, (14.99 соток), 1 эт., 2014 г.
Брестская область, п. Мухавец, Мухавецкий с/с
до центра 0.9 км / 11 мин
Лот 6213. Индивидуальный жилой дом в стиле бунгало 2014 года постройки в Мухавецком с/с, в 5 км от черты города. Материал стен - газосиликатный блок. Утепление стен - пенопласт. Отделка фасада - штукатурка «американка» М…
1972
Дата обновления: 06.10.2025
485 410 руб
165 000$
3 240 руб/м²
1 101$/м²
1-комнатная, 23.3/20.1/- м2, (5.03 соток), 1 эт., 1995 г.
Брестская область, п. Мухавец, Мухавецкий с/с
Лот 8624. Дача рядом с чертой Бреста. Купить дачу рядом у черты Бреста - легко! Звоните номеру Участок с дачным домом расположен в направлении аг Мухавец. Товарищество активно застраивается и ведется садоводство. На учас…
582
Дата обновления: 28.09.2025
45 600 руб
15 500$
1 960 руб/м²
665$/м²
3-комнатная, 160.4/47.4/46.9 м2, (15.92 соток), 1 эт., 2014 г.
Брестская область, п. Мухавец, Мухавецкий с/с
Жилой дом в Брестском р-не. 2014 г.п. 1 этаж. Общ.СНБ - 160,4 кв.м, общ.- 160,4 кв.м, жил.- 47,4 кв.м, кух.- 46,9 кв.м. 3 комнаты, высота потолка - 2,64 м. Стены: материал - газосиликатный блок; утепление - пенополистир…
242
Дата обновления: 14.08.2025
558 960 руб
190 000$
3 480 руб/м²
1 185$/м²
0-комнатная, 25.1/-/- м2, (15.81 соток), 1 эт., 2024 г.
Брестская область, п. Мухавец, Мухавецкий с/с
Коробка жилого дома в Брестском р-не. 2024 г.п. 1 этаж. Общ.СНБ - 25,1 кв.м. Стены: материал - газосиликатный блок. Кровля: металлопрофиль (профнастил). Фундамент: ленточный монолитный; материал - бетон. Коммуникации: …
256
Дата обновления: 14.08.2025
132 390 руб
45 000$
5 270 руб/м²
1 793$/м²
0-комнатная, -/-/- м2, (14.79 соток), 1 эт., 2024 г.
Брестская область, п. Мухавец, Мухавецкий с/с
Коробка жилого дома в Брестском р-не. 2024 г.п. 1 этаж. Общ.СНБ - 25,1 кв.м. Стены: материал - газосиликатный блок. Кровля: металлопрофиль (профнастил). Фундамент: ленточный монолитный; материал - бетон. Коммуникации: …
229
Дата обновления: 14.08.2025
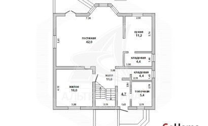
5-комнатная, 223/98/15 м2, (13 соток), 2 эт., 2019 г.
Брестская область, п. Мухавец, д. Литвины
Лот. 32520 Загородный жилой дом с мансардой под чистовую отделку в лесу на берегу реки Мухавец в д.Литвины. Стены - блок/утеплитель/"короед", крыша – металлочерепица. Окна ПВХ и пластиковые двери со шпросами. Потолки обш…
2412
Дата обновления: 15.05.2025
455 990 руб
155 000$
2 040 руб/м²
695$/м²
5-комнатная, 214.3/81.8/15.4 м2, (8.64 соток), 2 эт., 2020 г.
Брестская область, п. Мухавец, Мухавецкий с/с
Коробка дачного дома жилого типа в Брестском р-не. 2020 г.п. 2 этажа. Общ.СНБ - 270,2 кв.м, общ.- 214,3 кв.м, жил.- 81,8 кв.м, кух.- 15,4 кв.м. 5 комнат. Стены: материал - газосиликатный блок. Фундамент: ленточный монол…
424
Дата обновления: 14.05.2025
173 570 руб
59 000$
810 руб/м²
275$/м²
6-комнатная, 188.8/120.8/16.4 м2, (16.17 соток), 2 эт., 2002 г.
Брестская область, п. Мухавец, Мухавецкий с/с
Жилой дом в Брестском р-не. 2002 г.п. 2 этажа, цокольный этаж. Общ.СНБ - 293,6 кв.м, общ.- 188,8 кв.м, жил.- 120,8 кв.м, кух.- 16,4 кв.м. 6 комнат. Стены: материал - силикатный кирпич и железобетонная панель; утепление …
1348
Дата обновления: 01.05.2025
426 580 руб
145 000$
2 260 руб/м²
768$/м²
3-комнатная, 131.5/66.4/18.3 м2, (14.98 соток), 1 эт., 2018 г.
Брестская область, п. Мухавец, Мухавецкий с/с
Жилой дом в Брестском р-не. 2018 г.п. 1 этаж. Общ.СНБ - 135,3 кв.м, общ.- 131,5 кв.м, жил.- 66,4 кв.м, кух.- 18,3 кв.м. 3 комнаты, высота потолка - 3,0 м. Стены: материал - газосиликатный блок; отделка фасада - клинкерн…
1834
Дата обновления: 17.04.2025
853 150 руб
290 000$
6 490 руб/м²
2 205$/м²
5-комнатная, 176.2/116.9/17.5 м2, (19.41 соток), 2 эт.
Брестская область, п. Мухавец, Мухавецкий с/с
Жилой дом в Брестском р-не. 2 этажа, цокольный этаж. Общ.СНБ - 269,6 кв.м, общ.- 176,2 кв.м, жил.- 116,9 кв.м, кух.- 17,5 кв.м. 5 комнат, высота потолка - 2,80 м. Стены: материал - силикатный кирпич. Кровля: алюминиевая…
1715
Дата обновления: 28.01.2025
226 530 руб
77 000$
1 290 руб/м²
437$/м²
6-комнатная, 430.4/121.4/57.9 м2, (24.95 соток), 3 эт., 1996 г.
Брестская область, п. Мухавец, Мухавецкий с/с
Жилой дом в Брестском р-не. 1996 г.п. 3 этажа, мансарда, цокольный этаж. Общ.СНБ - 546,8 кв.м, общ.- 430,4 кв.м, жил.- 121,4 кв.м, кух.- 57,9 кв.м. 6 комнат, высота потолка - 2,75 м. Стены: материал - силикатный кирпич;…
1514
Дата обновления: 13.01.2025
664 870 руб
226 000$
1 540 руб/м²
525$/м²
3-комнатная, 212.1/121.9/28.4 м2, (14.95 соток), 1 эт., 2022 г.
Брестская область, п. Мухавец, Мухавецкий с/с
Коробка жилого дома в Брестском р-не. 2022 г.п. 1 этаж. Общ.СНБ - 378,0 кв.м, общ.- 212,1 кв.м, жил.- 121,9 кв.м, кух.- 28,4 кв.м. 3 комнаты. Стены: материал - газосиликатный блок. Кровля: металлочерепица. Фундамент: ле…
483
473 860 руб
160 000$
2 230 руб/м²
754$/м²
5-комнатная, 197.1/121.6/11.2 м2, (15.2 соток), 2 эт., 2015 г.
Брестская область, п. Мухавец, Мухавецкий с/с
Жилой дом в Брестском р-не. 2015 г.п. 1 этаж, мансарда. Общ.СНБ - 199,8 кв.м, общ.- 197,1 кв.м, жил.- 121,6 кв.м, кух.- 11,2 кв.м. 5 комнат, высота потолка - 2,7 м. Стены: материал - газосиликатный блок; отделка фасада …
560
524 200 руб
177 000$
2 660 руб/м²
898$/м²
0-комнатная, 59.07/37.57/14.23 м2, (5 соток), 1 эт.
Брестская область, п. Мухавец, Мухавецкий с/с
Дачный дом жилого типа в Брестском р-не. 1 этаж. Общ.СНБ - 82,7 кв.м, общ.- 59,07 кв.м, жил.- 37,57 кв.м, кух.- 14,23 кв.м. Стены: материал - газосиликатный блок; утепление - пенополистирол (пенопласт); отделка фасада …
602
226 560 руб
76 500$
3 840 руб/м²
1 295$/м²