Продажа домов в деревне в Ляховичском районе

4-комнатная, 84/56/11.6 м2, (8.3 соток), 1 эт., 1966 г.
Брестская область, г. Ляховичи, Гагарина
Продаётся жилой деревянный дом в г. Ляховичи, ул. Гагарина. Высокий крепкий фундамент, дерево в хорошем состоянии. Крыша – шифер. Площадь общая – 84 м², жилая – 56 м², кухня – 11.6 м². Аккуратный, уютный, просторный и с…
51
Дата обновления: 20.03.2026
79 650 руб
27 000$
950 руб/м²
321$/м²
2-комнатная, 59.1/37.7/- м2, (50 соток), 1 эт.
Брестская область, д. Новоселки, Тенистая
Продается дом в аг. Новосёлки с хорошей инфраструктурой, в 19 км от г. Барановичи (12 км от г. Ляховичи). Дом общей площадью по СНБ – 63.5 м2, общая жилая - 59.1 м2, жилая - 37.7 м2 , просторная кухня – 12,7 м2, погреб,…
626
Дата обновления: 12.03.2026
19 180 руб
6 500$
320 руб/м²
110$/м²
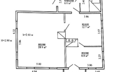
2-комнатная, 75.2/34.9/12.8 м2, (25 соток), 1972 г.
Брестская область, аг. Русиновичи, Шоссейная
Продаётся жилой дом 1972 г.п. в аг. Русиновичи, ул. Шоссейная (Ляховичский р-н), 25 км от Баранович и 9 км от Ляхович. Площадь общая по СНБ – 75.2 м2, общая жилая - 47.7 м2 , жилая – 34.9 м2, кухня – 12.8 м2. - Материал…
2166
Дата обновления: 28.02.2026
41 300 руб
13 999$
550 руб/м²
186$/м²
4-комнатная, 99/73.9/- м2, (14.9 соток), 1998 г.
Брестская область, г. Ляховичи, Спокойный
В продаже дом мансардного типа в г. Ляховичи на берегу озера (старица реки Ведьма). Тихое, живописное место для отдыха и круглогодичного проживания с собственным водоемом! *Дом площадью по СНБ 1-го жилого этажа – 102,6 …
703
Дата обновления: 16.01.2026
221 260 руб
75 000$
2 230 руб/м²
758$/м²
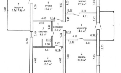
3-комнатная, 93.9/49.8/16.2 м2, (15 соток), 2023 г.
Брестская область, г. Ляховичи
Продаётся современный жилой дом 2023 года постройки в г. Ляховичи по адресу: пер. Пугачёва. Дом блочный, утеплен пенопластом 5 см, сделан фасад, крыша – металлочерепица. Общая площадь дома по СНБ – 99,2 м², общая жилая –…
556
Дата обновления: 05.01.2026
309 760 руб
105 000$
3 300 руб/м²
1 118$/м²
4-комнатная, 185.2/120.7/- м2, (13 соток), 2010 г.
Брестская область, г. Ляховичи, Северный
В продаже роскошный, современный дом с баней и гаражом в г. Ляховичи! Дом полностью готов для комфортного проживания и отдыха! В стоимость входит вся мебель и техника! Дом, площадью (СНБ) – 198,8 м²., общая площадь – 1…
793
Дата обновления: 13.11.2025
383 510 руб
130 000$
2 070 руб/м²
702$/м²
0-комнатная, 55.8/41.8/6.8 м2, (25 соток)
Брестская область, д. Кривошин, Здановича ул., 25
Продается жилой дом в деревне Кривошин, Ляховичского р-на. Дом находится в живописном месте рядом с лесом, 15 минут до водохранилища и реки. Прекрасное место, как для постоянного проживания, так и для дачного домика. До…
214
Дата обновления: 24.10.2025
23 010 руб
7 800$
410 руб/м²
140$/м²
0-комнатная, 91/44.7/8.4 м2, (0 соток)
Брестская область, аг. Жеребковичи, Минская ул., 5
Продаётся 2-х этажный кирпичный дом со статусом квартиры, по адресу Ляховичский район, аг. Жеребковичи, ул. Минская ( в 30км от города Барановичи). Дом полностью готов к проживанию. Канализация, отопление, водоснабжение …
191
Дата обновления: 06.08.2025
61 950 руб
21 000$
680 руб/м²
231$/м²
1-комнатная, 28.8/18.9/- м2, (25 соток), 1 эт., 1960 г.
Брестская область, д. Подлесье, ул. Первомайская, д.89
Участок, дом под агро усадьбу. Рельеф участка полностью выравнен в 2023 г и засеян газоном. Участок имеет новое ограждение (каркас прогрунтован и покрашен) под металлопрофильный забор. Ворота металлические распашные; кал…
1237
17 100 руб
5 800$
590 руб/м²
201$/м²
1-комнатная, 80/70/- м2, (25 соток), 1 эт., 1970 г.
Брестская область, д. Миничи, Центральная 15
Дом с участком, рядом в 50 метрах река, огромное рыбное Миничское водохранилище, грибной лес. Очень удачное место для отдыха, обустройства усадьбы, садоводства. Чистейший воздух и в то же время не слишком далеко от город…
2162
11 500 руб
3 900$
140 руб/м²
49$/м²
2-комнатная, 60/30/- м2, (15 соток), 1 эт., 1978 г.
Брестская область, д. Кулики, Колхозная 14
Продаю дом на вывоз в деревне Кулики. Галина.
3798
3 500 руб
1 185$
60 руб/м²
20$/м²
2-комнатная, 60/45/- м2, (20 соток), 1 эт., 2018 г.
Брестская область, д. Литва, Дзержинского
до центра 0.3 км / 4 мин
Загородный дом продаётся с мебелью, отличное решение для молодой семьи, расположен в 4 км. от города Барановичи . На участке имеются хоз.постройки (гараж и помещение для хранения хоз. инвентаря) , а также плодовые деревь…
4883
182 830 руб
62 000$
3 050 руб/м²
1 033$/м²
3-комнатная, 62.8/32.8/14.6 м2, (60 соток), 1 эт.
Брестская область, д. Мыслобож, Новая
Продается дача в живописном месте ! Для любителей поохотиться, порыбачить и просто приятно провести время наедине с природой – это идеальное место! Большая территория 60 соток полностью со всех сторон огорожена бетонн…
3608
41 280 руб
14 000$
660 руб/м²
223$/м²