Продажа домов в деревне в Борках

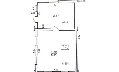
0-комнатная, 53.9/33.2/- м2, (16.38 соток), 1 эт.
Минская область, д. Борки, Набережная ул.
Деревянный жилой дом 1990 года постройки, 25 км от Борисова. Деревянный дом 1990 года постройки. Дом обложен кирпичом. Общая площадь дома 53,9 м2. Жилая площадь 33.2 м2. Жилой дом в хорошем состояние. Деревянное перекры…
587
Дата обновления: 09.02.2026
22 660 руб
7 900$
420 руб/м²
147$/м²
0-комнатная, 63/55/- м2, (20 соток), 1 эт.
Минская область, д. Борки, Первомайская ул.
Продаётся уютный дом, расположенный в живописной деревне Борки. Участок площадью 20 соток находится в частной собственности, что обеспечивает вам полную свободу в использовании и обустройстве территории. Удобный подъезд…
164
Дата обновления: 28.11.2025
38 150 руб
13 300$
610 руб/м²
211$/м²