Продажа домов в деревне в Борисовском районе

1-комнатная, 80.3/27.1/- м2, (16 соток), 1 эт., 2022 г.
Минская область, д. Гора, Луговая
Продается дом 2022 года постройки в экологически чистом районе в пригороде Борисова. Удобное расположение дома (до города – 6 км, до трассы М1 – 2 км,). От дома до Минской кольцевой дороги – всего 80 км по скоростной …
2783
Дата обновления: 05.02.2026
128 490 руб
44 900$
1 600 руб/м²
559$/м²
0-комнатная, 49.4/31.9/3.4 м2, (17.2 соток), 2 эт., 1991 г.
Минская область, д. Яново, Криничная ул.
Уютная дача с садом и баней в живописном районе ️Эта дача идеально подходит для тех, кто хочет наслаждаться природой, отдыхать от городской суеты, а также для тех, кто ищет земельный участок с возможностью дальнейшего ра…
55
Дата обновления: 02.02.2026
48 360 руб
16 900$
980 руб/м²
342$/м²
0-комнатная, 63/-/- м2, (6 соток), 2 эт., 2025 г.
Минская область, Патриот-Березка
Продается уютный дачный домик на ровном земельном участке! Ищете идеальное место для отдыха на природе или постоянного проживания? У нас есть замечательное предложение — ровный, прямоугольной формы земельный участок …
93
Дата обновления: 21.01.2026
62 670 руб
21 900$
990 руб/м²
348$/м²
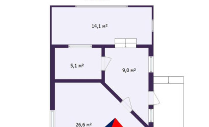
0-комнатная, 87.8/71.5/9 м2, (6.2 соток), 2 эт., 1993 г.
Минская область, д. Верески
Крепкая кирпичная дача с баней и садом ️Отличная дача недалеко от г. Жодина и Борисова! -Кирпичная, двухуровневая дача, площадью 87,8 м2 с прочной крышей из металлочерепицы. -Отопление печное, как в лучших традициях заго…
93
Дата обновления: 19.01.2026
48 360 руб
16 900$
550 руб/м²
192$/м²
0-комнатная, 214.3/88.4/18.2 м2, (6.48 соток), 3 эт., 1999 г.
Минская область, г. Борисов, Песчаная ул., 43
Предлагаем вашему вниманию уютный 2-ух этажный жилой дом в городе Борисов, Минский район, Московское направление. О доме: Просторный жилой дом по улице Песчаная находится в центре города Борисов. Общая площадь по СНБ 214…
887
Дата обновления: 15.01.2026
386 320 руб
135 000$
1 800 руб/м²
630$/м²
1-комнатная, 78.4/42.4/10 м2, (8.85 соток), 2 эт., 2022 г.
Минская область, г. Борисов, Т.В. Бирич
Продается двухэтажный дом. Электричество проведено и подключено. Просторный участок квадратной формы. Установлены хорошие окна. Стены и потолок второго этажа уже сделаны. Готовы показать в удобное время. Звоните!
293
Дата обновления: 10.01.2026
94 430 руб
33 000$
1 200 руб/м²
421$/м²
2-комнатная, 44.56/20.97/- м2, (12 соток), 1 эт., 1995 г.
Минская область, г. Борисов, Рабочая, 17А
В продаже половина бревенчатого дома по адресу: г. Борисов, ул. Рабочая, 17А. Общая площадь половины дома составляет 44.56 м², в доме две комнаты. Состояние жилое. В доме проведены все удобства: рядом вода, электричество…
323
Дата обновления: 29.12.2025
56 950 руб
19 900$
1 280 руб/м²
447$/м²
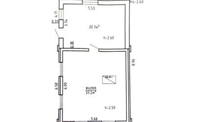
0-комнатная, 73.3/51.1/9.3 м2, (7.08 соток), 1 эт.
Минская область, г. Борисов, Залинейный 4-й пер.
Продается уютный частый дом в благоустроенном Залинейном районе, г. Борисов, Московское направление. Кирпичный дом 1977 года постройки. Общая площадь 73,3 м2. В доме 4 комнаты, 2 проходные и две изолированные. Просторн…
195
Дата обновления: 19.12.2025
135 930 руб
47 500$
1 850 руб/м²
648$/м²
0-комнатная, 63/55/- м2, (20 соток), 1 эт.
Минская область, д. Борки, Первомайская ул.
Продаётся уютный дом, расположенный в живописной деревне Борки. Участок площадью 20 соток находится в частной собственности, что обеспечивает вам полную свободу в использовании и обустройстве территории. Удобный подъезд…
139
Дата обновления: 28.11.2025
38 060 руб
13 300$
600 руб/м²
211$/м²
0-комнатная, 53.9/33.2/- м2, (16.38 соток), 1 эт.
Минская область, д. Борки, Набережная ул.
Деревянный жилой дом 1990 года постройки, 25 км от Борисова. Деревянный дом 1990 года постройки. Дом обложен кирпичом. Общая площадь дома 53,9 м2. Жилая площадь 33.2 м2. Жилой дом в хорошем состояние. Деревянное перекры…
494
Дата обновления: 28.10.2025
22 610 руб
7 900$
420 руб/м²
147$/м²
2-комнатная, 52/37/10 м2, (25 соток), 1 эт., 2015 г.
Минская область, д. Шобики, 1А
Продам дом в деревне. Дом для отдыха, для жизни, для рыбалки. Отличное место для тех кто увлекается сбором грибов и ягод. Небольшой аккуратный домик годный, как для круглогодичного проживания, так и для дачи. Домик с п…
662
Дата обновления: 27.09.2025
34 340 руб
12 000$
660 руб/м²
231$/м²
6-комнатная, 200/180/12 м2, (9 соток), 2 эт., 1972 г.
Минская область, д. Пески, Центральная, 8А
1-я береговая линия, р. Березина, на участке 9 соток имеются 2 строения, требуют кап.ремонт либо под снос.
646
Дата обновления: 24.06.2025
75 000 руб
26 209$
380 руб/м²
131$/м²
3-комнатная, 65/59/17 м2, (8.5 соток), 1 эт., 2008 г.
Минская область, г. Борисов, ул. Озерная, д. 39
Дом полностью готов к круглогодичному проживанию, все удобства в доме, унитаз, душевая кабина, горячая вода, тёплые полы, сигнализация с выездом Департамента. 10 мин пешком до станции електропоездов \\\\\\\\\\\\\\\\\\\\\…
4719
Дата обновления: 26.03.2025
64 390 руб
22 500$
990 руб/м²
346$/м²
2-комнатная, 42.3/22.1/12.4 м2, (13 соток), 1 эт., 1990 г.
Минская область, д. Гора, Центральная 105
Продается дачный дом в деревне Гора. Удобный подъезд к дому, асфальтированная улица. Через два дома продуктовый магазин. Печное отопление, электричество в доме. Большой ровный участок 12,99 сотки. Есть видео скину если н…
1715
44 230 руб
15 000$
1 050 руб/м²
355$/м²
2-комнатная, 55.8/43.9/- м2, (7 соток), 1 эт.
Минская область, д. Замужанье, Железнодорожная
Продается дом в д.Замужанье. Отличное транспортное сообщение. Трасса М1. ЖД Минск-Орша. 5-7 минут от станции. Возможно круглогодичное проживание. Печка, газ, свет. Вода в колодце или крыничка. Рядом агрогородок Лошница, …
1899
20 640 руб
7 000$
370 руб/м²
125$/м²
4-комнатная, 84.3/41.1/8.1 м2, (19.5 соток), 1 эт., 1952 г.
Минская область, аг. Зембин, 8 марта, 5
Дом жилой 84,3м2 аг.Зембин, Борисовский р-н Дом располагается на участке 19.5 соток. Бревенчатый дом, крыша – шифер, высота потолков 2.72, отличный ремонт внутри , снаружи тоже были потрачены не маленькие финансовые сред…
2047
70 480 руб
23 900$
840 руб/м²
284$/м²
5-комнатная, 170/150/16 м2, (10 соток), 2 эт., 2019 г.
Минская область, г. Борисов, Харчевского 16
Продается дом 2ух этажный, законсервированное строение по ул. Харченко д. 16, район Север 3 г. Борисов. Внутренняя полезная площадь 150 м. кв. Участок 10 соток, ровный, покупался на аукционе! Лучшее расположение для жизн…
1884
200 520 руб
68 000$
1 180 руб/м²
400$/м²
1-комнатная, 56.9/25.5/- м2, (20 соток), 1 эт., 1980 г.
Минская область, д. Бытча, Гагарина
Участок 20 соток+22 сотки в ЛПХ рядом.Дом находится на окраине деревни.Дом требует ремонта.До дома асфальтированная дорога.Рядом лес, д.Дубени.
3093
17 690 руб
6 000$
310 руб/м²
105$/м²
3-комнатная, 58/45/- м2, (7.1 соток), 1 эт., 1969 г.
Минская область, г. Борисов, Парковая 53
Дом в г.Борисове, на ул. Парковой, д.53. Расположение в центре города. Продает собственник.без агентства, никто не прописан. Печное отопление. Два входа отдельных. В доме уютно
3187
75 190 руб
25 500$
1 300 руб/м²
440$/м²
3-комнатная, 42/30/5 м2, (2 соток), 1 эт., 1960 г.
Минская область, г. Борисов, связная
Продается трехкомнатная квартира в блокированном доме в центре города. Паровое отопление, центральный водопровод, участок земли. Есть сарай для хозинвентаря. Звоните, на смс сообщения не отвечаю. Агентам, просьба звонкам…
4877
41 280 руб
14 000$
980 руб/м²
333$/м²
3-комнатная, 64/56/4 м2, (25 соток), 1 эт., 1975 г.
Минская область, д. Дроздино, Центральная 1
Продам дом на вывоз под сруб.
5668
4 420 руб
1 500$
70 руб/м²
23$/м²