Продажа дач в Болотчицах

0-комнатная, 76.3/47/9.9 м2, (25 соток), 1 эт.
Минская область, д. Болотчицы, Старое Село ул.
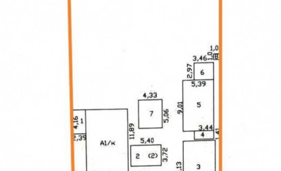
Продаётся​ просторный жилой дом в деревне Болотчицы Слуцкого района, 19 км от Слуцка и 22 км от Солигорска.Дом 1968 гп, материал стен - кирпич, крыша - шифер, пол - доска, отопление - печное: русская печь с лежанкой на к…
1470
Дата обновления: 11.04.2026
29 550 руб
≈10 500$
390 руб/м²
138$/м²