Аренда офиса в Цнянке

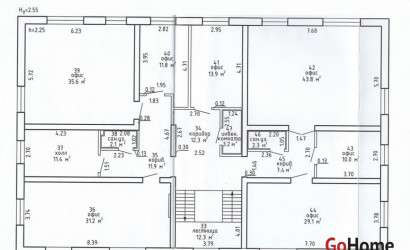
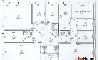
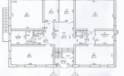
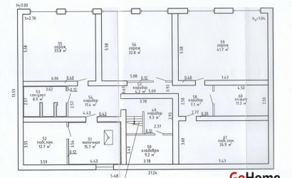
Помещений: 1, 1700 м2, Этаж 1 из 2, 2017 г.
д. Цнянка, Дзержинского
Предлагаем в аренду современный комплекс административного торгово-сервисного центра. Два этажа административного здания площадью 1700 м.кв. и при необходимости здание торгово-сервисного центра (производство, сервис) пл…
1459
35 122,0 руб
≈10 200€
20,7 руб/м²
6€/м²