Купить дом, Слоним, Кленовая ул., 10 соток

Просмотры: 13 всего, 14 за месяц, 14 за неделю
  • Площадь участка:
    10 соток
  • Площадь общая:
    230.3 м2
  • Площадь жилая:
    132.6 м2
  • Площадь кухни:
    19.9 м2
  • Этажность:
    2
  • Год постройки:
    2016

163 480 руб
или ≈58 000$
Купить в лизинг
Описание

Продается комфортный блочный с черновой отделкой и отличной планировкой дом 2016г. постройки. Хорошее месторасположение по ул. Кленовая г. Слоним, рядом с лесным массивом.
Дом с мансардным и цокольным этажом. В доме 6 комнат, два санузла. Общей площадью 230,3 м2, жилая 132,6 м2, кухня 19,9 м2.
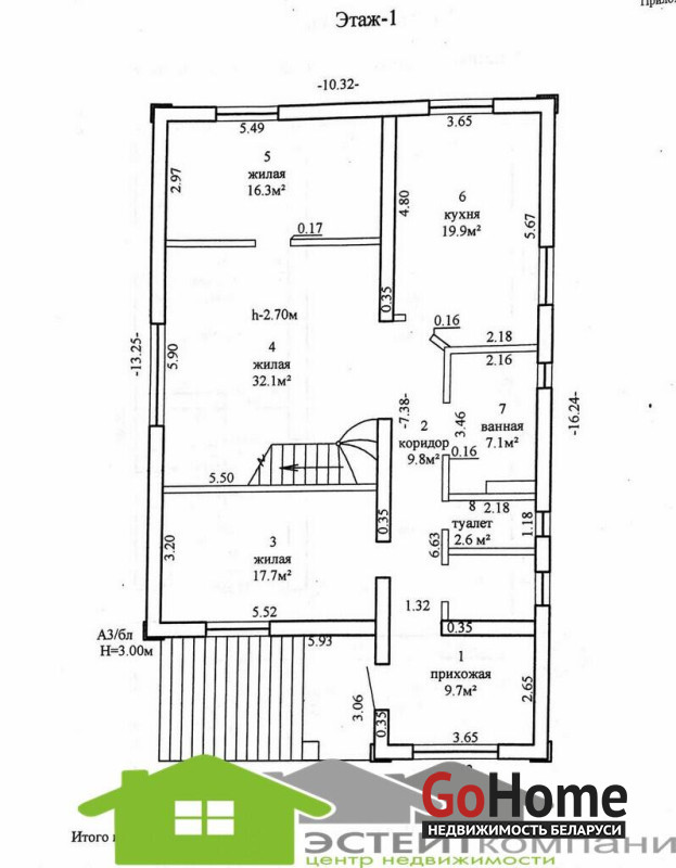
Планировка на первом этаже дома: большой холл с деревянной лестницей на мансардный этаж, две комнаты, просторная кухня, раздельный санузел, прихожая, гардеробная.). Высота потолков -2,7м
На втором (мансардном) этаже: совмещенный санузел, три комнаты (33,4 м2; 17,7м2; 15,4м2) и помещения для хранения (возможно спланировать гардеробные).
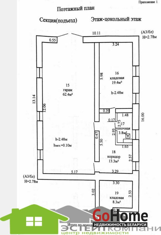
В цокольном этаже расположены: гараж, топочная, два кладовых помещения.
В доме установлены стеклопакеты. В цокольном этаже установлены двери ПВХ. Входные дверь - металлическая. Пол на первом и цокольном- стяжка, на мансардном-доска. В прихожей и санузле теплый пол. Вода, газ, канализация центральные. Отопление -двухконтурный газовый котёл в цокольном этаже. Дом отапливается. Кровля -металлочерепица. Дом готов к внутренним отделкам.
Участок 10 сотки, прямоугольной формы. На участке имеется блочный сарай.
Дом расположен в спокойном и тихом месте. В шаговой доступности остановка городского транспорта. До школы и детского садика одна остановка. Рядом с частным сектром лес, озеро, магазин «Копеечка», строительный магазин. До центра города три остановки на общ.транспорте или 20 мин. пешком, до аг. Жировичи 10 мин на авто.
Этот дом — отличный выбор для тех, кто ищет просторное жилье в доступном районе от центра города, с современными коммуникациями.
Звоните, чтобы договориться о просмотре!
ООО "Эстейт Компани" - единственное агентство в г. Слоним на основании: лицензии Министерства юстиции Республики Беларусь № 02240/394 от 26.02.2020г. УНП 693141368 Наш адрес: г. Слоним, пл. Ленина 11. Договор на оказание риэлтерских услуг №3/9 от 15.04.2026 г.
Поможем продать вашу недвижимость для приобретения данного объекта. Сопровождаем покупку по кредиту.

Получай предложения от собственников первым!
Вы нашли объявление на GoHome.by (ГоуХоум.бай)

УНП 693141368
Лицензия МЮ РБ №02240/394 от 26.02.2020

  • Номер объявления:
    804410
  • Дата обновления:
    25.04.2026
  • Площадь участка:
    10 соток
  • Площадь общая:
    230.3 м2
  • Площадь жилая:
    132.6 м2
  • Площадь кухни:
    19.9 м2
  • Год постройки:
    2016
  • Договор:
    № 3/9 от 2026-04-15
Распечатать
Пожаловаться на объявление
Вам может быть интересно
4-комнатная, 84/54/10.6 м2, (6 соток), 1 эт., 1975 г.
Гродненская область, г. Слоним, Войкова
Продается дом в отличном расположении по ул. Войкова. В доме 4 комнаты. Общей площадью 84 м2, жилая 54 м2, кухня 10,65 м2. На участке имеется гараж, хоз. постройки, так же под домом есть погреб. В шаговой доступности с д…
14036
Дата обновления: 25.04.2026
70 470 руб
≈25 000$
840 руб/м²
298$/м²
0-комнатная, 136/73.3/13.7 м2, (10 соток), 2 эт., 1997 г.
Гродненская область, г. Слоним, Вольный пер.
Продается многоуровневый, кирпичный дом по переулку Вольному, общей площадью 136.0 кв.м.. Дом удобный, светлый, просторный и компактный. Под домом расположен гараж с проходом в дом, русская баня, теннисная и игровая комн…
725
Дата обновления: 25.04.2026
181 800 руб
≈64 500$
1 340 руб/м²
474$/м²
0-комнатная, 99/68/6.76 м2, (12.76 соток)
Гродненская область, г. Слоним, Мелиораторов пер.
Продается дом литовского проекта из блока, отштукатурен, кровля- шифер. В доме 4 не проходные комнаты. Общая площадь 99 м2, жилая 68м2, кухня 6.76м2. Окна- деревянные. Полы в комнатах –ламинат, в зале-паркетная доска, пр…
718
Дата обновления: 22.04.2026
166 300 руб
≈59 000$
1 680 руб/м²
596$/м²
0-комнатная, 67.8/57.2/- м2, (7.29 соток)
Гродненская область, г. Слоним, Мирошника ул., 18
Продается жилой блочный дом в частном секторе по ул. Мирошника. Дом расположен в тихом, спокойном месте, на ровном участке квадратной форммы, площадью 7,29 сотки. В доме общей площадью 67,8 м2 имеется четыре жилые комнат…
150
Дата обновления: 17.04.2026
61 450 руб
≈21 800$
910 руб/м²
322$/м²
5-комнатная, 90/80/- м2, (20 соток), 1 эт., 1980 г.
Гродненская область, г. Слоним, Деревня Збочно, д. 28
Продается дом, 5 комнат, 20 соток в деревне Збочно (Слонимский р-н, Гродненская область). Дом собран из добротного сруба, капитального ремонта не требуется. Отопление печное, во дворе колодец. На участке есть сарай — дл…
537
Дата обновления: 10.04.2026
14 090 руб
≈5 000$
160 руб/м²
56$/м²
0-комнатная, 121.1/67.7/10.2 м2, (18 соток), 1 эт., 1998 г.
Гродненская область, г. Слоним, Заречная ул., 49
В живописном месте продается привлекающий к себе дом с 2-мя отдельными входами.В одной части дома 4 комнаты с ремонтом, во второй части 3 комнаты, есть возможность объедения половин. Подключены все коммуникации, канализ…
870
Дата обновления: 10.04.2026
123 740 руб
≈43 900$
1 020 руб/м²
363$/м²
0-комнатная, 99/78/7 м2, (15 соток)
Гродненская область, г. Слоним, Минский Тракт ул.
Продаётся уютный, полностью готовый к проживанию дом -98,6 кв.м. по ул. Минский тр-т. В доме 5 комнат, которые полностью укомплектованы качественной импортной мебелью (Финский кожаный диван, немецкая спальная, чешская лю…
408
Дата обновления: 31.03.2026
166 300 руб
≈59 000$
1 680 руб/м²
596$/м²
0-комнатная, 132.9/84.6/10.6 м2, (13.69 соток), 2 эт., 2000 г.
Гродненская область, г. Слоним
Продается 2-х этажный дом в Слониме по улице Максима Горького. Общая площадь дома составляет- 132,9 м2, жилая- 84,6 м2. Отлично подойдёт для проживания дружной семьи, предпочитающей уют и свободу. В доме сделан хороший р…
716
Дата обновления: 23.03.2026
128 250 руб
≈45 500$
960 руб/м²
342$/м²
0-комнатная, 65.3/47.9/- м2, (7.11 соток)
Гродненская область, г. Слоним, Космонавтов ул., 45
Продаётся дом с мансардой по ул.Космонавтов. Общая площадь -65.3 кв.м., жилая 47.9, кухней-12.0. Год постройки 1961, реконструкция в 2025г. В доме – 4 уютных комнаты. Санузел- совмещенный. Высота потолков-2,95. По желан…
475
Дата обновления: 20.03.2026
67 360 руб
≈23 900$
1 030 руб/м²
366$/м²
0-комнатная, 153.1/153.1/- м2, (3.47 соток)
Гродненская область, г. Слоним, Фабричная ул., 22
Продается административно- торговое помещение площадью 153.1кв.м. Оно представляет отдельно стоящее одноэтажное здание напротив Картонно-бумажного завода Альбертин. Стены-кирпич, есть все коммуникации. Рядом находится о…
788
Дата обновления: 16.03.2026
84 560 руб
≈30 000$
550 руб/м²
196$/м²