Купить дом в деревне, Стрелец-2014, 10 соток

Просмотры: 9 всего, 10 за месяц, 10 за неделю
  • Площадь участка:
    10 соток
  • Площадь общая:
    147.9 м2
  • Площадь жилая:
    84 м2
  • Площадь кухни:
    30 м2
  • Этажность:
    2
  • Год постройки:
    2024

236 560 руб
или 82 900$
Описание

Уютный загородный дом с участком в 10 соток недалеко от Минска
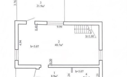
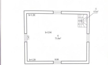
️ Прекрасный двухэтажный дом общей площадью 147,9 кв.м., расположенный на живописном участке в 10 соток в 18 км от МКАД. Дом введен в эксплуатацию, имеется тех паспорт и свидетельство о регистрации.
- Дом построен из высококачественного газосиликатного блока толщиной 30 см с плотностью D500 от известного завода "Забудова". Крепкий монолитный фундамент обеспечивает надежность и долговечность дома. Перекрытия между этажами выполнены из мощных балок высотой 250 мм. Кладка дома усилена двумя железобетонными поясами. Установлены двухкамерные окна ПВХ, профиль salamander, с ламинацией. В дом заведено электричество, разведена канализация, залит черновой пол первого этажа, сделана лестница на второй этаж( массив сосны) и черновой пол второго этажа. В ближайшее время будет отделан фасад с утеплением.
- Дом построен профессиональной бригадой строителей. Фундамент был залит еще осенью, а сам дом возведен в течение весеннего сезона. Размер дома 10,5*8 м.
- Планировка внутри дома максимально свободная, что позволяет реализовать любые дизайнерские решения. Здесь есть место для 3-4 просторных спальных комнат, большой гостиной площадью 30-50 кв.м., двух удобных санузлов с окнами, а также светлой и просторной кухни 30 кв.м. Дом также оборудован уютной террасой размером 4x6 м.
- Угловой участок 10 соток с ровным рельефом, что создает идеальные условия для строительства и обустройства территории.
- В СТ широкие дороги и обочины, территория полностью огорожена и оборудована двумя автоматическими въездными пунктами, что обеспечивает надежную безопасность для жителей. Зимой в товариществе регулярно очищают дороги, а для этих целей у них есть собственный трактор-экскаватор - уникальная особенность среди всех подобных товариществ в Беларуси.
- Садовое товарищество расположено в живописном, тихом и экологически чистом месте, граничащем с лесным массивом. При этом до МКАД всего 18 км, что позволяет без проблем добираться до столицы. Активная застройка поселка, наличие газа, круглогодичного водоснабжения и электричества 380В по 10 кВт на участок делают этот дом идеальным вариантом для загородной жизни.
️ Если вы мечтаете о комфортном и современном доме с продуманной планировкой и развитой инфраструктурой, расположенном в экологически чистом районе в непосредственной близости от Минска - этот объект станет для вас идеальным решением. Свяжитесь с нами уже сегодня, чтобы забронировать просмотр!
️ Мы с радостью покажем вам участок и сделаем вас его счастливыми хозяевами!
А также если вы хотите:
- выгодно продать
- срочно выкупить
- найти лучшую квартиру
- заработать на инвестициях в недвижимость
- сделать дизайнерский ремонт
Тогда «Моя 7Я» решит это, как для своей семьи: с любовью, заботой и желаемым результатом!
Агентство недвижимости ООО «Центр международной недвижимости Моя 7Я»УНП 193750826Лицензия: № 02240/484 выдана МЮ РБ 18.05.2024 г.Страховое свидетельство БР 0004694

Получай предложения от собственников первым!
Вы нашли объявление на GoHome.by (ГоуХоум.бай)

УНП 193750826
Лицензия № 02240/484 выдана МЮ РБ 18.05.2024 г.

  • Номер объявления:
    797136
  • Дата обновления:
    02.03.2026
  • Площадь участка:
    10 соток
  • Площадь общая:
    147.9 м2
  • Площадь жилая:
    84 м2
  • Площадь кухни:
    30 м2
  • Год постройки:
    2024
  • Договор:
    № 749/1 от 2024-12-03
Распечатать
Пожаловаться на объявление