Продажа помещения, Лунно, Комсомольская, 3, 186.7 кв.м.

Просмотры: 242 всего, 204 за месяц, 18 за неделю
  • Помещений:
    2
  • Площадь:
    186.7 2
  • Этаж:
    1 из 1

401,45 руб/м2
или 133$/м2
74 950,72 руб
или 24 831$
Описание

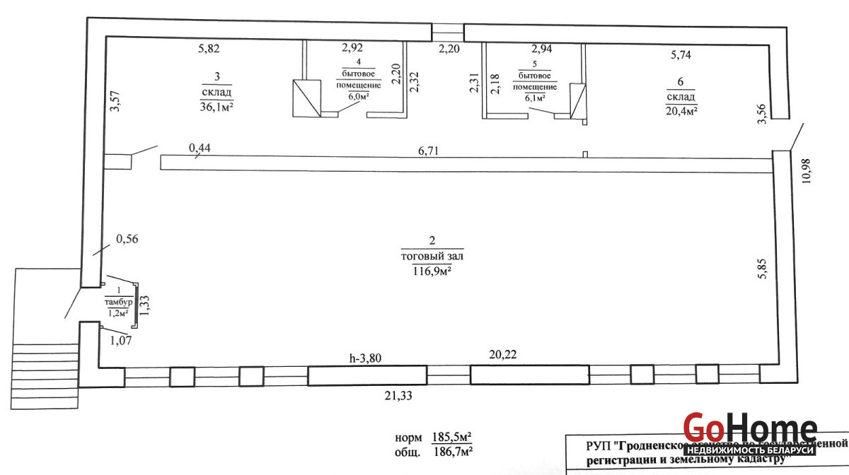
Продается капитальное строение с земельным участком а.г. Лунно ул.Комсомольская дом 3 расположенный на участке площадью 9,09 соток (Земельный участок на праве постоянного пользования).
Кирпичное строение площадью 186.7 м2, нормируемая 185.5 м2 .
Коммуникации :новая электрика, отопление установлен твёрдотопливный котел.
Высота помещения 3.80 м. На участке есть такие строения как два гаража, два сарая.
Удобное месторасположение для бизнеса в центре Лунно.
Поможем продать Вашу недвижимость для покупки этого дома!
За подробной информацией просьба обращаться по телефону и пишите Viber, Telegram. Возможен торг!

Вы нашли объявление на GoHome.by (ГоуХоум.бай)

УНП 101214439
Лицензия 02240/8 (риэлтерские услуги) от 17.02.2005г. МЮ РБ

  • Номер объявления:
    793136
  • Дата обновления:
    12.03.2026
  • Область:
    Гродненская область
  • Район Беларуси:
    Мостовский район
  • Населенный пункт:
    Лунно
  • Улица, дом:
    Комсомольская, 3
  • Тип объекта:
  • Помещений:
    2
  • Площадь:
    186.7 м2
  • Этаж:
    1 из 1
  • Санузел:
    Нет
  • Телефон:
    Нет
  • Договор:
    № 3/17 от 10.04.2025
Распечатать
Пожаловаться на объявление