Аренда офиса, Минск, Победителей просп., 7/А, 695.1 кв.м.

Просмотры: 273 всего, 46 за месяц, 9 за неделю
  • Площадь:
    695.1 2
  • Год постройки:
    2014

74,39 руб/м2
или 22€/м2
51 708,49 руб
или 15 292€
Описание

Предлагаем в аренду уникальные офисные помещения в Бизнес-центре «Royal Plaza»,расположенный в центре Минска, на пр-те Победителей 7А, на последних этажах здания. Небоскреб входит в 3-ку самых высоких зданий Республики Беларусь!
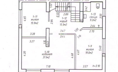
• Офисное помещение 2-х уровневое, общая площадь 695,1 м2:
30-ый этаж – 257.5 кв.м.
29-ый этаж – 437.6 кв.м.
• Офисные помещения формата Open Space.
• Панорамное остекление и шикарный вид на центр города из любой точки офисного пространства
• Выделена переговорная комната
• Кухонная зона с встроенной техникой
• Проведены все необходимые инженерные и коммуникационные системы, спринклерные системы пожаротушения, система приточно-вытяжной вентиляции с рекуперацией, собственная система кондиционирования, компьютерные сети. Оборудованы санузлы
• Панорамный лифт, 6 бесшумных лифтов OTIS, 2 грузовых лифта
• Рядом расположены ТЦ «Galleria», различные кафе, рестораны, столовые. В самом Бизнес-центре на 1-м этаже расположен кофе-поинт, на 3-м круглосуточный тренажерный зал, ресторан The View на 28-м этаже.
• Гостевая парковка и крытый паркинг вблизи Бизнес-центра. Станция метро «Немига» в пешей доступности
• Уникальный 2-х этажный офис в самом центре Минска, на последних этажах престижного Бизнес-Центра «Royal Plaza». Практически вершина Минска (небоскреб входит в 3-ку самых высоких зданий в Республике Беларусь).
Стоимость аренды указана с учетом НДС.
Арендатор не оплачивает услуги агентства недвижимости!
Торг уместен! Готовы рассмотреть Ваши предложения!
Звоните!
Договор №278/1а от 07.10.2025
ООО Агентство недвижимости «Метриум»
УНП 193581536
Лицензия № 02240/425 выдана Министерством Юстиции РБ 27.08.2021

Вы нашли объявление на GoHome.by (ГоуХоум.бай)
  • Номер объявления:
    775858
  • Дата обновления:
    08.10.2025
  • Область:
    Минская область
  • Район Беларуси:
    Минский район
  • Населенный пункт:
  • Улица, дом:
    Победителей просп., 7/А
  • Станция метро:
    Немига
  • Тип объекта:
  • Площадь:
    695.1 м2
  • Год постройки:
    2014
  • Санузел:
    Нет
  • Телефон:
    Нет
  • Договор:
    № 278/1а от 2025-10-07
Распечатать
Пожаловаться на объявление
Вам может быть интересно
Помещений: 2, 25 м2, Этаж 1 из 1, 2011 г.
г. Минск, Немига, 3/А
Центральный район
Немига
Сдается помещение 25,1кв.м. в центре г. Минска ул. Немига, 3А. Располагается во дворе улиц Комсомольская и Немига, отдельный вход, первый этаж, пол - плитка, стены выкрашены в белый цвет, есть три окна ПВХ - возможно раз…
286
Дата обновления: 05.12.2025
1 230,8 руб
425$
49,2 руб/м²
17$/м²
Помещений: 0, от 150 до 351.5 м2, 2024 г.
г. Минск, Ковалевской пер., 42/В
Московский район
Михалово
Аренда современного офисного пространства Офис, который работает на ваш имидж и эффективность.На 3-ем этаже отдельно стоящего здания — просторное помещение 351,5 м2 формата open space, готовое к въезду. Почему этот офис…
927
Дата обновления: 05.12.2025
от 4 057,5 руб
от 1 200€
27,1 руб/м²
8€/м²
Помещений: 0, от 18.5 до 49 м2, 2009 г.
г. Минск, Филимонова ул., 15
Партизанский район
Аренда помещения под офис, ул. Филимонова, 15 Помещения площадью 18,5 и 49 кв.м., располагаются по адресу: ул. Филимонова, 15. Помещения с качественным ремонтом полностью готовы под офисную деятельность. Подведены все не…
464
Дата обновления: 05.12.2025
от 481,0 руб
от 167€
26,0 руб/м²
9€/м²
Помещений: 4, от 24.5 до 55.6 м2, Этаж 1 из 3, 2015 г.
г. Минск, ул. Марьевская, д. 5А
Партизанский район
Победы пл.
Отдельно стоящее здание в центре недалеко от станции метро площадь Победы, отличное транспортное сообщение, хорошие подъездные пути, парковка, современный ремонт, мебель, кондиционер, просторный санузел на каждом этаже, …
2517
Дата обновления: 05.12.2025
от 567,7 руб
от 196$
23,2 руб/м²
8$/м²
Помещений: 0, 47.2 м2, 2008 г.
г. Минск, Шафарнянская ул., 11
Первомайский район
Уручье
Сдается кабинет площадью 47,2 кв.м. на 4‑м этаже бизнес‑центра «Порт». · Формат open space - удобно для работы команды · Оснащение: мебель (столы, стулья, шкафы, тумбы), кондиционер · Светлое помещение с большими окна…
41
Дата обновления: 04.12.2025
1 915,4 руб
566€
40,6 руб/м²
12€/м²
Помещений: 3, 72 м2, Этаж 14 из 14, 2016 г.
г. Минск, Проспект Жукова,29
Московский район
Грушевка
Бизнес-центр «Красавiк» ‒ современный 14-этажный офисный комплекс с развитой инфраструктурой, современным дизайном и высокими технологиями. Свободная площадь: офисный блок S 72,3 м2, разделен на 3 отдельных офисных помещ…
4104
Дата обновления: 04.12.2025
2 921,8 руб
864€
40,6 руб/м²
12€/м²
Помещений: 2, от 27 до 34 м2, Этаж 1 из 2, 2004 г.
г. Минск, ул. Харьковская, д. 90
Фрунзенский район
Пушкинская
Офисные помещения в центре площадью 27,2 м2 и 34,6 м2 c отдельными входами и удобным транспортным подлъездом, расположены напротив остановки общественного транспорта «Харьковская» на пересечении проспекта Пушкина – ул. …
13343
Дата обновления: 04.12.2025
от 1 095,7 руб
от 324€
40,6 руб/м²
12€/м²
Помещений: 1, 27.5 м2, Этаж 6 из 6, 2005 г.
г. Минск, Некрасова, 114
Советский район
Якуба Коласа пл.
Сдается помещение 27,5кв.м. состоящий из двух кабинетов (офис) на 6-ом этаже БЦ Капитал ул. Некрасова,114 - класс B.  В наличии есть 5 кабинетов на выбор от 13,1 кв.м. до 27,5 кв.м.,  хороший ремонт, большие окна - стекл…
522
Дата обновления: 03.12.2025
637,2 руб
220$
23,2 руб/м²
8$/м²
Помещений: 1, от 32 до 80 м2, Этаж 1 из 14, 2014 г.
г. Минск, ул. Тимирязева, д. 72
Центральный район
Предлагаем светлое чистое просторное , с юр адресом на 1 этаже по ставке 10 евро с ндс в 14-и этажном Бизнес Центре «ДЕЛЬТА» по ул. Тимирязева, 72. Кабинетная планировка. Помещение 32,9, кв м. + 47,8 кв м , о…
4016
Дата обновления: 02.12.2025
от 1 081,9 руб
от 320€
33,8 руб/м²
10€/м²
Помещений: 0, 88.2 м2, 2008 г.
г. Минск, Шафарнянская ул., 11
Первомайский район
Уручье
Сдается кабинет площадью 88,2 кв.м. на 4‑м этаже бизнес‑центра «Порт». · Просторное помещение, разделенное раздвижными дверьми на две зоны · Окна выходят на восточную сторону, с видом на парк · Внутри установлены шкаф…
75
Дата обновления: 02.12.2025
3 579,2 руб
1 058€
40,6 руб/м²
12€/м²