Аренда торгового помещения, Минск, Московская ул., 22, 124.2 кв.м.

Просмотры: 359 всего, 17 за месяц, 4 за неделю
  • Площадь:
    124.2 2
  • Год постройки:
    2005

57,91 руб/м2
или 20$/м2
7 192,42 руб
или 2 484$
Описание

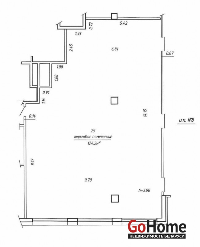
Сдаётся в аренду торговое помещение площадью 124,2 м2 на первом этаже здания БЦ "Террум",расположенного у входа станции метро "Институт культуры", по адресу ул. Московская 22.Стоимость аренды помещения 20 без НДС. Место расположения имеет высокий трафик и развитую инфраструктуру.
Помещение отлично подойдёт для быстрого питания, торговли, различного вида услуг и многих иных направлений бизнеса. Доступ на объект с 10 до 21
Больше объявлений тут: www.instagram.com/garant.arenda
Напишите нам в удобный для Вас мессенджер:
Viber | Telegram | WhatsApp
Ответим на Ваши вопросы, предоставим всю необходимую дополнительную информацию.
ООО «Артель Недвижимость»
УНП 193820882
Лицензия Министерства Юстиции №48250000081913 06.03.2025 г.
Договор №39/2а от 22.09.2025

Вы нашли объявление на GoHome.by (ГоуХоум.бай)

УНП 193609339
Лицензия Министерства Юстиции № 02240/436 от 03.02.2022 г.

  • Номер объявления:
    770213
  • Дата обновления:
    01.09.2025
  • Область:
    Минская область
  • Район Беларуси:
    Минский район
  • Населенный пункт:
  • Район:
    Московский район
  • Улица, дом:
    Московская ул., 22
  • Станция метро:
    Институт культуры
  • Тип объекта:
  • Площадь:
    124.2 м2
  • Год постройки:
    2005
  • Санузел:
    Нет
  • Телефон:
    Нет
  • Договор:
    № 39/2а от 2025-09-22
Распечатать
Пожаловаться на объявление
Вам может быть интересно
Помещений: 0, 307.3 м2, 2018 г.
г. Минск, Асаналиева ул., 44
Октябрьский район
Предлагаем Вашему вниманию многофункциональное помещение, расположенное в торговом центре по адресу: г. Минск, ул. Асаналиева, 44. Общие характеристики объекта: - располагается на 4/4 этаже; - комбинированная планировка …
350
Дата обновления: 05.12.2025
6 235,1 руб
1 844€
20,3 руб/м²
6€/м²
Помещений: 0, 61.6 м2, 2009 г.
г. Минск, Жуковского ул., 2
Октябрьский район
Вокзальная
Торговое помещение с отдельным входом с улицы находится на первом этаже многоэтажного жилого дома по адресу ул. Жуковского, 2. Напротив входа в 60 метрах остановка общественного транспорта, а так же в пешей доступности р…
12
Дата обновления: 04.12.2025
4 582,4 руб
1 355€
74,4 руб/м²
22€/м²
Помещений: 0, 75.43 м2
г. Минск, Немига ул., 12/А
Центральный район
Немига
Аренда торгового помещения 75.43 м2 — Минск, ул. Немига 12А Престижная локация в центре Минска — одна из самых высокопроходимых улиц города. Объект расположен в галерее «Элатио» на 2-м этаже Характеристики: Площадь 75.…
9
Дата обновления: 04.12.2025
3 315,9 руб
981€
44,0 руб/м²
13€/м²
Помещений: 0, 75.43 м2
г. Минск, Немига ул., 12/А
Центральный район
Немига
Престижная локация в центре Минска — одна из самых высокопроходимых улиц города. Объект расположен в галерее «Элатио» на 2-м этаже Характеристики: Площадь 75.43 м2 правильная прямоугольная форма Современный ремонт «з…
9
Дата обновления: 04.12.2025
3 315,9 руб
981€
44,0 руб/м²
13€/м²
Помещений: 0, 39 м2
г. Минск, Немига ул., 12/А
Центральный район
Немига
Аренда торгового помещения 39 м2 — Минск, ул. Немига 12А Престижная локация в центре Минска — одна из самых высокопроходимых улиц города. Объект расположен в галерее «Элатио» на 2-м этаже Характеристики: Площадь 39 м2 …
10
Дата обновления: 04.12.2025
1 714,4 руб
507€
44,0 руб/м²
13€/м²
Помещений: 0, 39 м2
г. Минск, Немига ул., 12/А
Центральный район
Немига
Аренда торгового помещения 39 м2 — Минск, ул. Немига 12А Престижная локация в центре Минска — одна из самых высокопроходимых улиц города. Объект расположен в галерее «Элатио» на 2-м этаже Характеристики: Площадь 39 м2 …
12
Дата обновления: 04.12.2025
1 714,4 руб
507€
44,0 руб/м²
13€/м²
Помещений: 0, 47.9 м2, 2025 г.
г. Минск, Леонида Щемелёва ул., 28
Октябрьский район
Предлагаем в аренду коммерческое помещение площадью 47.9 кв. м, расположенное в одном из самых динамично развивающихся районов столицы, по адресу Щемелева, 28. Основные характеристики: • Площадь: 47,9 кв. м • Высота пото…
10
Дата обновления: 04.12.2025
2 105,7 руб
623€
44,0 руб/м²
13€/м²
Помещений: 0, 93.9 м2, 2021 г.
г. Минск, Независимости просп., 88
Первомайский район
Московская
Сдается административно-торговое помещение с ремонтом г.Минск пр-т Независимости 88, площадью 93.9 кв.м, с собственным лифтом. Это идеальное решение для вашего бизнеса, желающих расширить свое присутствие в густонаселен…
536
Дата обновления: 03.12.2025
4 079,0 руб
1 409$
43,4 руб/м²
15$/м²
Помещений: 0, 71.6 м2, 2022 г.
г. Минск, Кропоткина ул., 59
Центральный район
Торговое помещение площадью 71,6 кв.м. располагается на 1-м этаже жилого дома по адресу: ул. Кропоткина 59. Перспективная и очень выгодная локация в центре города. Рядом находятся магазины, салоны, банки, аптеки, кафе и …
293
Дата обновления: 03.12.2025
2 695,0 руб
931$
37,6 руб/м²
13$/м²
Помещений: 0, 85.4 м2, 2007 г.
г. Минск, Независимости просп., 168/2
Первомайский район
Уручье
Предлагаем в аренду одно из лучший помещений под ваше торговое помещение. Есть санузел в помещении, парковка рядом с объектом, закрываются двери на ключ. Пожарная сигнализация, искусственное освещение, естественное освещ…
20
Дата обновления: 02.12.2025