Купить дом, Мозырь, Языковича ул., 9.14 соток

Просмотры: 512 всего, 148 за месяц, 20 за неделю
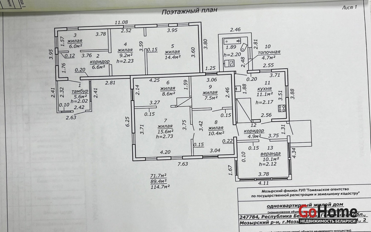
  • Комнат:
    7-комнатная
  • Площадь участка:
    9.14 соток
  • Площадь общая:
    89.4 м2
  • Площадь жилая:
    71.7 м2
  • Площадь кухни:
    11.1 м2
  • Этажность:
    1
  • Год постройки:
    1959

43 440 руб
или 15 000$
Описание

Здравствуйте! Предлагаем Вам рассмотреть вариант приобретения просторного дома в Мозыре, который отличается уютом и функциональностью, расположен в одном из самых живописных районов Беларуси. Рыдом автобусная остановка №7 №8, река Припять, СШ №5, детский сад №28 и №4, магазин Доброцен, Евроопт, почтовое отделение.
Характеристики объекта:
- Адрес: Гомельская область, г. Мозырь, ул. Языковича Ф.М., 2.
- Тип: Одноквартирный жилой дом
- Этажность: 1
- Общая площадь СНБ: 114,7 кв.м²
- Общая площадь: 89,4 кв.м²
- Жилая площадь: 71,7 кв.м²
- Площадь участка: 0,0914 га
- Год постройки: 1959 год, реконструкция 2016.
Оснащение и удобства:
- Газификация: баллон, возможность проведения газа по кратчайшей траектории.
- Водоснабжение и канализация: централизованные.
- Интернет: подключено оптоволокно.
- Отопление: твердое топливо.
- Дополнительные удобства: сарай, большой гараж, подвал, погреб.
Особенности дома:
- Строительство: деревянный дом с шифером и деревянными и пластиковыми окнами.
- Комнаты: 7 спальни, изолированные 3.
- Покрытие полов: дерево.
Два входа в дом.
На Вашем участке — плодовые деревья.
ТОРГ уместен.
Свяжитесь с нами, чтобы узнать подробности или договориться о просмотре.
Нужно продать свою недвижимость?
Поможем с этим на каждом этапе.

Получай предложения от собственников первым!
Вы нашли объявление на GoHome.by (ГоуХоум.бай)

УНП 491337804
Лицензия 34200000021805, МЮ РБ от 29.10.2019

  • Номер объявления:
    759859
  • Дата обновления:
    07.11.2025
  • Площадь участка:
    9.14 соток
  • Площадь общая:
    89.4 м2
  • Площадь жилая:
    71.7 м2
  • Площадь кухни:
    11.1 м2
  • Год постройки:
    1959
  • Присутствует:
    Достроен; Вода; Свет; Санузел в доме;
  • Договор:
    № 42/2 от 16.06.2025
Распечатать
Пожаловаться на объявление
Вам может быть интересно
1-комнатная, 138.5/101.6/8.6 м2, (6 соток), 2 эт., 1967 г.
Гомельская область, г. Мозырь, Интернациональная ул., д.89
Продаётся двухэтажный кирпичный дом по адресу: г. Мозырь, ул. Интернациональная 89. Общая площадь 156,8 кв.м., жилая 101,6 кв.м. Кухни 6,9 кв.м. и 8,6 кв.м соответственно. На первом этаже располагается четыре комнаты, го…
595
Дата обновления: 01.12.2025
228 760 руб
79 000$
1 650 руб/м²
570$/м²
4-комнатная, 60.9/41.4/12 м2, (7.6 соток), 1 эт., 1963 г.
Гомельская область, г. Мозырь, Юннатов ул.
Документы готовы для продажи! Земельный участок оформлен. Всё узаконено! Продаётся жилой дом в городе Мозырь по ул. Юннатов. Центральный район. Тихое спокойное место. Удобный подъезд. В ПЕШЕЙ доступности кинотеатр «МИР»,…
427
Дата обновления: 27.11.2025
104 250 руб
36 000$
1 710 руб/м²
591$/м²
2-комнатная, 32.6/23.6/9 м2, (2.9 соток), 1 эт., 1959 г.
Гомельская область, г. Мозырь, Портовая ул.
Предлагаем вам рассмотреть часть дома, расположенного по адресу: г. Мозырь, ул.Портовая дом 30, кв.-2 . Общая площадь: 40,4 кв.м. Жилая: 14,8 кв.м. Земельный участок: 0,0286 га. Этажность: один этаж. Газ: привозной ( бал…
410
Дата обновления: 21.11.2025
14 480 руб
5 000$
440 руб/м²
153$/м²
5-комнатная, 231/71/10.54 м2, (12.24 соток), 2 эт., 2001 г.
Гомельская область, г. Мозырь, Бумажкова ул.
до центра 1.5 км / 18 мин
Продаётся дом в хорошем аккуратном состоянии общей площадью 231 кв.м., площадь застройки 166 кв.м., цокольный этаж, две лоджии застеклены и отделаны, два санузла - раздельный и совмещённый, окна ПВХ, два входа, входная м…
3039
Дата обновления: 18.11.2025
173 740 руб
60 000$
750 руб/м²
260$/м²
4-комнатная, 90/60/10 м2, (14 соток), 1 эт., 1970 г.
Гомельская область, г. Мозырь, Юнатов 18
Продам дом, Юнатов 18. Общая площадь 90м2, жилая 60м2. Четыре жилые комнаты, кухня с русской печью, ванная с туалетом , большой коридор, летняя веранда, подвал для хранения консервации, котельная. В доме все коммуникации…
406
Дата обновления: 08.11.2025
63 710 руб
22 000$
710 руб/м²
244$/м²
3-комнатная, 55.6/35.5/7.3 м2, (15 соток), 1 эт., 1970 г.
Гомельская область, г. Мозырь, Гоголя ул.
Продаётся полдома в живописном месте по ул. Гоголя около реки Припять. Общая площадь -77 кв.м. Кухня 7,3 кв.м. Дом в аккуратном состоянии. Отопление печное. Также в собственности 15 соток земли. Ухоженный участок. Имеетс…
573
Дата обновления: 29.10.2025
48 940 руб
16 900$
880 руб/м²
304$/м²
5-комнатная, 105.63/41.32/35.34 м2, (8.37 соток), 1 эт., 2001 г.
Гомельская область, г. Мозырь, 1-й пер. Интернациональный
Предлагаем Вам рассмотреть вариант приобретения просторного дома в Мозыре, который отличается уютом и функциональностью, расположен в одном из самых живописных районов Беларуси. Рыдом авт. остановка ✓14 ,СШ ✓8, детский …
2545
Дата обновления: 17.10.2025
275 090 руб
95 000$
2 600 руб/м²
899$/м²
4-комнатная, 68.7/38.4/21.2 м2, (6 соток), 1 эт., 1956 г.
Гомельская область, г. Мозырь, Коммунистическая ул.
Продаётся одноэтажный деревянный дом с мансардой общей площадью 68,7 м2. 4 жилые комнаты. Окна ПВХ и деревянные, входная дверь массив. Санузел в доме. Имеется сарай, погреб, баня, гараж. Установлены приборы учёта воды, г…
842
Дата обновления: 13.10.2025
112 930 руб
39 000$
1 640 руб/м²
568$/м²
4-комнатная, 83.5/75.3/16.2 м2, (15 соток), 1 эт., 1962 г.
Гомельская область, г. Мозырь, Фрунзе ул.
Продаётся одноэтажный деревянный дом в городе Мозыре по улице Фрунзе. Окна ПВХ, входная металлическая дверь. Есть гараж, сарай и погреб. Газ центральный, центральное водоснабжение, канализация - выгребная яма, газовое от…
463
Дата обновления: 21.09.2025
86 870 руб
30 000$
1 040 руб/м²
359$/м²
5-комнатная, 87/60/- м2, (9.98 соток), 1 эт., 1980 г.
Гомельская область, г. Мозырь, Улица Первомайская 6
Расположен в живописном тихом месте. Рядом школа, дет. сад, магазины
2087
51 600 руб
17 500$
590 руб/м²
201$/м²