Купить дачу, Озерщина, СТ Дом у Днепра, 8.8 соток

Просмотры: 1049 всего, 133 за месяц, 37 за неделю
  • Комнат:
    2-комнатная
  • Площадь участка:
    8.8 соток
  • Площадь общая:
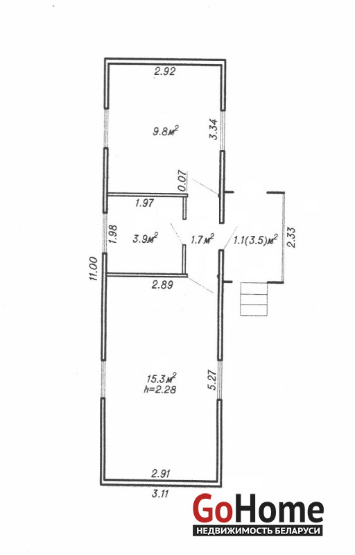
    31.8 м2
  • Площадь жилая:
    25.1 м2
  • Площадь кухни:
    3.9 м2
  • Этажность:
    1
  • Год постройки:
    1997

8 580 руб
или 3 000$
Описание

Предлагаем к продаже садовый домик (дачу), расположенный в СТ «Дом у Днепра» Озерщинского с/с Речицкого района Гомельской области.
Отдаленность по автомобильной трассе от г. Речица составляет 10 км. Налажено автобусное сообщение до садового товарищества.
Удобный съезд с трассы на улицу для проезда автомобильным транспортом на протяжении всего садового товарищества.
- одноэтажный садовый домик стандартной планировки общей площадью 32 кв.м.;
- металлическое строение располагается на бетонном фундаменте;
- дача требует ремонта; предусмотрено несколько комнат;
- по участку проходит центральное водоснабжение;
- требуется замена электропроводки;
- уборная на улице;
- размер земельного участка, закрепленного за дачей, 8,8 соток;
- земля идеально подходит для огородничества, участок ранее возделывался;
- территория огорожена металлической сеткой;
- строительные материалы, расположенные на территории садового домика, входят в стоимость продажи.
Имеется возможность пользоваться примыкающим к даче дополнительным земельным участком площадью 8 соток с дальнейшим оформлением прав собственности на него.
Дача располагается в непосредственной близости от съезда с трассы. Односторонняя улица с лесным массивом через дорогу.
По объекту имеется технический паспорт 2023 года изготовления.
Документы полностью готовы к продаже.

Получай предложения от собственников первым!
Вы нашли объявление на GoHome.by (ГоуХоум.бай)

УНП 491337804
Лицензия 34200000021805, МЮ РБ от 29.10.2019

  • Номер объявления:
    753530
  • Дата обновления:
    14.12.2025
  • Площадь участка:
    8.8 соток
  • Площадь общая:
    31.8 м2
  • Площадь жилая:
    25.1 м2
  • Площадь кухни:
    3.9 м2
  • Год постройки:
    1997
  • Присутствует:
    Достроен; Свет;
  • Договор:
    № 65/3 от 07.05.2025
Распечатать
Пожаловаться на объявление
Вам может быть интересно
2-комнатная, 43/30/9.4 м2, (6.7 соток), 2 эт., 2018 г.
Гомельская область, д. Озерщина, Сияние воды
Продается дача СТ Сияние воды, Гомельская обл, Речицкий р-н. Блочный дом 2 эт., 2 жилые комнаты, веранда-кухня с подведенной водой, газ-баллон. На участке кирпичный сарай 3х2,5м, туалет, вода сезонная. Участок обработан…
3893
17 690 руб
6 000$
410 руб/м²
140$/м²