Купить дом, Дубровня, Садовая ул., 15, 40 соток

Просмотры: 917 всего, 92 за месяц, 23 за неделю
  • Площадь участка:
    40 соток
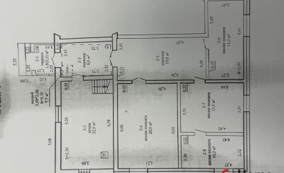
  • Площадь общая:
    81 м2
  • Площадь жилая:
    58 м2
  • Площадь кухни:
    12 м2
  • Этажность:
    2
  • Год постройки:
    2020

98 650 руб
или ≈34 999$
Купить в лизинг
Изменения цены
34 999$
06.04.2025 г.
35 000$
13.11.2021 г.
Описание

Продается участок (40 соток в частной собственности) с незавершенным строительством жилого дома с видом на озеро (д.Дубровня).
Расстояние до г. Лида 4 км, озеро в 15 метрах от границы участка, отличные подъездные пути, асфальтированная дорога до ворот, в шаговой доступности остановка транспорта, несколько магазинов, почта, сельсовет.
На участке проведены масштабные работы по подсыпке грунта, расчистке и выравниванию периметра. Строительство нового жилого дома производилось в соответствии с разработанным и согласованным проектом с соблюдением всех норм (есть фото выполнения всех скрытых работ).
Проект разрабатывался индивидуально по требованиям заказчика и оптимизирован для комфортного проживания, а также под существующие размеры строительных и отделочных материалов.
На данный момент возведен цокольный этаж на фундаменте из монолитной плиты, данное техническое решение позволяет при желании изменить проект и вместо одноэтажного дома возвести два или три этажа. Газ и электричество на участке, есть колодец, планировалось бурение скважины (водоносный горизонт в пределах 30-40 метров).
Очень уютное и живописное место!!! Лучше один раз увидеть это место своими глазами и захочется воплощать свои мечты именно здесь!
Поможем продать вашу квартиру для покупки данной, также помощь и сопровождение в преобретении в кредит, сотрудничаем со всеми банками республики Беларусь.Приобретение квартиры, дома или коммерческой недвижимости – это важный шаг, и мы знаем, насколько важно, чтобы сделка была безопасной, а процесс – понятным и удобным.ООО “Эстейт Компани” – ваш надежный партнер в мире недвижимости. Мы предлагаем объекты в Слониме, Новогрудке, Лиде и других городах Беларуси.- Гарантируем безопасность сделки-Полное юридическое сопровождение- Работаем по лицензии Министерства юстиции РБ №02240/394Наша цель – не просто продать вам недвижимость, а помочь вам найти идеальный объект без рисков и скрытых нюансов.Офисы: г. Лида, ул. Чапаева 18; г. Слоним, пер. Дружбы 1; г. Новогрудок, ул. Волчецкого27БСвяжитесь с нами сегодня и получите консультацию эксперта!

Получай предложения от собственников первым!
Вы нашли объявление на GoHome.by (ГоуХоум.бай)

УНП 693141368
Лицензия МЮ РБ №02240/394 от 26.02.2020

  • Номер объявления:
    741289
  • Дата обновления:
    21.03.2026
  • Площадь участка:
    40 соток
  • Площадь общая:
    81 м2
  • Площадь жилая:
    58 м2
  • Площадь кухни:
    12 м2
  • Год постройки:
    2020
  • Договор:
    № 398/2 от 2021-11-10
Распечатать
Пожаловаться на объявление
Вам может быть интересно
0-комнатная, 115.4/64.9/22.5 м2, (11.4 соток), 1 эт., 1996 г.
Гродненская область, д. Дубровня, Вишневая ул., 13
В непосредственной близости от города продается полдома (4-х комнатная квартира) общей площадью 115,4 м2 с землей и хозпостройками. Центральные водопровод и газоснабжение, гозовое отопление, канализация септик, высокие п…
90
Дата обновления: 16.04.2026
77 510 руб
≈27 500$
670 руб/м²
238$/м²