Купить дом, Житковичи, ул. Социалистическая, 21, 25 соток

Просмотры: 2135 всего, 83 за месяц, 24 за неделю
  • Комнат:
    2-комнатная
  • Площадь участка:
    25 соток
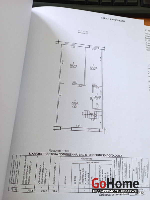
  • Площадь общая:
    207.6 м2
  • Площадь жилая:
    108.6 м2
  • Площадь кухни:
    44.4 м2
  • Этажность:
    2
  • Год постройки:
    2015

123 850 руб
или ≈42 000$
Купить в лизинг
Изменения цены
42 000$
29.08.2024 г.
55 000$
02.06.2023 г.
Описание

Продается двухэтажный дом по адресу: г. Житковичи, ул. Социалистическая, 21. Общая площадь 207.6 кв. метра, участок 25 соток, из них 10 соток аренда. Все черновые работы выполнены, стены оштукатурены, пол на первом этаже залит. Всё остальное делаете под себя сами.
Общая площадь первого этажа 115 кв.м. Есть два входа на первом этаже. Второй этаж 82 кв. метра с отдельным входом и счетчиком на свет. Можно конечно всё объединить (как ваша душа пожелает). Есть заезд с обратной стороны участка.
Дом расположен по центральной улице города, через дорогу школа, недалеко детский сад, магазины, рынок, вокзал и т.п.
Не хотите для проживания, можно вывести из жилого помещения в нежилое для размещения торговой точки.

Получай предложения от собственников первым!
Вы нашли объявление на GoHome.by (ГоуХоум.бай)
Виктория Собственник
  • Номер объявления:
    619921
  • Дата обновления:
    02.06.2023
  • Площадь участка:
    25 соток
  • Площадь общая:
    207.6 м2
  • Площадь жилая:
    108.6 м2
  • Площадь кухни:
    44.4 м2
  • Год постройки:
    2015
  • Присутствует:
    Вода; Свет; Санузел в доме;
Распечатать
Пожаловаться на объявление
Вам может быть интересно
3-комнатная, 106/74/11.21 м2, (8.3 соток), 1 эт., 1983 г.
Гомельская область, г. Житковичи, ул. Полесская, д.41
Продаём выделенную в квартиру часть дома по улице Полесской г. Житковичи. Тихое спокойное место. Отдельный вход, стены кирпичные, окна ПВХ, высота потолков 2.80. В доме присутствуют все удобства, газовое отопление, а так…
1550
86 500 руб
≈29 274$
820 руб/м²
276$/м²